Drachten Burgemeester Wuiteweg 291
Omschrijving
vraagprijs
Kenmerken
Overdracht
| Status | Verkocht |
|---|---|
| Prijs | € 92.000 kosten koper |
| Aanvaarding | in overleg |
Bouw vorm
| Soort appartement | portiekflat |
|---|---|
| Bouwjaar | 1.970 |
| Bouwvorm | bestaande bouw |
| Ligging | aan drukke weg, in centrum, vrij uitzicht |
Indeling
| Woonoppervlakte | 70 m² |
|---|---|
| Inhoud | 210 m³ |
| Verdiepingen | 1 |
Begane grond
| Aantal kamers | 2 |
|---|---|
| Aantal slaapkamers | 1 |
| Keuken | dichte keuken |
| OverigeRuimten | toilet, berging, balkon, hal |
Interesse?
Op de 7e verdieping van Serviceflat Drachten is dit 2-kamer appartement beschikbaar met eigen berging op de begane grond. Het appartement is op een hoeklocatie gelegen en op deze hoogte heeft u een mooi uitzicht over Drachten.
De Serviceflat staat aan de rand van het centrum met diverse voorzieningen op loopafstand waaronder supermarkten, Schouwburg De Lawei, bushalte maar ook ziekenhuis Nij Smellinghe. Andere faciliteiten voor welzijns- en seniorenzorg zoals huisarts, apotheek, opticien en hoorspecialist in Sunenz, zijn recht tegenover de Serviceflat.
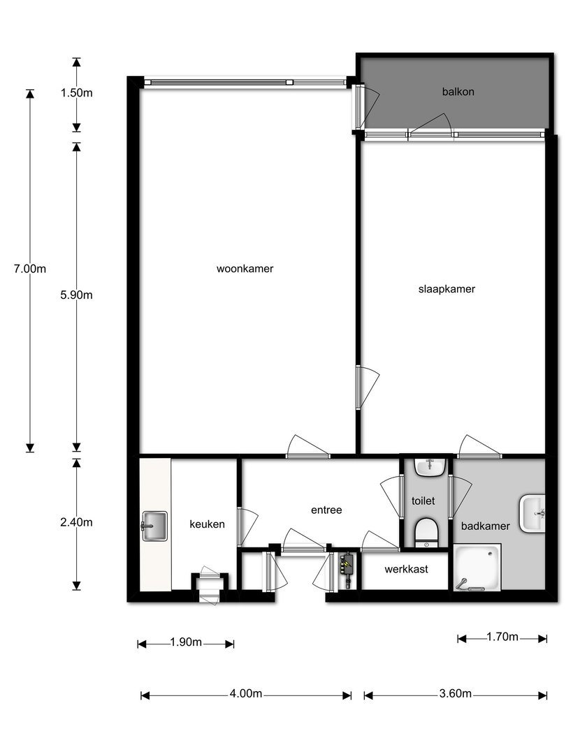
Indeling appartement: entree met toegang naar werkkast, toilet, keuken en woonkamer. De woonkamer heeft uitzicht op de omgeving van Drachten en heeft een balkon op het oosten. Vanuit de woonkamer is de naastgelegen slaapkamer van 21 m2 bereikbaar. De badkamer heeft een douchecabine en wastafel en ook het toilet is vanuit deze ruimte bereikbaar.
Het gebouw heeft een zeer representatieve en ruime ontvangsthal met receptie, 2 liften, trappenhuis en gemeenschappelijke fietsenberging met de mogelijkheid voor het opladen van elektrische fietsen. Voor de scootmobiels is er een afzonderlijke ruimte beschikbaar. In deze serviceflat woont u zelfstandig maar kunt u wel beschikken over eventuele zorg d.m.v 24-uurs-alarmeringssysteem, activiteiten en ook maaltijden kunnen afgenomen worden. Op de eerste verdieping is een fraaie recreatiezaal, waar regelmatig e.e.a. te doen is, zoals lezingen, gymnastiek, biljarten en bridge. Tevens zijn er een aantal logeerkamers in de serviceflat aanwezig. Op het terrein is er voldoende parkeergelegenheid. Voor meer informatie kunt u de site bezoeken: www.serviceflatdrachten.nl.
Bijkomende kosten:
- Servicekosten € 301,83 per maand (inbegrepen o.a. verwarming, boiler en waterverbruik appartement);
- Onderhoudsbijdrage (VvE): € 140,32 per maand;
- Aanvaarding op korte termijn is mogelijk.
Uw makelaar: Hielke Fonk

Hielke Fonk NVM Register Makelaar - Taxateur
Stel een vraag
Bel mij terug























































