Marrum Wilhelminastraat 38
Omschrijving
vraagprijs
€ 257.500 k.k.
Kenmerken
Overdracht
| Status | beschikbaar |
|---|---|
| Prijs | € 257.500 k.k. |
Bouw
| Bouwjaar | 1977 |
|---|---|
| Bouwvorm | bestaande bouw |
| Type Object | Woonhuis |
| Hoofdfunctie | Woonruimte |
Indeling
| Woonoppervlakte | 106 m² |
|---|---|
| Perceeloppervlakte | 166 m² |
| Woning Inhoud | 399 m³ |
| Kamers | 5 (4 slaapkamers) |
Energie
| Energielabel | B |
|---|
Interesse?
Stel je voor: Je wordt ’s ochtends wakker en voordat je naar je werk gaat geniet je van de rust en het weidse uitzicht met een heerlijk kopje koffie. Dit huis is een heerlijke basis om elke dag opnieuw vol energie en focus aan de dag te starten. Deze verrassend ruime tussenwoning met 106 m² woonoppervlakte en energielabel B staat aan de rand van Marrum. Ruimtelijk wonen, maar met het comfort en de charme van het dorp.
De woning is keurig onderhouden en klaar voor een nieuwe bewoner. Dankzij kunststof kozijnen met isolerende beglazing, een vernieuwd en extra geïsoleerd dak en een verzorgd afwerkingsniveau kun je hier zonder zorgen beginnen. Met een fijne tuingerichte woonkamer met schuifpui, een keuken met inbouwapparatuur, vier slaapkamers en een diepe tuin is deze woning helemaal klaar voor jouw toekomst!
INDELING:
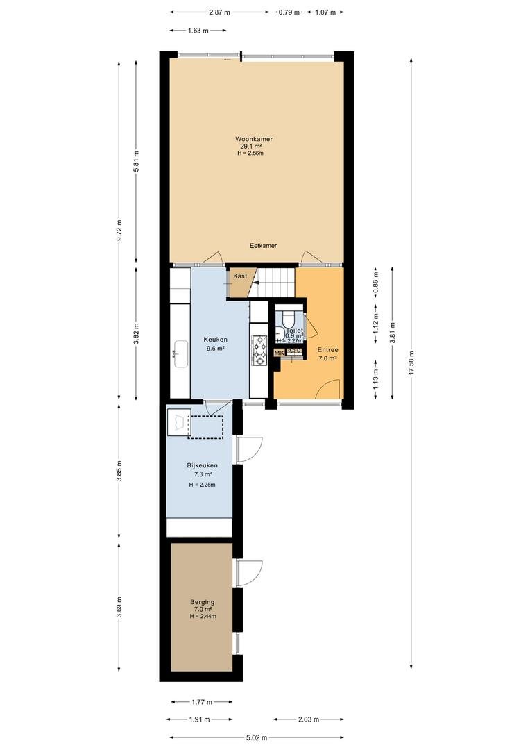
Begane grond: entree/hal met garderobe, moderne toiletruimte mat wandcloset en fonteintje, tuingerichte woonkamer met schuifpui en vrij uitzicht over de landerijen, dichte keuken met dubbele keukenopstelling in moderne uitvoering en voorzien van vaatwasser, koelkast, vrieskast, combi-oven met magnetron en een M-System fornuis/oven (4-pits + 2 wokbranders!). Ruime bijkeuken met zolderberging voorzien van Velux-dakvenster.
1e Verdieping: overloop, 3 ruime slaapkamers waarvan de 2 slaapkamers aan de achterzijde met een dakkapel, alle slaapkamer zijn voorzien van geïntegreerde rolluiken. Een vernieuwde, betegelde badkamer van 2022 met inloopdouche, hangend closet, wastafelmeubel met twee fonteintjes en badkamerradiator.
2e Verdieping: overloop met bergruimte, 2 Velux-dakvensters en CV-opstelling, 4e slaapkamer met 2 nieuwe Velux-dakvensters.
Kenmerken:
- Fraai gelegen tussenwoning aan de dorpsrand met vrij uitzicht aan de achterzijde
- Kunststof kozijnen met isolerende beglazing
- Dak vernieuwd en geïsoleerd met 18 cm isolatieplaten (2005)
- Grote Jansma kunststofdakkapel aan achterzijde
- Verzorgd afwerkingsniveau (onderhoudsarm)
- Energielabel B
- CV via Nefit Trendline HR-combiketel 107/5 van eind 2018
- Keuken van met close-in boiler en Siemens inbouwapparatuur
- Combi-oven recent vernieuwd (Beko)
- Alle slaapkamers op de eerste etage voorzien zijn van geintegreerde rolluiken
- Eigen grond 166 m²
- Achtertuin op het noorden met zeer goede zoninval
- Overdracht: november/december
Marrum is een charmant terpdorp in het noorden van Friesland, gelegen in de gemeente Noardeast-Fryslân. Het karakteristieke dorpsbeeld, met de kerk op de terp, vormt nog altijd het historische hart. Het dorp ligt op korte afstand van de Waddenzee en wordt omringd door uitgestrekte landerijen, wat zorgt voor een rustig en weids landschap. Dankzij de landelijke ligging en de goede bereikbaarheid richting onder andere Leeuwarden biedt Marrum een aantrekkelijke combinatie van rust, ruimte en voorzieningen binnen handbereik.
Kortom, een ideale plek voor wie rustig wil wonen in een landelijke en sfeervolle omgeving. Geïnteresseerd? Maak dan snel een afspraak voor een bezichtiging en ervaar het zelf.
De woning is keurig onderhouden en klaar voor een nieuwe bewoner. Dankzij kunststof kozijnen met isolerende beglazing, een vernieuwd en extra geïsoleerd dak en een verzorgd afwerkingsniveau kun je hier zonder zorgen beginnen. Met een fijne tuingerichte woonkamer met schuifpui, een keuken met inbouwapparatuur, vier slaapkamers en een diepe tuin is deze woning helemaal klaar voor jouw toekomst!
INDELING:
Begane grond: entree/hal met garderobe, moderne toiletruimte mat wandcloset en fonteintje, tuingerichte woonkamer met schuifpui en vrij uitzicht over de landerijen, dichte keuken met dubbele keukenopstelling in moderne uitvoering en voorzien van vaatwasser, koelkast, vrieskast, combi-oven met magnetron en een M-System fornuis/oven (4-pits + 2 wokbranders!). Ruime bijkeuken met zolderberging voorzien van Velux-dakvenster.
1e Verdieping: overloop, 3 ruime slaapkamers waarvan de 2 slaapkamers aan de achterzijde met een dakkapel, alle slaapkamer zijn voorzien van geïntegreerde rolluiken. Een vernieuwde, betegelde badkamer van 2022 met inloopdouche, hangend closet, wastafelmeubel met twee fonteintjes en badkamerradiator.
2e Verdieping: overloop met bergruimte, 2 Velux-dakvensters en CV-opstelling, 4e slaapkamer met 2 nieuwe Velux-dakvensters.
Kenmerken:
- Fraai gelegen tussenwoning aan de dorpsrand met vrij uitzicht aan de achterzijde
- Kunststof kozijnen met isolerende beglazing
- Dak vernieuwd en geïsoleerd met 18 cm isolatieplaten (2005)
- Grote Jansma kunststofdakkapel aan achterzijde
- Verzorgd afwerkingsniveau (onderhoudsarm)
- Energielabel B
- CV via Nefit Trendline HR-combiketel 107/5 van eind 2018
- Keuken van met close-in boiler en Siemens inbouwapparatuur
- Combi-oven recent vernieuwd (Beko)
- Alle slaapkamers op de eerste etage voorzien zijn van geintegreerde rolluiken
- Eigen grond 166 m²
- Achtertuin op het noorden met zeer goede zoninval
- Overdracht: november/december
Marrum is een charmant terpdorp in het noorden van Friesland, gelegen in de gemeente Noardeast-Fryslân. Het karakteristieke dorpsbeeld, met de kerk op de terp, vormt nog altijd het historische hart. Het dorp ligt op korte afstand van de Waddenzee en wordt omringd door uitgestrekte landerijen, wat zorgt voor een rustig en weids landschap. Dankzij de landelijke ligging en de goede bereikbaarheid richting onder andere Leeuwarden biedt Marrum een aantrekkelijke combinatie van rust, ruimte en voorzieningen binnen handbereik.
Kortom, een ideale plek voor wie rustig wil wonen in een landelijke en sfeervolle omgeving. Geïnteresseerd? Maak dan snel een afspraak voor een bezichtiging en ervaar het zelf.

Peter Meijer NVM Register Makelaar - Taxateur
Plan bezichtiging
voor: Wilhelminastraat 38
Stel een vraag
Bel mij terug














































































































