Gaastmeer Turfdyk 10 A
Omschrijving
vraagprijs
€ 599.000 k.k.
Kenmerken
Overdracht
| Status | beschikbaar |
|---|---|
| Prijs | € 599.000 k.k. |
Bouw
| Bouwjaar | 1999 |
|---|---|
| Bouwvorm | bestaande bouw |
| Type Object | Woonhuis |
| Hoofdfunctie | Woonruimte |
Indeling
| Woonoppervlakte | 178 m² |
|---|---|
| Perceeloppervlakte | 665 m² |
| Woning Inhoud | 782 m³ |
| Kamers | 6 (4 slaapkamers) |
Energie
| Energielabel | A |
|---|
Interesse?
Vrijstaand wonen in één van de mooiste dorpen van Nederland!
Rust, ruimte, comfort en natuur: deze woning biedt het allemaal. Deze vrijstaande woning met een woonoppervlak van maar liefst 178 m², vier slaapkamers, een heerlijke tuin rondom en energielabel A is helemaal klaar voor de toekomst. En dat in een idyllisch watersportdorp dat door de Telegraaf in 2021 werd uitgeroepen tot één van de mooiste dorpen van Nederland.
Een groot pluspunt is dat de woning eenvoudig is aan te passen tot een tweede zelfstandige woonruimte of kangoeroewoning. De voorzieningen hiervoor zijn al grotendeels aanwezig, waardoor dubbele bewoning, mantelzorg of verhuur tot de mogelijkheden behoort.
Indeling:
Begane grond:
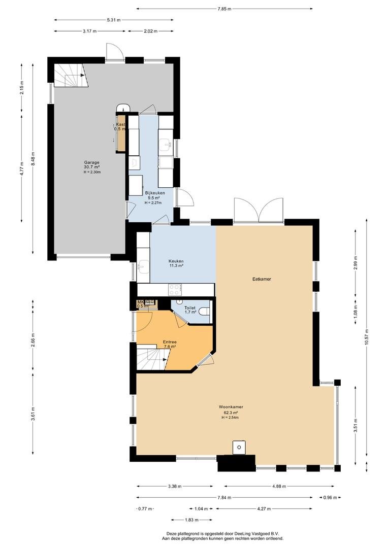
Via de entree kom je in een ruime hal met garderobe, moderne toiletruimte, meterkast en trapopgang. De lichte woonkamer is voorzien van grote raampartijen, een sfeervolle houtkachel en een airco (2024) voor zowel koelen als verwarmen. De woonkamer loopt naadloos over in de ruime woonkeuken. Deze keuken in hoekopstelling biedt veel werkruimte en plaats voor een royale eettafel. Via openslaande deuren loop je zo de zonnige tuin in.
Aansluitend vind je een praktische bijkeuken met aanrechtblad, spoelbak, witgoedaansluitingen en een koel-vriescombinatie. Ook deze ruimte biedt toegang tot de tuin.
De woning beschikt over een extra ruime inpandige garage, voorzien van een sectionaaldeur, loopdeur, wastafel en inbouwkasten. Vanuit de garage leidt een vaste trap naar een van de slaapkamers – een perfecte basis voor wie een B&B, praktijkruimte of zelfstandige woonruimte aan huis wil realiseren.
Eerste verdieping:
Op de eerste verdieping zijn vier volwaardige slaapkamers gesitueerd. Eén van de kamers heeft toegang tot een balkon, een andere is via de trap vanuit de garage bereikbaar en voorzien van een eigen wastafel. Deze kamer leent zich uitstekend voor een gastenverblijf, werkkamer met eigen ingang of als onderdeel van een tweede woongedeelte. De badkamer is compleet ingericht met een ligbad, aparte douche, toilet, wastafel en zelfs een urinoir.
In de bergkast op de overloop bevindt zich de cv-installatie (2024).
Tweede verdieping:
Een vlizotrap geeft toegang tot de praktische bergzolder, ideaal voor koffers, seizoensspullen en meer.
Buiten:
De woning is prachtig gelegen aan het einde van een rustige straat. Dankzij de ligging op een ruim perceel geniet je van een tuin rondom de woning met op elk moment van de dag een zonnige of juist schaduwrijke plek. Aan de zijkant van het huis is er een heerlijke plek om eind van de middag nog van de zon te genieten met een drankje. Op diezelfde plek geniet je ook van de fruitbomen, perziken, appels, peren, pruimen, die volop bloeien en vruchten geven. In de tuin vind je een aparte veranda met lichtpunten en stopcontacten, en een tuinschuur voor het opbergen van tuingereedschap en andere spullen. Parkeren doe je eenvoudig op eigen terrein.
Over Gaastmeer
Gaastmeer ligt in het hart van het Friese merengebied, tussen het Heegermeer, de Fluessen en het IJsselmeer in. Een paradijs voor liefhebbers van watersport, natuur en rust. Zeilen, varen, vissen, zwemmen, fietsen of wandelen – hier kan het allemaal. Het dorp beschikt over een eigen buurtwinkel, twee gezellige restaurants en een bushalte op loopafstand. De nabijheid van plaatsen als Heeg, Sneek, Workum en Woudsend zorgt ervoor dat alle voorzieningen binnen handbereik zijn.
Bijzonderheden:
- Woonoppervlak ca. 177 m²
- 4 ruime slaapkamers
- Energielabel A
- 14 zonnepanelen geplaatst in 2022
- WTW-installatie uit 2022
- CV-installatie vernieuwd in 2024
- Volledig voorzien van kunststof kozijnen
- Ligging aan het einde van een rustige straat
- Grote inpandige garage met mogelijkheden voor B&B, praktijk of tweede zelfstandige woonruimte (kangoeroewoning)
- Aanvaarding in overleg
Rust, ruimte, comfort en natuur: deze woning biedt het allemaal. Deze vrijstaande woning met een woonoppervlak van maar liefst 178 m², vier slaapkamers, een heerlijke tuin rondom en energielabel A is helemaal klaar voor de toekomst. En dat in een idyllisch watersportdorp dat door de Telegraaf in 2021 werd uitgeroepen tot één van de mooiste dorpen van Nederland.
Een groot pluspunt is dat de woning eenvoudig is aan te passen tot een tweede zelfstandige woonruimte of kangoeroewoning. De voorzieningen hiervoor zijn al grotendeels aanwezig, waardoor dubbele bewoning, mantelzorg of verhuur tot de mogelijkheden behoort.
Indeling:
Begane grond:
Via de entree kom je in een ruime hal met garderobe, moderne toiletruimte, meterkast en trapopgang. De lichte woonkamer is voorzien van grote raampartijen, een sfeervolle houtkachel en een airco (2024) voor zowel koelen als verwarmen. De woonkamer loopt naadloos over in de ruime woonkeuken. Deze keuken in hoekopstelling biedt veel werkruimte en plaats voor een royale eettafel. Via openslaande deuren loop je zo de zonnige tuin in.
Aansluitend vind je een praktische bijkeuken met aanrechtblad, spoelbak, witgoedaansluitingen en een koel-vriescombinatie. Ook deze ruimte biedt toegang tot de tuin.
De woning beschikt over een extra ruime inpandige garage, voorzien van een sectionaaldeur, loopdeur, wastafel en inbouwkasten. Vanuit de garage leidt een vaste trap naar een van de slaapkamers – een perfecte basis voor wie een B&B, praktijkruimte of zelfstandige woonruimte aan huis wil realiseren.
Eerste verdieping:
Op de eerste verdieping zijn vier volwaardige slaapkamers gesitueerd. Eén van de kamers heeft toegang tot een balkon, een andere is via de trap vanuit de garage bereikbaar en voorzien van een eigen wastafel. Deze kamer leent zich uitstekend voor een gastenverblijf, werkkamer met eigen ingang of als onderdeel van een tweede woongedeelte. De badkamer is compleet ingericht met een ligbad, aparte douche, toilet, wastafel en zelfs een urinoir.
In de bergkast op de overloop bevindt zich de cv-installatie (2024).
Tweede verdieping:
Een vlizotrap geeft toegang tot de praktische bergzolder, ideaal voor koffers, seizoensspullen en meer.
Buiten:
De woning is prachtig gelegen aan het einde van een rustige straat. Dankzij de ligging op een ruim perceel geniet je van een tuin rondom de woning met op elk moment van de dag een zonnige of juist schaduwrijke plek. Aan de zijkant van het huis is er een heerlijke plek om eind van de middag nog van de zon te genieten met een drankje. Op diezelfde plek geniet je ook van de fruitbomen, perziken, appels, peren, pruimen, die volop bloeien en vruchten geven. In de tuin vind je een aparte veranda met lichtpunten en stopcontacten, en een tuinschuur voor het opbergen van tuingereedschap en andere spullen. Parkeren doe je eenvoudig op eigen terrein.
Over Gaastmeer
Gaastmeer ligt in het hart van het Friese merengebied, tussen het Heegermeer, de Fluessen en het IJsselmeer in. Een paradijs voor liefhebbers van watersport, natuur en rust. Zeilen, varen, vissen, zwemmen, fietsen of wandelen – hier kan het allemaal. Het dorp beschikt over een eigen buurtwinkel, twee gezellige restaurants en een bushalte op loopafstand. De nabijheid van plaatsen als Heeg, Sneek, Workum en Woudsend zorgt ervoor dat alle voorzieningen binnen handbereik zijn.
Bijzonderheden:
- Woonoppervlak ca. 177 m²
- 4 ruime slaapkamers
- Energielabel A
- 14 zonnepanelen geplaatst in 2022
- WTW-installatie uit 2022
- CV-installatie vernieuwd in 2024
- Volledig voorzien van kunststof kozijnen
- Ligging aan het einde van een rustige straat
- Grote inpandige garage met mogelijkheden voor B&B, praktijk of tweede zelfstandige woonruimte (kangoeroewoning)
- Aanvaarding in overleg

Tycho Reimers NVM Makelaar bestaande bouw
Plan bezichtiging
voor: Turfdyk 10 A
Stel een vraag
Bel mij terug











































































































































