Leeuwarden Tesselschadestraat 21 a 3
Omschrijving
vraagprijs
€ 595.000 k.k.
Kenmerken
Overdracht
| Status | beschikbaar |
|---|---|
| Prijs | € 595.000 k.k. |
Bouw
| Bouwjaar | 2021 |
|---|---|
| Bouwvorm | bestaande bouw |
| Type Object | Appartement |
| Hoofdfunctie | Woonruimte |
Indeling
| Woonoppervlakte | 128 m² |
|---|---|
| Woning Inhoud | 407 m³ |
| Kamers | 4 (3 slaapkamers) |
Energie
| Energielabel | A+++ |
|---|
Interesse?
Wonen met comfort en een vleugje stadse klasse, dat is precies wat dit fraaie appartement aan de Tesselschadestraat biedt. Een plek waar het moderne stadsleven en rustig woongenot elkaar moeiteloos ontmoeten. Dankzij de ruime opzet van 128 m², het royale terras van 55 m² en de duurzame en moderne voorzieningen voelt dit appartement direct als een plek waar u wilt blijven.
Wonen aan de Tesselschadestraat
Aan de rand van de geliefde Vosseparkwijk woont u hier op een ideale locatie: de binnenstad ligt letterlijk om de hoek. De supermarkt bevindt zich intern in het complex, het station is op loopafstand en binnen enkele minuten wandelt u het historische centrum van Leeuwarden in. Een buurt met karakter, waar oud en nieuw harmonieus samenkomen.
Vondel Parck-project: Modern complex met een subtiel klassiek accent
Het Vondel Parck-project is gerealiseerd op het voormalige terrein van de Leeuwarder Papierwaren Fabriek. De drie woontorens, ontworpen door TWA Architecten uit Birdaard staan symbool voor de vernieuwing van de Tesselschadestraat: zakelijk en stijlvol in vorm, modern en duurzaam in uitvoering. Hier woont u met oog voor detail in een toekomstgericht gebouw dat elegantie en efficiëntie verenigt.
Dankzij de Daikin lucht-water warmtepomp, WTW-installatie, volledige vloerverwarming en uitstekende isolatie beschikt het appartement over energielabel A+++. Een garantie voor comfort én lage energielasten!
Indeling:
De entree van het complex ligt aan de straatzijde, direct naast de supermarkt. Via de centrale hal met brievenbussen, video-intercom, trappenhuis en lift bereikt u het appartement. Op de begane grond beschikt u over een ruime berging, ideaal voor fietsen of opslag.
Appartement:
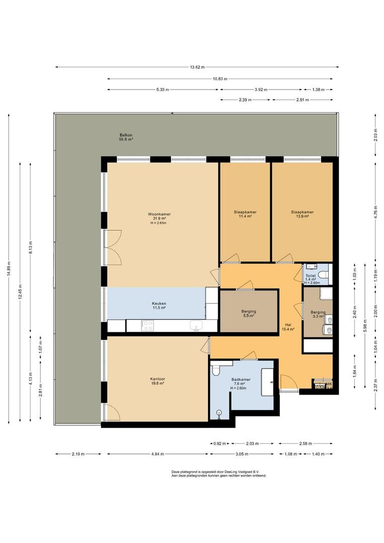
U komt binnen in een lichte hal met aan de linkerzijde de badkamer, voorzien van een inloopdouche, toilet en dubbel wastafelmeubel. Verder bevindt zich hier de master bedroom met directe toegang tot het royale terras. Terug naar de hal, hier bevindt zich de technische ruimte met de installaties en witgoed, en vervolgens vindt u een apart toilet met hangend closet en fontein. Verderop vindt u twee ruime slaapkamers en een handige opslagruimte. De woonkamer is ruim opgezet en afgewerkt met een marmoleum vloer voorzien van geluidsisolatie. De open keuken is uitgerust met een composiet werkblad, inductiekookplaat, afzuigkap, Quooker, vaatwasser, oven en koel-vriescombinatie. Een praktische en stijlvolle ruimte die uitnodigt tot koken en samenzijn. Via de woonkamer bereikt u het royale dakterras dat het appartement rondom omarmt: een heerlijke plek voor zon, groen en rust.
Kenmerken:
- Bouwjaar 2021
- Woonoppervlak ca. 128 m²
- Energielabel A+++
- Daikin lucht-water warmtepomp (2021)
- WTW-installatie en waterontharder
- Volledige vloerverwarming
- Nolte-keuken met inbouwapparatuur
- Terras van ca. 55 m²
- Berging op de begane grond (ca. 15 m²)
- Inclusief eigen parkeerplaats (elektrisch opladen mogelijk vanaf het eigen naastgelegen terras)
- Aankoop van tweede parkeerplaats mogelijk
- Verwarmde oprit naar het parkeerterrein, dus geen problemen in de winter
- Overdracht: oktober 2026
Het appartementencomplex verkeert door de bouw in 2021 nog in uitstekende onderhoudsstaat. Er is een gezonde en actieve VvE en met een bijdrage van 255,- per maand heb je verder geen omkijken meer naar buitenonderhoud.
Bent u op zoek naar een modern, ruim en energiezuinig appartement op een gewilde locatie? Maak dan snel een afspraak voor een bezichtiging en ervaar zelf het comfort en de kwaliteit van wonen aan de Tesselschadestraat 21-A3!
Wonen aan de Tesselschadestraat
Aan de rand van de geliefde Vosseparkwijk woont u hier op een ideale locatie: de binnenstad ligt letterlijk om de hoek. De supermarkt bevindt zich intern in het complex, het station is op loopafstand en binnen enkele minuten wandelt u het historische centrum van Leeuwarden in. Een buurt met karakter, waar oud en nieuw harmonieus samenkomen.
Vondel Parck-project: Modern complex met een subtiel klassiek accent
Het Vondel Parck-project is gerealiseerd op het voormalige terrein van de Leeuwarder Papierwaren Fabriek. De drie woontorens, ontworpen door TWA Architecten uit Birdaard staan symbool voor de vernieuwing van de Tesselschadestraat: zakelijk en stijlvol in vorm, modern en duurzaam in uitvoering. Hier woont u met oog voor detail in een toekomstgericht gebouw dat elegantie en efficiëntie verenigt.
Dankzij de Daikin lucht-water warmtepomp, WTW-installatie, volledige vloerverwarming en uitstekende isolatie beschikt het appartement over energielabel A+++. Een garantie voor comfort én lage energielasten!
Indeling:
De entree van het complex ligt aan de straatzijde, direct naast de supermarkt. Via de centrale hal met brievenbussen, video-intercom, trappenhuis en lift bereikt u het appartement. Op de begane grond beschikt u over een ruime berging, ideaal voor fietsen of opslag.
Appartement:
U komt binnen in een lichte hal met aan de linkerzijde de badkamer, voorzien van een inloopdouche, toilet en dubbel wastafelmeubel. Verder bevindt zich hier de master bedroom met directe toegang tot het royale terras. Terug naar de hal, hier bevindt zich de technische ruimte met de installaties en witgoed, en vervolgens vindt u een apart toilet met hangend closet en fontein. Verderop vindt u twee ruime slaapkamers en een handige opslagruimte. De woonkamer is ruim opgezet en afgewerkt met een marmoleum vloer voorzien van geluidsisolatie. De open keuken is uitgerust met een composiet werkblad, inductiekookplaat, afzuigkap, Quooker, vaatwasser, oven en koel-vriescombinatie. Een praktische en stijlvolle ruimte die uitnodigt tot koken en samenzijn. Via de woonkamer bereikt u het royale dakterras dat het appartement rondom omarmt: een heerlijke plek voor zon, groen en rust.
Kenmerken:
- Bouwjaar 2021
- Woonoppervlak ca. 128 m²
- Energielabel A+++
- Daikin lucht-water warmtepomp (2021)
- WTW-installatie en waterontharder
- Volledige vloerverwarming
- Nolte-keuken met inbouwapparatuur
- Terras van ca. 55 m²
- Berging op de begane grond (ca. 15 m²)
- Inclusief eigen parkeerplaats (elektrisch opladen mogelijk vanaf het eigen naastgelegen terras)
- Aankoop van tweede parkeerplaats mogelijk
- Verwarmde oprit naar het parkeerterrein, dus geen problemen in de winter
- Overdracht: oktober 2026
Het appartementencomplex verkeert door de bouw in 2021 nog in uitstekende onderhoudsstaat. Er is een gezonde en actieve VvE en met een bijdrage van 255,- per maand heb je verder geen omkijken meer naar buitenonderhoud.
Bent u op zoek naar een modern, ruim en energiezuinig appartement op een gewilde locatie? Maak dan snel een afspraak voor een bezichtiging en ervaar zelf het comfort en de kwaliteit van wonen aan de Tesselschadestraat 21-A3!

Jan Ypeij NVM Makelaar bestaande bouw
Plan bezichtiging
voor: Tesselschadestraat 21 a 3
Stel een vraag
Bel mij terug


































































































