Sneek Steenklip 62
Omschrijving
vraagprijs
€ 229.500 k.k.
Kenmerken
Overdracht
| Status | verkocht onder voorbehoud |
|---|---|
| Prijs | € 229.500 k.k. |
Bouw
| Bouwjaar | 1980 |
|---|---|
| Bouwvorm | bestaande bouw |
| Type Object | Appartement |
| Hoofdfunctie | Woonruimte |
Indeling
| Woonoppervlakte | 68 m² |
|---|---|
| Woning Inhoud | 220 m³ |
| Kamers | 2 (1 slaapkamers) |
Energie
| Energielabel | A |
|---|
Interesse?
In de geliefde Bloemenbuurt van Sneek staat dit appartement aan de Steenklip 62 te koop. Een fijne plek met een prachtig vrij uitzicht over de Zwette en op loopafstand van het gezellige centrum van Sneek. Hier woon je rustig, maar toch dichtbij winkels, horeca en alle dagelijkse voorzieningen.
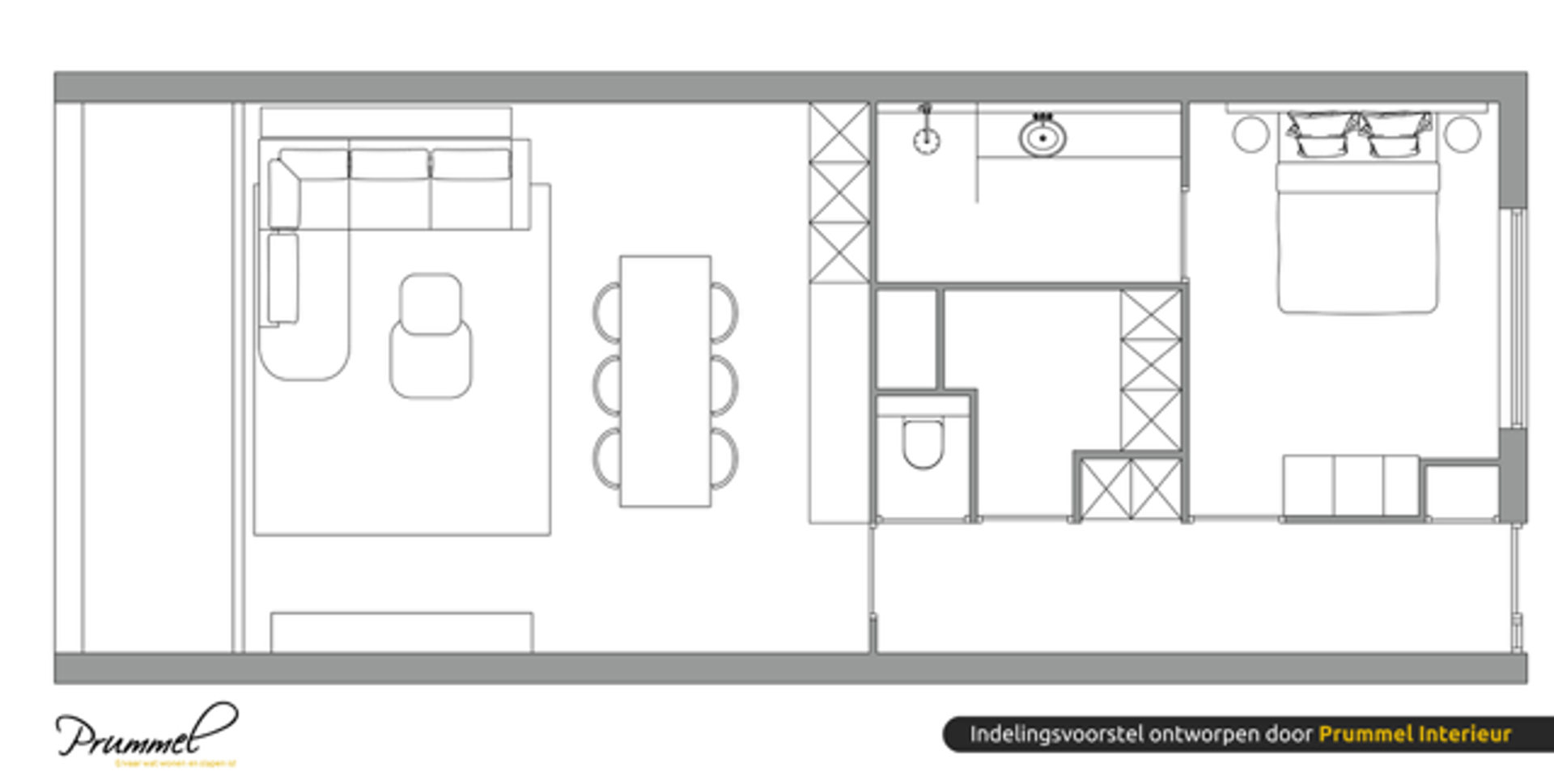
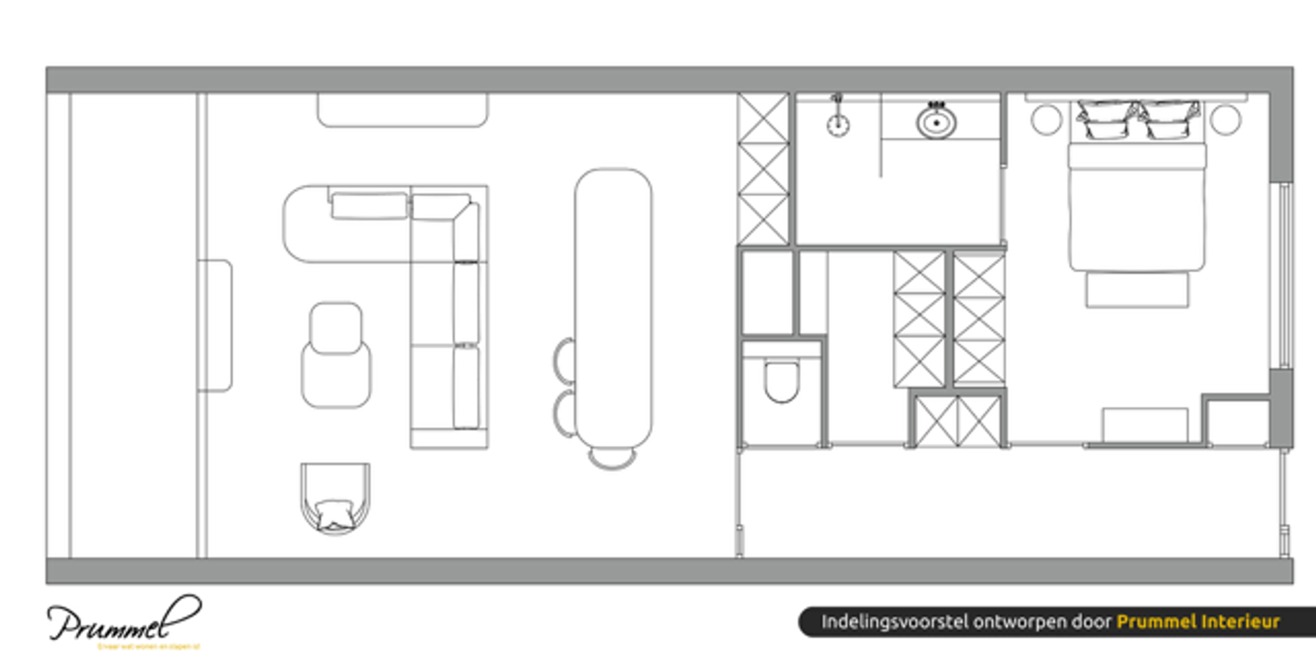
Het appartement heeft een woonoppervlakte van circa 68 m² en beschikt over een lichte woonkamer van ongeveer 28 m², één slaapkamer, een badkamer met douche en wastafel en een balkon waar je heerlijk kunt genieten van het uitzicht. Daarnaast is er een eigen berging in het gebouw en parkeergelegenheid op eigen terrein. Het complex is voorzien van een lift, wat het appartement ook geschikt maakt voor ouderen of mensen die gelijkvloers willen wonen.
De woning is wel aardig uitgeleefd en dient gemoderniseerd te worden, wat het een interessante kans maakt voor kopers die het appartement volledig naar eigen smaak willen opknappen. Met een energielabel A en grotendeels dubbel en HR++ glas is de basis echter goed. Tussen de foto's staan een aantal impressies waarop te zien is wat de mogelijkheden met het appartement zijn.
Kortom: een klus appartement met veel potentie, op een bijzonder aantrekkelijke locatie aan het water en dichtbij het centrum van Sneek. Ideaal voor wie een fijne woonplek zoekt en niet terugschrikt voor een moderniseringsslag.
Goed om te weten:
- Gelegen in de populaire Bloemenbuurt
- Vrij uitzicht over de Zwette
- Op loopafstand van het centrum van Sneek
- Woonoppervlakte ca. 68 m²
- 1 slaapkamer
- Balkon aanwezig
- Eigen berging in het gebouw
- Lift aanwezig in het complex
- Parkeren op eigen terrein
- Energielabel A
- Niet bewoningsclausule van toepassing
Het appartement heeft een woonoppervlakte van circa 68 m² en beschikt over een lichte woonkamer van ongeveer 28 m², één slaapkamer, een badkamer met douche en wastafel en een balkon waar je heerlijk kunt genieten van het uitzicht. Daarnaast is er een eigen berging in het gebouw en parkeergelegenheid op eigen terrein. Het complex is voorzien van een lift, wat het appartement ook geschikt maakt voor ouderen of mensen die gelijkvloers willen wonen.
De woning is wel aardig uitgeleefd en dient gemoderniseerd te worden, wat het een interessante kans maakt voor kopers die het appartement volledig naar eigen smaak willen opknappen. Met een energielabel A en grotendeels dubbel en HR++ glas is de basis echter goed. Tussen de foto's staan een aantal impressies waarop te zien is wat de mogelijkheden met het appartement zijn.
Kortom: een klus appartement met veel potentie, op een bijzonder aantrekkelijke locatie aan het water en dichtbij het centrum van Sneek. Ideaal voor wie een fijne woonplek zoekt en niet terugschrikt voor een moderniseringsslag.
Goed om te weten:
- Gelegen in de populaire Bloemenbuurt
- Vrij uitzicht over de Zwette
- Op loopafstand van het centrum van Sneek
- Woonoppervlakte ca. 68 m²
- 1 slaapkamer
- Balkon aanwezig
- Eigen berging in het gebouw
- Lift aanwezig in het complex
- Parkeren op eigen terrein
- Energielabel A
- Niet bewoningsclausule van toepassing

Anniek Siebring NVM Makelaar bestaande bouw
Stel een vraag
Bel mij terug


















































































































