Terkaple Skûtmakkerspôle 8 W9
Omschrijving
vraagprijs
€ 550.000 k.k.
Kenmerken
Overdracht
| Status | beschikbaar |
|---|---|
| Prijs | € 550.000 k.k. |
Bouw
| Bouwjaar | 2018 |
|---|---|
| Bouwvorm | bestaande bouw |
| Type Object | Woonhuis |
| Hoofdfunctie | Woonruimte |
Indeling
| Woonoppervlakte | 85 m² |
|---|---|
| Perceeloppervlakte | 311 m² |
| Woning Inhoud | 308 m³ |
| Kamers | 4 (3 slaapkamers) |
Energie
| Energielabel | A |
|---|
Interesse?
Luxe rietgedekte villa aan het water – ultiem vakantiegevoel in hartje Friesland
Aan open vaarwater, op een van de mooiste plekken van het kleinschalige en geliefde Waterpark Terkaple, staat deze prachtige rietgedekte recreatievilla met ligplaats voor meerdere boten. De villa is in 2018 onder architectuur gebouwd door Bouwbedrijf Kimsma en combineert kwaliteit, comfort en rust met een adembenemend uitzicht en optimale zonligging.
Gelegen op een royaal, uitwaaierend perceel met een brede kade, zwemtrap, overdekt terras én ruimte voor meerdere auto’s op eigen terrein. De bijpassende rietgedekte stijl maakt het geheel compleet. Hier beleef je het ultieme vakantiegevoel – het hele jaar door.
Indeling
Begane grond:
Via de zij-entree betreed je de stijlvolle hal met trapopgang, meterkast en modern toilet. De sfeervolle woonkamer is licht en ruim, voorzien van tuindeuren naar het zonnige, overdekte terras aan het water. De open keuken in hoekopstelling is luxe uitgevoerd met hoogwaardige inbouwapparatuur en extra wandkasten – perfect voor gezellige diners en lange vakantiedagen.
Uniek aan deze woning is de slaapkamer met badkamer en suite op de begane grond, ideaal voor comfort en levensloopbestendig recreëren. De gehele begane grond is voorzien van een strakke pvc-vloer met vloerverwarming.
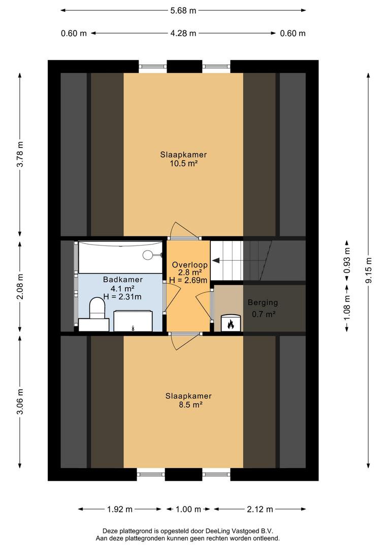
Verdieping:
Op de eerste verdieping bevinden zich nog twee royale slaapkamers, een praktische bergkast met CV-opstelling en een complete tweede badkamer met ligbad/douche, toilet en wastafel. Ook hier ligt een stijlvolle pvc-vloer.
Bijzonderheden
- Bouwjaar 2018, uitstekend geïsoleerd en instapklaar
- Royaal perceel aan het water met brede kade en zwemtrap
- Ligplaats voor meerdere boten
- 3 ruime slaapkamers en 2 badkamers
- Begane grond volledig voorzien van vloerverwarming
- Gelegen op Waterpark Terkaple met open vaarverbinding naar o.a. het Sneekermeer
- Mogelijkheid tot verhuur via Roompot – ook gedeeltelijk of volledig eigen gebruik
Parkbijdrage 2023: € 2.049,47
Locatie
Waterpark Terkaple is een rustig, groen en waterrijk recreatiepark midden in het Friese merengebied. Vaar in korte tijd naar het Sneekermeer of de Terkaplester Poelen. Ook de omgeving biedt volop vermaak voor fietsers, wandelaars en natuurliefhebbers. Een unieke plek voor rustzoekers, watersportliefhebbers én investeerders in recreatief vastgoed.
Aan open vaarwater, op een van de mooiste plekken van het kleinschalige en geliefde Waterpark Terkaple, staat deze prachtige rietgedekte recreatievilla met ligplaats voor meerdere boten. De villa is in 2018 onder architectuur gebouwd door Bouwbedrijf Kimsma en combineert kwaliteit, comfort en rust met een adembenemend uitzicht en optimale zonligging.
Gelegen op een royaal, uitwaaierend perceel met een brede kade, zwemtrap, overdekt terras én ruimte voor meerdere auto’s op eigen terrein. De bijpassende rietgedekte stijl maakt het geheel compleet. Hier beleef je het ultieme vakantiegevoel – het hele jaar door.
Indeling
Begane grond:
Via de zij-entree betreed je de stijlvolle hal met trapopgang, meterkast en modern toilet. De sfeervolle woonkamer is licht en ruim, voorzien van tuindeuren naar het zonnige, overdekte terras aan het water. De open keuken in hoekopstelling is luxe uitgevoerd met hoogwaardige inbouwapparatuur en extra wandkasten – perfect voor gezellige diners en lange vakantiedagen.
Uniek aan deze woning is de slaapkamer met badkamer en suite op de begane grond, ideaal voor comfort en levensloopbestendig recreëren. De gehele begane grond is voorzien van een strakke pvc-vloer met vloerverwarming.
Verdieping:
Op de eerste verdieping bevinden zich nog twee royale slaapkamers, een praktische bergkast met CV-opstelling en een complete tweede badkamer met ligbad/douche, toilet en wastafel. Ook hier ligt een stijlvolle pvc-vloer.
Bijzonderheden
- Bouwjaar 2018, uitstekend geïsoleerd en instapklaar
- Royaal perceel aan het water met brede kade en zwemtrap
- Ligplaats voor meerdere boten
- 3 ruime slaapkamers en 2 badkamers
- Begane grond volledig voorzien van vloerverwarming
- Gelegen op Waterpark Terkaple met open vaarverbinding naar o.a. het Sneekermeer
- Mogelijkheid tot verhuur via Roompot – ook gedeeltelijk of volledig eigen gebruik
Parkbijdrage 2023: € 2.049,47
Locatie
Waterpark Terkaple is een rustig, groen en waterrijk recreatiepark midden in het Friese merengebied. Vaar in korte tijd naar het Sneekermeer of de Terkaplester Poelen. Ook de omgeving biedt volop vermaak voor fietsers, wandelaars en natuurliefhebbers. Een unieke plek voor rustzoekers, watersportliefhebbers én investeerders in recreatief vastgoed.

Tycho Reimers NVM Makelaar bestaande bouw
Plan bezichtiging
voor: Skûtmakkerspôle 8 W9
Stel een vraag
Bel mij terug




























































































