Joure Sjoerd Wiersmahof 29
Omschrijving
vraagprijs
€ 420.000 k.k.
Kenmerken
Overdracht
| Status | verkocht |
|---|---|
| Prijs | € 420.000 k.k. |
Bouw
| Bouwjaar | 2017 |
|---|---|
| Bouwvorm | bestaande bouw |
| Type Object | Woonhuis |
| Hoofdfunctie | Woonruimte |
Indeling
| Woonoppervlakte | 137 m² |
|---|---|
| Perceeloppervlakte | 150 m² |
| Woning Inhoud | 517 m³ |
| Kamers | 6 (4 slaapkamers) |
Energie
| Energielabel | A |
|---|
Interesse?
In een rustig en kindvriendelijk hofje in Joure staat deze moderne en goed onderhouden tussenwoning met uitbouw, bijkeuken en 4 slaapkamers. De woning is gebouwd in 2017 en biedt dankzij de slimme indeling, vloerverwarming op de begane grond en een fijne tuin een heerlijke plek om te wonen. Met het centrum van Joure, scholen en sportvoorzieningen dichtbij combineert deze woning comfort en een ideale ligging.
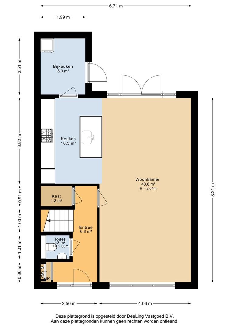
Begane grond
Via de hal, met toilet, meterkast en handige trapkast, kom je in de ruime en lichte woonkamer. Dankzij de uitbouw van 1.20 meter is er extra leefruimte gecreëerd en door de openslaande deuren stroomt het licht naar binnen. De gehele begane grond is voorzien van een nette laminaatvloer met vloerverwarming.
De open keuken uit 2017 is ingericht met een gezellige bar en uitgerust met diverse inbouwapparatuur, waaronder een koel-vriescombinatie, vaatwasser en koken op gas. Vanuit de keuken heb je toegang tot de bijkeuken, waar de aansluitingen voor witgoed zich bevinden.
Eerste verdieping
Op de eerste verdieping zijn drie slaapkamers aanwezig, allen voorzien van horren voor de ramen. De moderne badkamer uit 2017 is compleet met een inloopdouche, toilet en wastafelmeubel.
Tweede verdieping
Een vaste trap leidt naar de tweede verdieping. Hier zorgt de dakkapel voor extra ruimte en licht, ideaal voor een vierde slaapkamer, werkruimte of hobbykamer. Ook vind je hier de Intergas cv-ketel (2017).
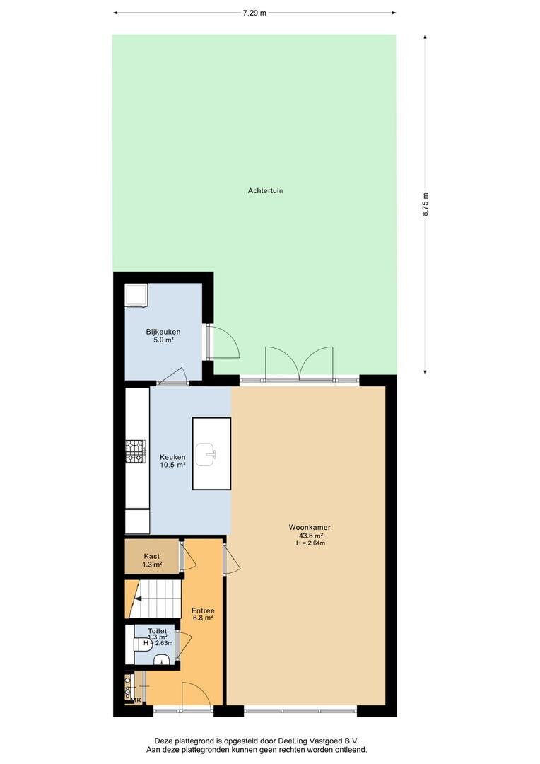
Buitenruimte
De tuin is verzorgd aangelegd, gelegen op het noorden en beschikt over een ruime achterom. Achter in de tuin staat een houten berging met vliering, handig voor extra opslag.
Goed om te weten:
- woonoppervlakte 137 m2;
- energielabel A;
- kunststofkozijnen;
- kindvriendelijke buurt.
Duurzaamheid
De woning is goed geïsoleerd, voorzien van mechanische ventilatie en beschikt over drie zonnepanelen. Dit maakt het huis niet alleen comfortabel, maar ook energiezuinig.
We verwelkomen je graag in deze moderne, instapklare gezinswoning in Joure.
Begane grond
Via de hal, met toilet, meterkast en handige trapkast, kom je in de ruime en lichte woonkamer. Dankzij de uitbouw van 1.20 meter is er extra leefruimte gecreëerd en door de openslaande deuren stroomt het licht naar binnen. De gehele begane grond is voorzien van een nette laminaatvloer met vloerverwarming.
De open keuken uit 2017 is ingericht met een gezellige bar en uitgerust met diverse inbouwapparatuur, waaronder een koel-vriescombinatie, vaatwasser en koken op gas. Vanuit de keuken heb je toegang tot de bijkeuken, waar de aansluitingen voor witgoed zich bevinden.
Eerste verdieping
Op de eerste verdieping zijn drie slaapkamers aanwezig, allen voorzien van horren voor de ramen. De moderne badkamer uit 2017 is compleet met een inloopdouche, toilet en wastafelmeubel.
Tweede verdieping
Een vaste trap leidt naar de tweede verdieping. Hier zorgt de dakkapel voor extra ruimte en licht, ideaal voor een vierde slaapkamer, werkruimte of hobbykamer. Ook vind je hier de Intergas cv-ketel (2017).
Buitenruimte
De tuin is verzorgd aangelegd, gelegen op het noorden en beschikt over een ruime achterom. Achter in de tuin staat een houten berging met vliering, handig voor extra opslag.
Goed om te weten:
- woonoppervlakte 137 m2;
- energielabel A;
- kunststofkozijnen;
- kindvriendelijke buurt.
Duurzaamheid
De woning is goed geïsoleerd, voorzien van mechanische ventilatie en beschikt over drie zonnepanelen. Dit maakt het huis niet alleen comfortabel, maar ook energiezuinig.
We verwelkomen je graag in deze moderne, instapklare gezinswoning in Joure.

Anniek Siebring NVM Makelaar bestaande bouw
Stel een vraag
Bel mij terug
























































































