Gorredijk Sjoelstrjitte 12
Omschrijving
vraagprijs
€ 215.000 k.k.
Kenmerken
Overdracht
| Status | onder bod |
|---|---|
| Prijs | € 215.000 k.k. |
Bouw
| Bouwjaar | 1964 |
|---|---|
| Bouwvorm | bestaande bouw |
| Type Object | Woonhuis |
| Hoofdfunctie | Woonruimte |
Indeling
| Woonoppervlakte | 81 m² |
|---|---|
| Perceeloppervlakte | 224 m² |
| Woning Inhoud | 277 m³ |
| Kamers | 6 (3 slaapkamers) |
Energie
| Energielabel | D |
|---|
Interesse?
Leuke hoekwoning met drie slaapkamers in Gorredijk
Op een fijne locatie in Gorredijk staat deze hoekwoning met drie slaapkamers, een lichte woonkamer en een zonnige tuin. De woning biedt een mooie basis om geheel naar eigen wens te moderniseren en in te richten.
Indeling:
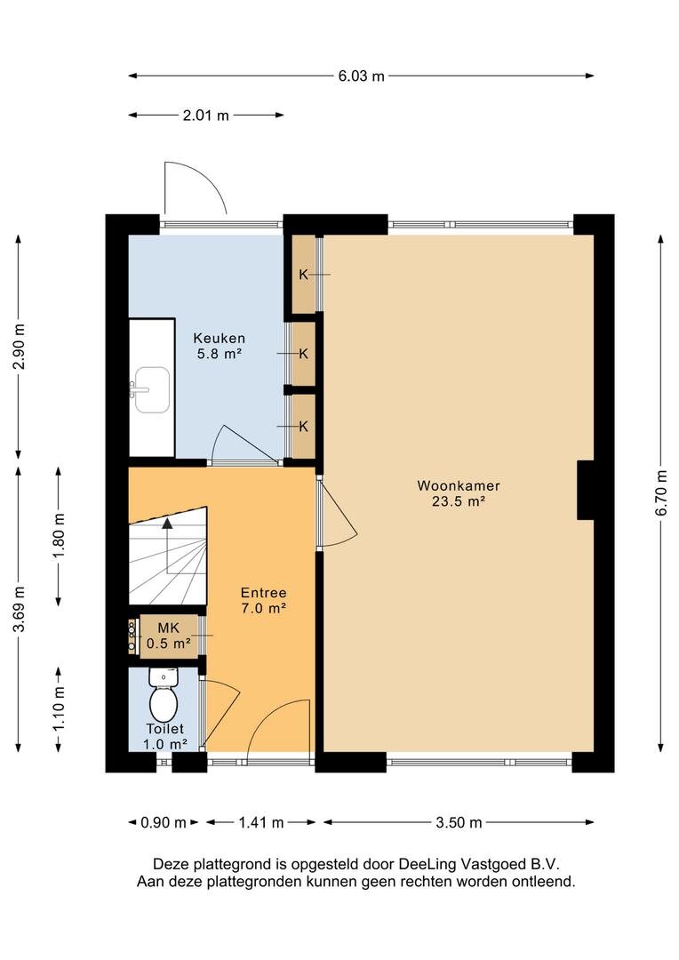
Begane grond:
Via de entree kom je in de hal met trapopgang en toiletruimte. De woonkamer is licht en prettig ingedeeld, met voldoende ruimte voor zowel een gezellige zithoek als en eethoek. de keuken is eenvoudig uitgevoerd en biedt toegang tot de tuin.
Eerste verdieping:
Op de eerste verdieping bevinden zich drie slaapkamers van verschillend formaat en een badkamer. Ideaal voor een gezin of om een werk-/hobbykamer te creëren. De bergzolder is bereikbaar via een vlizotrap en biedt extra opslagruimte.
Buiten:
De woning beschikt over een ruime achtertuin met een berging en heeft daarnaast toegang tot een gezamenlijke achterom. Door de ligging op de hoek geniet je van extra ruimte en privacy. Parkeren is mogelijk in de directe omgeving.
Goed om te weten:
- woonoppervlakte ca. 81 m²
- Perceeloppervlakte ca. 181m²
- Energielabel D
- Voorwaarden van Elkien van toepassing
Ben jij enthousiast over deze woning? Maak dan snel een afspraak voor een bezichtiging tijdens het bezichtigingsmoment op woensdag 1 april tussen 13:30 en 15:30 uur! De sluiting van de inschrijving eindigt op dinsdag 7 april om 12:00 uur.
HUUR JE OP DIT MOMENT EEN WONING VAN ELKIEN? DAN HEB JE VOORRANG OM IN TE SCHRIJVEN VOOR DEZE WONING EN TE KOPEN VOOR DE VRAAGPRIJS (zie voorwaarden Elkien in de tekst hieronder**).
Wordt de woning niet verkocht aan een huurder, dan wordt deze gegund aan de hoogste bieder met de koopsom als minimale inschrijfprijs.
Voorwaarden Elkien:
* De woning wordt verkocht in de huidige staat;
* Antispeculatiebeding: de woning mag niet binnen drie jaar worden door verkocht;
* Verbod van verhuur uitgezonderd verhuur aan eerste graad bloedverwanten: de woning mag drie jaar niet worden verhuurd.
* Ouderdomsclausule: de bouwkwaliteit ligt lager dan bij nieuwe woningen;
* Voorbehoud financiering: maximaal 6 weken na mondeling akkoord koper/verkoper;
* Sleuteloverdracht: maximaal 8 weken na mondeling akkoord koper/verkoper;
* Indien de woning later passeert dan 8 weken, betaalt koper € 20,- boete per dag aan verkoper;
* Koper dient een natuurlijk persoon te zijn;
* De leveringsakte wordt betaald door Elkien (huisnotaris Breuker Netwerk Notarissen te Drachten);
** Jij huurt op dit moment een woning van Elkien (ingeschreven staan als woningzoekende telt niet);
** Indien meerdere huurders zich hebben ingeschreven, wordt de woning toegewezen op basis van loting;
** Indien jij huurder bent en met een medehuurder wilt kopen, dient deze tenminste 2 jaar ingeschreven te staan op hetzelfde huuradres (medehuurderschap) of van rechtswege door huwelijk/geregistreerd partnerschap of jullie huren ieder een woning van Elkien en willen deze woning samen kopen
Op een fijne locatie in Gorredijk staat deze hoekwoning met drie slaapkamers, een lichte woonkamer en een zonnige tuin. De woning biedt een mooie basis om geheel naar eigen wens te moderniseren en in te richten.
Indeling:
Begane grond:
Via de entree kom je in de hal met trapopgang en toiletruimte. De woonkamer is licht en prettig ingedeeld, met voldoende ruimte voor zowel een gezellige zithoek als en eethoek. de keuken is eenvoudig uitgevoerd en biedt toegang tot de tuin.
Eerste verdieping:
Op de eerste verdieping bevinden zich drie slaapkamers van verschillend formaat en een badkamer. Ideaal voor een gezin of om een werk-/hobbykamer te creëren. De bergzolder is bereikbaar via een vlizotrap en biedt extra opslagruimte.
Buiten:
De woning beschikt over een ruime achtertuin met een berging en heeft daarnaast toegang tot een gezamenlijke achterom. Door de ligging op de hoek geniet je van extra ruimte en privacy. Parkeren is mogelijk in de directe omgeving.
Goed om te weten:
- woonoppervlakte ca. 81 m²
- Perceeloppervlakte ca. 181m²
- Energielabel D
- Voorwaarden van Elkien van toepassing
Ben jij enthousiast over deze woning? Maak dan snel een afspraak voor een bezichtiging tijdens het bezichtigingsmoment op woensdag 1 april tussen 13:30 en 15:30 uur! De sluiting van de inschrijving eindigt op dinsdag 7 april om 12:00 uur.
HUUR JE OP DIT MOMENT EEN WONING VAN ELKIEN? DAN HEB JE VOORRANG OM IN TE SCHRIJVEN VOOR DEZE WONING EN TE KOPEN VOOR DE VRAAGPRIJS (zie voorwaarden Elkien in de tekst hieronder**).
Wordt de woning niet verkocht aan een huurder, dan wordt deze gegund aan de hoogste bieder met de koopsom als minimale inschrijfprijs.
Voorwaarden Elkien:
* De woning wordt verkocht in de huidige staat;
* Antispeculatiebeding: de woning mag niet binnen drie jaar worden door verkocht;
* Verbod van verhuur uitgezonderd verhuur aan eerste graad bloedverwanten: de woning mag drie jaar niet worden verhuurd.
* Ouderdomsclausule: de bouwkwaliteit ligt lager dan bij nieuwe woningen;
* Voorbehoud financiering: maximaal 6 weken na mondeling akkoord koper/verkoper;
* Sleuteloverdracht: maximaal 8 weken na mondeling akkoord koper/verkoper;
* Indien de woning later passeert dan 8 weken, betaalt koper € 20,- boete per dag aan verkoper;
* Koper dient een natuurlijk persoon te zijn;
* De leveringsakte wordt betaald door Elkien (huisnotaris Breuker Netwerk Notarissen te Drachten);
** Jij huurt op dit moment een woning van Elkien (ingeschreven staan als woningzoekende telt niet);
** Indien meerdere huurders zich hebben ingeschreven, wordt de woning toegewezen op basis van loting;
** Indien jij huurder bent en met een medehuurder wilt kopen, dient deze tenminste 2 jaar ingeschreven te staan op hetzelfde huuradres (medehuurderschap) of van rechtswege door huwelijk/geregistreerd partnerschap of jullie huren ieder een woning van Elkien en willen deze woning samen kopen
Plan bezichtiging
voor: Sjoelstrjitte 12
Stel een vraag
Bel mij terug



































































