Leeuwarden Sexbierumerstraat 9
Omschrijving
vraagprijs
€ 295.000 k.k.
Kenmerken
Overdracht
| Status | beschikbaar |
|---|---|
| Prijs | € 295.000 k.k. |
Bouw
| Bouwjaar | 1930 |
|---|---|
| Bouwvorm | bestaande bouw |
| Type Object | Woonhuis |
| Hoofdfunctie | Woonruimte |
Indeling
| Woonoppervlakte | 122 m² |
|---|---|
| Perceeloppervlakte | 128 m² |
| Woning Inhoud | 422 m³ |
| Kamers | 6 (5 slaapkamers) |
Energie
| Energielabel | C |
|---|
Interesse?
Karakteristiek, modern en verassend ruim wonen in de geliefde Vosseparkwijk!
Aan de Sexbierumerstraat vind je deze sfeervolle eindwoning vol karakter en verrassend veel ruimte. Met onder andere een erker aan de voorzijde, glas-in-looddetails bij binnenkomst en een warme uitstraling is dit een woning waar je je direct thuis voelt. Tegelijkertijd is het wooncomfort helemaal van nu dankzij de diepe leefruimte, fijne keuken en badkamer en de royale tweede verdieping met brede dakkapel die voor veel extra ruimte zorgt.
Deze woning is extra aantrekkelijk door de combinatie van sfeer en praktische leefruimte. De kamers zijn goed bemeten, de lichtinval is prettig en dankzij de slimme indeling voelt het geheel ruim en comfortabel aan. Of je nu behoefte hebt aan meerdere slaapkamers, een thuiswerkplek of gewoon lekker veel leefruimte: hier kan het allemaal. Daarbij zorgt de zonnige stadstuin op het zuidwesten voor een fijne plek om te ontspannen en te genieten van lange dagen buiten.
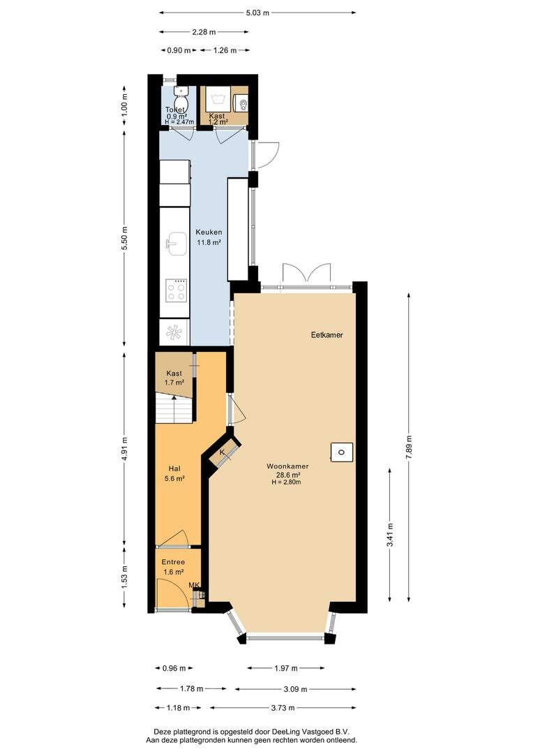
Begane grond:
Je komt binnen via de entree met tochtportaal, waar de originele glas-in-looddeuren direct in het oog springen. De woonkamer is licht en sfeervol, met een erker aan de voorzijde en voldoende ruimte voor een gezellige zit- en eethoek. De keuken (2013) is strak uitgevoerd en voorzien van diverse inbouwapparatuur, waaronder vaatwasser, heteluchtoven, combimagnetron, Quooker en koelkast. In 2021 zijn de inductiekookplaat en afzuigkap nieuw geplaatst. Aansluitend bevindt zich de praktische bijkeuken met witgoedaansluitingen en de cv-opstelling.
Vanuit de eetkamer stap je zo de achtertuin in door de openslaande deuren. Onder de overkapping is het heerlijk vertoeven, of je nu kiest voor een rustige avond of een gezellige borrel met vrienden.
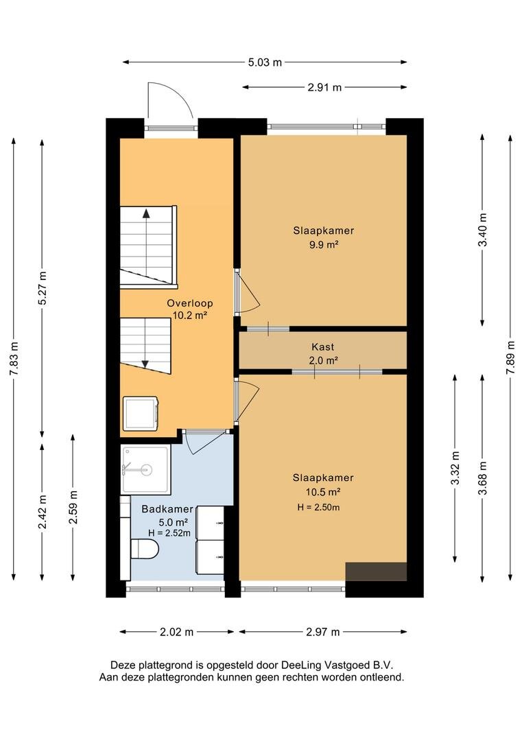
Eerste verdieping:
Op de eerste verdieping bevinden zich twee ruime slaapkamers en de moderne badkamer. Deze is compleet uitgevoerd met een douche, tweede toilet en een stijlvol wastafelmeubel. Toegang tot het droogplat vanaf de overloop.
Tweede verdieping:
De tweede verdieping is verrassend ruim en een echte meerwaarde van de woning. Dankzij de brede dakkapel zijn hier meerdere volwaardige kamers gerealiseerd. Ideaal als extra slaapkamers, werkruimte of hobbyruimte.
Kenmerken:
- Bouwjaar: 1930
- Woonoppervlakte: 122 m²
- Maar liefst 5 slaapkamers!
- Dak en gevels nageïsoleerd. Vloer: isolatiechips (2014)
- Cv-ketel: Nefit (2020)
- Airco in de eetkamer en op de slaapkamer (LG, 2025)
- 6 Zonnepanelen (2018)
- Achtertuin op het zuidwesten met overkapping
- Gelegen in de populaire Vosseparkwijk nabij het centrum
De Vosseparkwijk is één van de meest geliefde woonwijken van Leeuwarden. Hier woon je op loopafstand van het bruisende stadscentrum, maar ervaar je tegelijk de rust van een groene, karakteristieke buurt met voornamelijk jaren ’30-woningen. De wijk heeft een vriendelijke en gemoedelijke sfeer, met diverse buurtwinkels, scholen en speeltuintjes in de directe omgeving. Het gelijknamige Vossepark, een van de oudste stadsparken van Leeuwarden, vormt het groene hart van de buurt. Een plek waar buren elkaar ontmoeten, kinderen spelen en je heerlijk kunt wandelen of ontspannen.
Kortom: Sexbierumerstaat 9 biedt het beste van twee werelden. Het comfort van een instapklare woning én de charme van een authentieke wijk waar het écht prettig wonen is.
Aan de Sexbierumerstraat vind je deze sfeervolle eindwoning vol karakter en verrassend veel ruimte. Met onder andere een erker aan de voorzijde, glas-in-looddetails bij binnenkomst en een warme uitstraling is dit een woning waar je je direct thuis voelt. Tegelijkertijd is het wooncomfort helemaal van nu dankzij de diepe leefruimte, fijne keuken en badkamer en de royale tweede verdieping met brede dakkapel die voor veel extra ruimte zorgt.
Deze woning is extra aantrekkelijk door de combinatie van sfeer en praktische leefruimte. De kamers zijn goed bemeten, de lichtinval is prettig en dankzij de slimme indeling voelt het geheel ruim en comfortabel aan. Of je nu behoefte hebt aan meerdere slaapkamers, een thuiswerkplek of gewoon lekker veel leefruimte: hier kan het allemaal. Daarbij zorgt de zonnige stadstuin op het zuidwesten voor een fijne plek om te ontspannen en te genieten van lange dagen buiten.
Begane grond:
Je komt binnen via de entree met tochtportaal, waar de originele glas-in-looddeuren direct in het oog springen. De woonkamer is licht en sfeervol, met een erker aan de voorzijde en voldoende ruimte voor een gezellige zit- en eethoek. De keuken (2013) is strak uitgevoerd en voorzien van diverse inbouwapparatuur, waaronder vaatwasser, heteluchtoven, combimagnetron, Quooker en koelkast. In 2021 zijn de inductiekookplaat en afzuigkap nieuw geplaatst. Aansluitend bevindt zich de praktische bijkeuken met witgoedaansluitingen en de cv-opstelling.
Vanuit de eetkamer stap je zo de achtertuin in door de openslaande deuren. Onder de overkapping is het heerlijk vertoeven, of je nu kiest voor een rustige avond of een gezellige borrel met vrienden.
Eerste verdieping:
Op de eerste verdieping bevinden zich twee ruime slaapkamers en de moderne badkamer. Deze is compleet uitgevoerd met een douche, tweede toilet en een stijlvol wastafelmeubel. Toegang tot het droogplat vanaf de overloop.
Tweede verdieping:
De tweede verdieping is verrassend ruim en een echte meerwaarde van de woning. Dankzij de brede dakkapel zijn hier meerdere volwaardige kamers gerealiseerd. Ideaal als extra slaapkamers, werkruimte of hobbyruimte.
Kenmerken:
- Bouwjaar: 1930
- Woonoppervlakte: 122 m²
- Maar liefst 5 slaapkamers!
- Dak en gevels nageïsoleerd. Vloer: isolatiechips (2014)
- Cv-ketel: Nefit (2020)
- Airco in de eetkamer en op de slaapkamer (LG, 2025)
- 6 Zonnepanelen (2018)
- Achtertuin op het zuidwesten met overkapping
- Gelegen in de populaire Vosseparkwijk nabij het centrum
De Vosseparkwijk is één van de meest geliefde woonwijken van Leeuwarden. Hier woon je op loopafstand van het bruisende stadscentrum, maar ervaar je tegelijk de rust van een groene, karakteristieke buurt met voornamelijk jaren ’30-woningen. De wijk heeft een vriendelijke en gemoedelijke sfeer, met diverse buurtwinkels, scholen en speeltuintjes in de directe omgeving. Het gelijknamige Vossepark, een van de oudste stadsparken van Leeuwarden, vormt het groene hart van de buurt. Een plek waar buren elkaar ontmoeten, kinderen spelen en je heerlijk kunt wandelen of ontspannen.
Kortom: Sexbierumerstaat 9 biedt het beste van twee werelden. Het comfort van een instapklare woning én de charme van een authentieke wijk waar het écht prettig wonen is.

Peter Meijer NVM Register Makelaar - Taxateur
Plan bezichtiging
voor: Sexbierumerstraat 9
Stel een vraag
Bel mij terug








































































































