Sneek Scherwolderhemstraat 27
Omschrijving
vraagprijs
€ 201.000 k.k.
Kenmerken
Overdracht
| Status | beschikbaar |
|---|---|
| Prijs | € 201.000 k.k. |
Bouw
| Bouwjaar | 1965 |
|---|---|
| Bouwvorm | bestaande bouw |
| Type Object | Appartement |
| Hoofdfunctie | Woonruimte |
Indeling
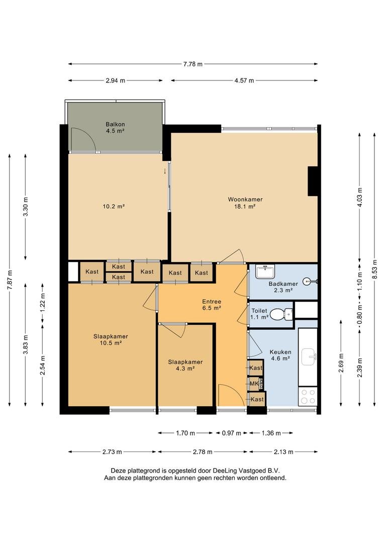
| Woonoppervlakte | 64 m² |
|---|---|
| Woning Inhoud | 220 m³ |
| Kamers | 5 (2 slaapkamers) |
Energie
| Energielabel | D |
|---|
Interesse?
Scherwolderhemstraat 27, Sneek
Wonen met de voorzieningen van Sneek binnen handbereik, terwijl je thuis beschikt over ruimte en mogelijkheden. Dit appartement met vier kamers en een garagebox met berging is gelegen in de woonwijk Lemmerweg-West en beschikt over een balkon. Een ideale woning voor wie opzoek is naar ruimte en de mogelijkheid om het geheel naar eigen wens t moderniseren.
Het appartement maakt deel uit van een appartementencomplex en beschikt over een centrale entree met trappenhuis. Rondom het is voldoende parkeergelegenheid aanwezig. Daarnaast beschikt de woning over een eigen berging en een garagebox.
indeling
Woonlaag:
Via de entree kom je in de hal, die toegang biedt tot de verschillende vertrekken. De woonkamer is ruim opgezet en prettig licht door de grote raampartijen. Vanuit de woonkamer heb je tevens toegang tot het balkon. Dankzij de indeling is er voldoende ruimte voor zowel zit- als eethoek.
De keuken is praktisch ingericht en vormt een goede basis voor wie deze wil vernieuwen naar eigen smaak.
Verder bevinden zich op deze verdieping het separate toilet en de badkamer.
Slaapkamers:
Het appartement beschikt over twee slaapkamers, beide bereikbaar via de hal. De kamer zijn geschikt als slaap-, werk- of hobbyruimte.
Daarnaast zijn er meerdere vaste kasten aanwezig, wat zorgt voor extra bergruimte in de woning.
Kenmerken
- Woonoppervlakte ca. 64 m2
- Energielabel D
- Lichte woonkamer en 2 slaapkamers
- Eigen berging + Garagebox
- Gesloten entree en intercom
- VvE kosten ca. €208,26,- per maand
- Voorwaarden van Elkien van toepassing.
Ben jij enthousiast over deze woning? Maak dan snel een afspraak voor een bezichtiging tijdens het bezichtigingsmoment op 4 mei tussen 9:30 en 11:30 uur! De sluiting van de inschrijving eindigt op 8 mei om 12:00 uur.
HUUR JE OP DIT MOMENT EEN WONING VAN ELKIEN? DAN HEB JE VOORRANG OM IN TE SCHRIJVEN VOOR DEZE WONING EN TE KOPEN VOOR DE VRAAGPRIJS (zie voorwaarden Elkien in de tekst hieronder**).
Wordt de woning niet verkocht aan een huurder, dan wordt deze gegund aan de hoogste bieder met de koopsom als minimale inschrijfprijs.
Voorwaarden Elkien:
* De woning wordt verkocht in de huidige staat;
* Antispeculatiebeding: de woning mag niet binnen drie jaar worden door verkocht;
* Verbod van verhuur uitgezonderd verhuur aan eerste graad bloedverwanten: de woning mag drie jaar niet worden verhuurd.
* Ouderdomsclausule: de bouwkwaliteit ligt lager dan bij nieuwe woningen;
* Voorbehoud financiering: maximaal 6 weken na mondeling akkoord koper/verkoper;
* Sleuteloverdracht: maximaal 8 weken na mondeling akkoord koper/verkoper;
* Indien de woning later passeert dan 8 weken, betaalt koper € 20,- boete per dag aan verkoper;
* Koper dient een natuurlijk persoon te zijn;
* De leveringsakte wordt betaald door Elkien (huisnotaris Breuker Netwerk Notarissen te Drachten);
** Jij huurt op dit moment een woning van Elkien (ingeschreven staan als woningzoekende telt niet);
** Indien meerdere huurders zich hebben ingeschreven, wordt de woning toegewezen op basis van loting;
** Indien jij huurder bent en met een medehuurder wilt kopen, dient deze tenminste 2 jaar ingeschreven te staan op hetzelfde huuradres (medehuurderschap) of van rechtswege door huwelijk/geregistreerd partnerschap of jullie huren ieder een woning van Elkien en willen deze woning samen kopen
Wonen met de voorzieningen van Sneek binnen handbereik, terwijl je thuis beschikt over ruimte en mogelijkheden. Dit appartement met vier kamers en een garagebox met berging is gelegen in de woonwijk Lemmerweg-West en beschikt over een balkon. Een ideale woning voor wie opzoek is naar ruimte en de mogelijkheid om het geheel naar eigen wens t moderniseren.
Het appartement maakt deel uit van een appartementencomplex en beschikt over een centrale entree met trappenhuis. Rondom het is voldoende parkeergelegenheid aanwezig. Daarnaast beschikt de woning over een eigen berging en een garagebox.
indeling
Woonlaag:
Via de entree kom je in de hal, die toegang biedt tot de verschillende vertrekken. De woonkamer is ruim opgezet en prettig licht door de grote raampartijen. Vanuit de woonkamer heb je tevens toegang tot het balkon. Dankzij de indeling is er voldoende ruimte voor zowel zit- als eethoek.
De keuken is praktisch ingericht en vormt een goede basis voor wie deze wil vernieuwen naar eigen smaak.
Verder bevinden zich op deze verdieping het separate toilet en de badkamer.
Slaapkamers:
Het appartement beschikt over twee slaapkamers, beide bereikbaar via de hal. De kamer zijn geschikt als slaap-, werk- of hobbyruimte.
Daarnaast zijn er meerdere vaste kasten aanwezig, wat zorgt voor extra bergruimte in de woning.
Kenmerken
- Woonoppervlakte ca. 64 m2
- Energielabel D
- Lichte woonkamer en 2 slaapkamers
- Eigen berging + Garagebox
- Gesloten entree en intercom
- VvE kosten ca. €208,26,- per maand
- Voorwaarden van Elkien van toepassing.
Ben jij enthousiast over deze woning? Maak dan snel een afspraak voor een bezichtiging tijdens het bezichtigingsmoment op 4 mei tussen 9:30 en 11:30 uur! De sluiting van de inschrijving eindigt op 8 mei om 12:00 uur.
HUUR JE OP DIT MOMENT EEN WONING VAN ELKIEN? DAN HEB JE VOORRANG OM IN TE SCHRIJVEN VOOR DEZE WONING EN TE KOPEN VOOR DE VRAAGPRIJS (zie voorwaarden Elkien in de tekst hieronder**).
Wordt de woning niet verkocht aan een huurder, dan wordt deze gegund aan de hoogste bieder met de koopsom als minimale inschrijfprijs.
Voorwaarden Elkien:
* De woning wordt verkocht in de huidige staat;
* Antispeculatiebeding: de woning mag niet binnen drie jaar worden door verkocht;
* Verbod van verhuur uitgezonderd verhuur aan eerste graad bloedverwanten: de woning mag drie jaar niet worden verhuurd.
* Ouderdomsclausule: de bouwkwaliteit ligt lager dan bij nieuwe woningen;
* Voorbehoud financiering: maximaal 6 weken na mondeling akkoord koper/verkoper;
* Sleuteloverdracht: maximaal 8 weken na mondeling akkoord koper/verkoper;
* Indien de woning later passeert dan 8 weken, betaalt koper € 20,- boete per dag aan verkoper;
* Koper dient een natuurlijk persoon te zijn;
* De leveringsakte wordt betaald door Elkien (huisnotaris Breuker Netwerk Notarissen te Drachten);
** Jij huurt op dit moment een woning van Elkien (ingeschreven staan als woningzoekende telt niet);
** Indien meerdere huurders zich hebben ingeschreven, wordt de woning toegewezen op basis van loting;
** Indien jij huurder bent en met een medehuurder wilt kopen, dient deze tenminste 2 jaar ingeschreven te staan op hetzelfde huuradres (medehuurderschap) of van rechtswege door huwelijk/geregistreerd partnerschap of jullie huren ieder een woning van Elkien en willen deze woning samen kopen
Plan bezichtiging
voor: Scherwolderhemstraat 27
Stel een vraag
Bel mij terug






































































