Woudsend Paterstrjitte 5
Omschrijving
vraagprijs
€ 241.000 k.k.
Kenmerken
Overdracht
| Status | verkocht onder voorbehoud |
|---|---|
| Prijs | € 241.000 k.k. |
Bouw
| Bouwjaar | 1967 |
|---|---|
| Bouwvorm | bestaande bouw |
| Type Object | Woonhuis |
| Hoofdfunctie | Woonruimte |
Indeling
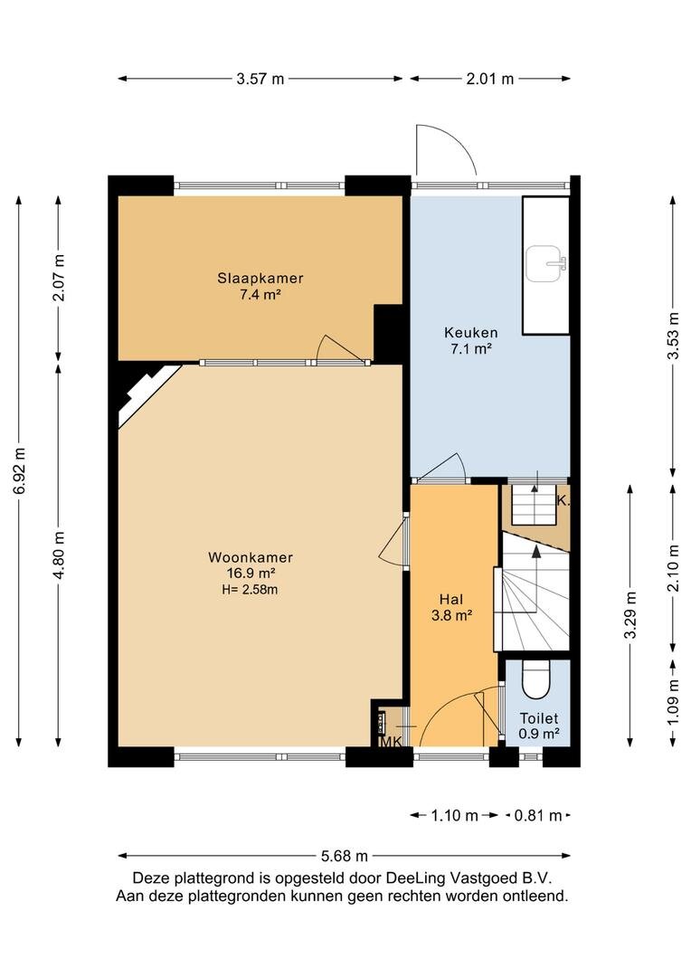
| Woonoppervlakte | 79 m² |
|---|---|
| Perceeloppervlakte | 157 m² |
| Woning Inhoud | 266 m³ |
| Kamers | 4 (3 slaapkamers) |
Energie
| Energielabel | C |
|---|
Interesse?
In het gezellige watersportdorp Woudsend staat deze tussenwoning met drie slaapkamers, een lichte woonkamer en een zonnige tuin op het oosten. De woning is goed onderhouden, voorzien van zonnepanelen en biedt een fijne basis om naar eigen wens te moderniseren.
Indeling:
Begane grond:
Bij binnenkomst kom je in de hal met toilet en trapopgang. De lichte woonkamer biedt een prettig uitzicht op de straat en heeft ruimte voor een gezellige zithoek en eethoek. De keuken bevindt zich aan de achterzijde en geeft toegang tot de tuin en de berging.
Eerste verdieping:
Op de eerste verdieping bevinden zich drie slaapkamers van goed formaat en een badkamer met douche en wastafel. Via een vlizotrap is de bergzolder bereikbaar, ideaal als extra opslagruimte.
Buiten:
De achtertuin ligt op het oosten, waardoor je hier ’s ochtends en begin van de middag volop van de zon kunt genieten. De tuin is voorzien van een berging en een handige achterom. Parkeren kan eenvoudig in de straat.
Goed om te weten:
- Woonoppervlakte ca. 79 m²;
- Perceeloppervlakte ca. 157 m²;
- Mandelig pad aanwezig;
- Energielabel C;
- 5 Zonnepanelen aanwezig;
- Voorwaarden van Elkien van toepassing.
Ben jij enthousiast over deze woning? Maak dan snel een afspraak voor een bezichtiging!
Alle bezichtigingen (ook niet-huurders) dienen tijdens de bezichtiging ochtend op dinsdag 28 oktober tussen 10:30 uur en 12:30 uur plaats te vinden. Voor een afspraak tijdens de bezichtiging ochtend kan je bellen met ons kantoor in Sneek. We verwelkomen je graag! De sluiting van de inschrijving eindigt op maandag 3 november om 12:00 uur.
HUUR JE OP DIT MOMENT EEN WONING VAN ELKIEN? DAN HEB JE VOORRANG OM IN TE SCHRIJVEN VOOR DEZE WONING EN TE KOPEN VOOR DE VRAAGPRIJS (zie voorwaarden Elkien in de tekst hieronder**).
Wordt de woning niet verkocht aan een huurder, dan wordt deze gegund aan de hoogste bieder met de koopsom als minimale inschrijfprijs.
Voorwaarden Elkien:
* De woning wordt verkocht in de huidige staat;
* Antispeculatiebeding: de woning mag niet binnen drie jaar worden door verkocht;
* Verbod van verhuur uitgezonderd verhuur aan eerste graad bloedverwanten: de woning mag drie jaar niet worden verhuurd.
* Ouderdomsclausule: de bouwkwaliteit ligt lager dan bij nieuwe woningen;
* Voorbehoud financiering: maximaal 6 weken na mondeling akkoord koper/verkoper;
* Sleuteloverdracht: maximaal 8 weken na mondeling akkoord koper/verkoper;
* Indien de woning later passeert dan 8 weken, betaalt koper € 20,- boete per dag aan verkoper;
* Koper dient een natuurlijk persoon te zijn;
* De leveringsakte wordt betaald door Elkien (huisnotaris Breuker Netwerk Notarissen te Drachten);
** Jij huurt op dit moment een woning van Elkien (ingeschreven staan als woningzoekende telt niet);
** Indien meerdere huurders zich hebben ingeschreven, wordt de woning toegewezen op basis van loting;
** Indien jij huurder bent en met een medehuurder wilt kopen, dient deze tenminste 2 jaar ingeschreven te staan op hetzelfde huuradres (medehuurderschap) of van rechtswege door huwelijk/geregistreerd partnerschap of jullie huren ieder een woning van Elkien en willen deze woning samen kopen
Indeling:
Begane grond:
Bij binnenkomst kom je in de hal met toilet en trapopgang. De lichte woonkamer biedt een prettig uitzicht op de straat en heeft ruimte voor een gezellige zithoek en eethoek. De keuken bevindt zich aan de achterzijde en geeft toegang tot de tuin en de berging.
Eerste verdieping:
Op de eerste verdieping bevinden zich drie slaapkamers van goed formaat en een badkamer met douche en wastafel. Via een vlizotrap is de bergzolder bereikbaar, ideaal als extra opslagruimte.
Buiten:
De achtertuin ligt op het oosten, waardoor je hier ’s ochtends en begin van de middag volop van de zon kunt genieten. De tuin is voorzien van een berging en een handige achterom. Parkeren kan eenvoudig in de straat.
Goed om te weten:
- Woonoppervlakte ca. 79 m²;
- Perceeloppervlakte ca. 157 m²;
- Mandelig pad aanwezig;
- Energielabel C;
- 5 Zonnepanelen aanwezig;
- Voorwaarden van Elkien van toepassing.
Ben jij enthousiast over deze woning? Maak dan snel een afspraak voor een bezichtiging!
Alle bezichtigingen (ook niet-huurders) dienen tijdens de bezichtiging ochtend op dinsdag 28 oktober tussen 10:30 uur en 12:30 uur plaats te vinden. Voor een afspraak tijdens de bezichtiging ochtend kan je bellen met ons kantoor in Sneek. We verwelkomen je graag! De sluiting van de inschrijving eindigt op maandag 3 november om 12:00 uur.
HUUR JE OP DIT MOMENT EEN WONING VAN ELKIEN? DAN HEB JE VOORRANG OM IN TE SCHRIJVEN VOOR DEZE WONING EN TE KOPEN VOOR DE VRAAGPRIJS (zie voorwaarden Elkien in de tekst hieronder**).
Wordt de woning niet verkocht aan een huurder, dan wordt deze gegund aan de hoogste bieder met de koopsom als minimale inschrijfprijs.
Voorwaarden Elkien:
* De woning wordt verkocht in de huidige staat;
* Antispeculatiebeding: de woning mag niet binnen drie jaar worden door verkocht;
* Verbod van verhuur uitgezonderd verhuur aan eerste graad bloedverwanten: de woning mag drie jaar niet worden verhuurd.
* Ouderdomsclausule: de bouwkwaliteit ligt lager dan bij nieuwe woningen;
* Voorbehoud financiering: maximaal 6 weken na mondeling akkoord koper/verkoper;
* Sleuteloverdracht: maximaal 8 weken na mondeling akkoord koper/verkoper;
* Indien de woning later passeert dan 8 weken, betaalt koper € 20,- boete per dag aan verkoper;
* Koper dient een natuurlijk persoon te zijn;
* De leveringsakte wordt betaald door Elkien (huisnotaris Breuker Netwerk Notarissen te Drachten);
** Jij huurt op dit moment een woning van Elkien (ingeschreven staan als woningzoekende telt niet);
** Indien meerdere huurders zich hebben ingeschreven, wordt de woning toegewezen op basis van loting;
** Indien jij huurder bent en met een medehuurder wilt kopen, dient deze tenminste 2 jaar ingeschreven te staan op hetzelfde huuradres (medehuurderschap) of van rechtswege door huwelijk/geregistreerd partnerschap of jullie huren ieder een woning van Elkien en willen deze woning samen kopen

Anniek Siebring NVM Makelaar bestaande bouw
Stel een vraag
Bel mij terug







































































