Leeuwarden Paardestraat 12
Omschrijving
vraagprijs
€ 235.000 k.k.
Kenmerken
Overdracht
| Status | verkocht |
|---|---|
| Prijs | € 235.000 k.k. |
Bouw
| Bouwjaar | 1925 |
|---|---|
| Bouwvorm | bestaande bouw |
| Type Object | Woonhuis |
| Hoofdfunctie | Woonruimte |
Indeling
| Woonoppervlakte | 98 m² |
|---|---|
| Perceeloppervlakte | 91 m² |
| Woning Inhoud | 378 m³ |
| Kamers | 5 (4 slaapkamers) |
Energie
| Energielabel | E |
|---|
Interesse?
Pak je kans en laat deze woning niet schieten!
Perfect voor starters en doorstarters: deze hip ingerichte woning (anno 2026 stijl) is instapklaar, ruim van opzet en beschikt over 98 m² woonoppervlakte. Comfortabel wonen en een prettige sfeer maken deze woning helemaal klaar voor de toekomst. Met drie slaapkamers, een slimme indeling en een fijne mix van modern design en praktische voorzieningen is dit de ideale kans om er je eigen thuis van te maken.
Wonen in de Paardestraat 12 in Leeuwarden betekent direct genieten van een frisse, moderne woning in een gezellige wijk. De binnenstad ligt letterlijk op loopafstand, ideaal om de levendigheid op te zoeken of juist rustig terug te trekken in je eigen huis.
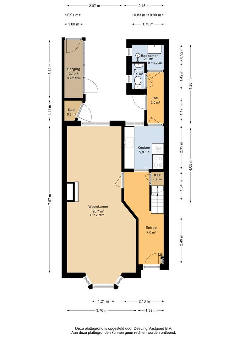
Begane grond: Sfeer & comfort
Stap binnen in een verzorgde hal met toegang tot de kelder en inbouw voorraadkast.
De woonkamer is een echte eyecatcher dankzij de karakteristieke erker en de elektrische designhaard die direct warmte en sfeer brengt. De moderne laminaatvloer loopt strak door en de vloer is extra geïsoleerd met schelpen.
De hippe gewrapte keuken is van alle gemakken voorzien met ruime opbergmogelijkheden en heeft een eigentijdse uitstraling. Het kooktoestel en combioven zijn perfect geïntegreerd.
Hal naar ruim toilet en functionele douche.
Daarnaast vind je op de begane grond:
Een onderhoudsvrije achtertuin met achterom en een buitenkraan. Ook is er een praktische berging voor het stallen van fietsen en een handige kast voor al je gereedschap.
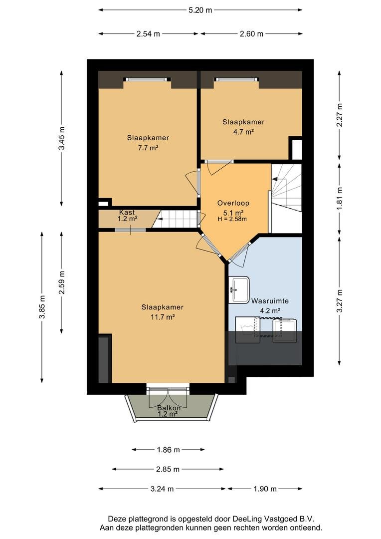
1e Verdieping: Rust & ruimte
De eerste verdieping biedt, twee fijne slaapkamers en een ruime master bedroom met vaste kast én balkon
Moderne laminaatvloer op de gehele verdieping.
Een aparte witgoedruimte met vaste wastafel (koud water) en onderhoudsvriendelijke plavuizenlaminaat vloer. Deze ruimte biedt ook de mogelijkheid als extra slaapkamer.
Een praktische en slimme indeling die optimaal gebruik maakt van de ruimte.
2e Verdieping: Extra mogelijkheden
Via een vaste trap bereik je de zolderverdieping. Hier vind je:
Een ruime zolder voor het opbergen van spullen, met wastafel en een goed onderhouden CV-installatie (december 2022).
Ook bevindt zich hier een extra slaapkamer die nog naar eigen wens kan worden afgebouwd
Perfect als werkruimte, hobbykamer of extra slaapkamer!
Extra voordeel: Subsidie Oud-Oost!
De woning ligt in het gebied Oud-Oost, waar zeer aantrekkelijke subsidieregelingen van toepassing kunnen zijn via de gemeente Leeuwarden. Dit biedt mogelijk extra financiële voordelen voor verbetering of verduurzaming van de woning, een mooie kans voor de nieuwe eigenaar!
Waarom kiezen voor Paardestraat 12:
- Instapklaar en modern ingericht
- Elektrische designhaard voor extra sfeer
- Drie (mogelijk vijf) slaapkamers
- Balkon aan de masterbedroom
- Onderhoudsvrije achtertuin met veel privacy
- Dakterras mogelijk, momenteel voorzien van een onderhoudsarm sedumdak
- Praktische indeling met veel bergruimte
- Gelegen in een rustige wijk die volop verduurzaamt
- Parkeergelegenheid in de straat met mogelijkheid tot een parkeervergunning van € 27,- per jaar
- Op steenworp afstand bevindt zich een groot parkeerplein, ideaal voor een extra auto of visite
- Subsidiekansen beschikbaar
Een frisse, moderne woning met karakter, sfeer en volop mogelijkheden, helemaal klaar voor de toekomst.
Ben jij klaar om hier je nieuwe thuis van te maken?
Perfect voor starters en doorstarters: deze hip ingerichte woning (anno 2026 stijl) is instapklaar, ruim van opzet en beschikt over 98 m² woonoppervlakte. Comfortabel wonen en een prettige sfeer maken deze woning helemaal klaar voor de toekomst. Met drie slaapkamers, een slimme indeling en een fijne mix van modern design en praktische voorzieningen is dit de ideale kans om er je eigen thuis van te maken.
Wonen in de Paardestraat 12 in Leeuwarden betekent direct genieten van een frisse, moderne woning in een gezellige wijk. De binnenstad ligt letterlijk op loopafstand, ideaal om de levendigheid op te zoeken of juist rustig terug te trekken in je eigen huis.
Begane grond: Sfeer & comfort
Stap binnen in een verzorgde hal met toegang tot de kelder en inbouw voorraadkast.
De woonkamer is een echte eyecatcher dankzij de karakteristieke erker en de elektrische designhaard die direct warmte en sfeer brengt. De moderne laminaatvloer loopt strak door en de vloer is extra geïsoleerd met schelpen.
De hippe gewrapte keuken is van alle gemakken voorzien met ruime opbergmogelijkheden en heeft een eigentijdse uitstraling. Het kooktoestel en combioven zijn perfect geïntegreerd.
Hal naar ruim toilet en functionele douche.
Daarnaast vind je op de begane grond:
Een onderhoudsvrije achtertuin met achterom en een buitenkraan. Ook is er een praktische berging voor het stallen van fietsen en een handige kast voor al je gereedschap.
1e Verdieping: Rust & ruimte
De eerste verdieping biedt, twee fijne slaapkamers en een ruime master bedroom met vaste kast én balkon
Moderne laminaatvloer op de gehele verdieping.
Een aparte witgoedruimte met vaste wastafel (koud water) en onderhoudsvriendelijke plavuizenlaminaat vloer. Deze ruimte biedt ook de mogelijkheid als extra slaapkamer.
Een praktische en slimme indeling die optimaal gebruik maakt van de ruimte.
2e Verdieping: Extra mogelijkheden
Via een vaste trap bereik je de zolderverdieping. Hier vind je:
Een ruime zolder voor het opbergen van spullen, met wastafel en een goed onderhouden CV-installatie (december 2022).
Ook bevindt zich hier een extra slaapkamer die nog naar eigen wens kan worden afgebouwd
Perfect als werkruimte, hobbykamer of extra slaapkamer!
Extra voordeel: Subsidie Oud-Oost!
De woning ligt in het gebied Oud-Oost, waar zeer aantrekkelijke subsidieregelingen van toepassing kunnen zijn via de gemeente Leeuwarden. Dit biedt mogelijk extra financiële voordelen voor verbetering of verduurzaming van de woning, een mooie kans voor de nieuwe eigenaar!
Waarom kiezen voor Paardestraat 12:
- Instapklaar en modern ingericht
- Elektrische designhaard voor extra sfeer
- Drie (mogelijk vijf) slaapkamers
- Balkon aan de masterbedroom
- Onderhoudsvrije achtertuin met veel privacy
- Dakterras mogelijk, momenteel voorzien van een onderhoudsarm sedumdak
- Praktische indeling met veel bergruimte
- Gelegen in een rustige wijk die volop verduurzaamt
- Parkeergelegenheid in de straat met mogelijkheid tot een parkeervergunning van € 27,- per jaar
- Op steenworp afstand bevindt zich een groot parkeerplein, ideaal voor een extra auto of visite
- Subsidiekansen beschikbaar
Een frisse, moderne woning met karakter, sfeer en volop mogelijkheden, helemaal klaar voor de toekomst.
Ben jij klaar om hier je nieuwe thuis van te maken?

Jan Ypeij NVM Makelaar bestaande bouw
Stel een vraag
Bel mij terug






























































































