Goutum Meinteslân 7
Omschrijving
vraagprijs
€ 399.000 k.k.
Kenmerken
Overdracht
| Status | beschikbaar |
|---|---|
| Prijs | € 399.000 k.k. |
Bouw
| Bouwjaar | 2013 |
|---|---|
| Bouwvorm | bestaande bouw |
| Type Object | Woonhuis |
| Hoofdfunctie | Woonruimte |
Indeling
| Woonoppervlakte | 107 m² |
|---|---|
| Woning Inhoud | 382 m³ |
| Kamers | 5 (4 slaapkamers) |
Energie
| Energielabel | A |
|---|
Interesse?
Moderne tussenwoning met 4 slaapkamers in Goutum-Súd
Zie je jezelf al wonen in een rustige, moderne woonomgeving met brede straten, veel groen en een ontspannen sfeer? Deze moderne en instapklare tussenwoning staat aan de Meinteslân 7 in Goutum-Súd. De woning is gebouwd in 2013 en is volledig geïsoleerd, energiezuinig en voorzien van energielabel A. De woning voelt fijn en comfortabel aan door de lichtinval en het gebruik van zachte kleuren in huis. Met 107 m² woonoppervlak, een verzorgde tuin en vier slaapkamers is dit bovendien een heerlijke plek voor wie comfortabel wil wonen, met genoeg ruimte voor het gezin.
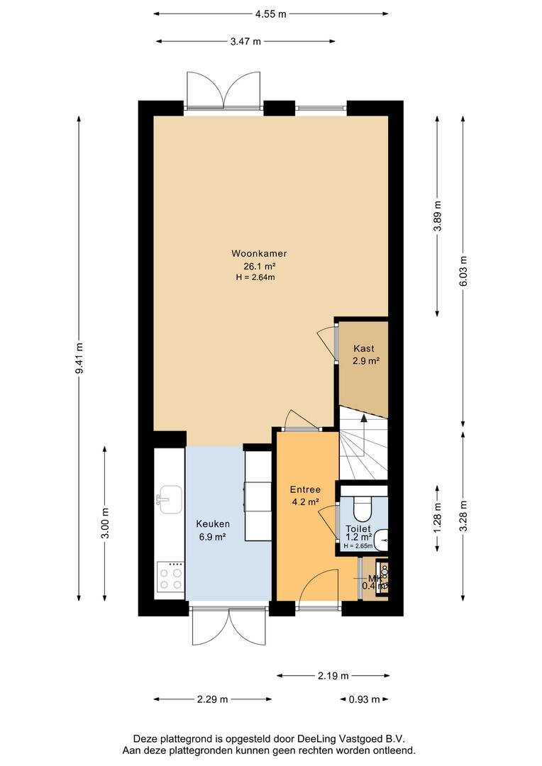
Begane grond
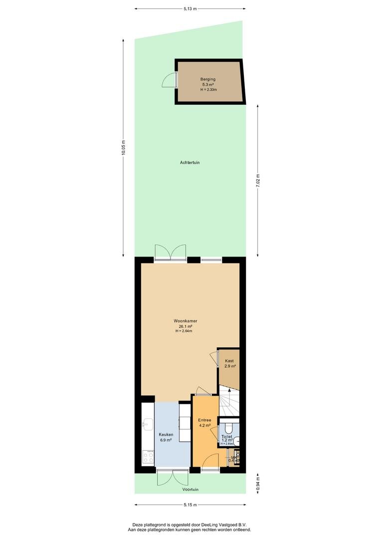
Je stapt binnen in de hal met toilet, meterkast en trapopgang. De woonkamer is een fijne plek die ruim aanvoelt door het hoge plafond. De hoge kozijnen zorgen voor veel lichtinval en geven de ruimte een prettige, open sfeer. Via de openslaande deuren heb je direct toegang tot de tuin. Aan de voorzijde bevindt zich de strak vormgegeven keuken, ingericht met twee royale werkblokken en voorzien van hoogwaardige inbouwapparatuur, waaronder een inductiekookplaat, vaatwasser, oven, koel-vriescombinatie en een Quooker voor direct kokend water.
Eerste Verdieping:
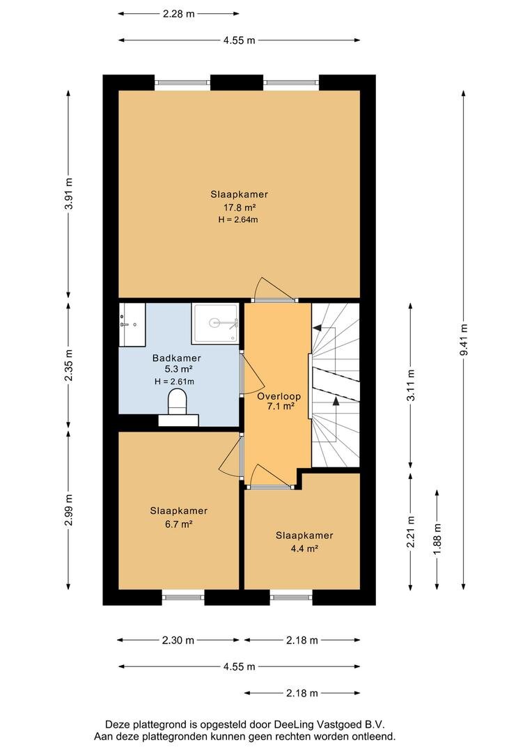
De overloop leidt naar drie goed afgewerkte slaapkamers. De grootste slaapkamer (18 m²) aan de achterzijde beslaat de volledige breedte van de woning en voelt daardoor ruim en comfortabel aan. De twee overige kamers zijn veelzijdig in te richten als kinder-, werk- of logeerkamer. De badkamer is netjes en strak afgewerkt en voorzien van een wastafelmeubel, inloopdouche en tweede toilet.
Tweede verdieping
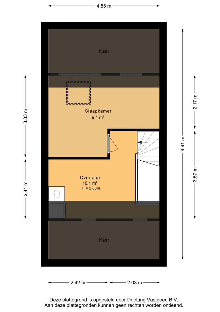
Met een vaste trap bereik je de tweede verdieping. Hier is een extra slaapkamer gecreëerd en daarnaast is er plaats voor het witgoed op de overloop.
Buitenruimte
De achtertuin is verzorgd aangelegd en ligt op het noordwesten, waardoor je geniet van middag- en avondzon. Achterin de tuin staat een houten berging, ideaal voor fietsen en opslag.
Kenmerken
- Woonoppervlakte: 107 m²
- Bouwjaar 2013
- Energielabel A – volledig geïsoleerd
- Kunststof kozijnen met HR++ beglazing
- Verwarming via stadsverwarming
- Eigen parkeerplaats (VvE-bijdrage € 32,50 per kwartaal)
- Instapklare woning gelegen in de jonge wijk Goutum-Súd
Goutum-Súd
Goutum-Súd is een geliefde, ruim opgezette wijk aan de zuidkant van Leeuwarden, geliefd om de rustige straten, het vele groen en de kindvriendelijke opzet. Je woont hier op een plek waar het dorpsgevoel en de stad elkaar raken: met voorzieningen als scholen, sportvelden en speeltuinen binnen handbereik, terwijl het centrum van Leeuwarden op korte fietsafstand ligt. De wijk is modern, overzichtelijk en ruimtelijk vormgegeven, met waterpartijen en brede lanen die zorgen voor een prettige, open sfeer. Een fijne woonomgeving voor wie rust zoekt zonder in te leveren op bereikbaarheid en voorzieningen.
Is dit de plek waar jij wilt wonen? Neem contact op voor een bezichtiging en ervaar het zelf!
Zie je jezelf al wonen in een rustige, moderne woonomgeving met brede straten, veel groen en een ontspannen sfeer? Deze moderne en instapklare tussenwoning staat aan de Meinteslân 7 in Goutum-Súd. De woning is gebouwd in 2013 en is volledig geïsoleerd, energiezuinig en voorzien van energielabel A. De woning voelt fijn en comfortabel aan door de lichtinval en het gebruik van zachte kleuren in huis. Met 107 m² woonoppervlak, een verzorgde tuin en vier slaapkamers is dit bovendien een heerlijke plek voor wie comfortabel wil wonen, met genoeg ruimte voor het gezin.
Begane grond
Je stapt binnen in de hal met toilet, meterkast en trapopgang. De woonkamer is een fijne plek die ruim aanvoelt door het hoge plafond. De hoge kozijnen zorgen voor veel lichtinval en geven de ruimte een prettige, open sfeer. Via de openslaande deuren heb je direct toegang tot de tuin. Aan de voorzijde bevindt zich de strak vormgegeven keuken, ingericht met twee royale werkblokken en voorzien van hoogwaardige inbouwapparatuur, waaronder een inductiekookplaat, vaatwasser, oven, koel-vriescombinatie en een Quooker voor direct kokend water.
Eerste Verdieping:
De overloop leidt naar drie goed afgewerkte slaapkamers. De grootste slaapkamer (18 m²) aan de achterzijde beslaat de volledige breedte van de woning en voelt daardoor ruim en comfortabel aan. De twee overige kamers zijn veelzijdig in te richten als kinder-, werk- of logeerkamer. De badkamer is netjes en strak afgewerkt en voorzien van een wastafelmeubel, inloopdouche en tweede toilet.
Tweede verdieping
Met een vaste trap bereik je de tweede verdieping. Hier is een extra slaapkamer gecreëerd en daarnaast is er plaats voor het witgoed op de overloop.
Buitenruimte
De achtertuin is verzorgd aangelegd en ligt op het noordwesten, waardoor je geniet van middag- en avondzon. Achterin de tuin staat een houten berging, ideaal voor fietsen en opslag.
Kenmerken
- Woonoppervlakte: 107 m²
- Bouwjaar 2013
- Energielabel A – volledig geïsoleerd
- Kunststof kozijnen met HR++ beglazing
- Verwarming via stadsverwarming
- Eigen parkeerplaats (VvE-bijdrage € 32,50 per kwartaal)
- Instapklare woning gelegen in de jonge wijk Goutum-Súd
Goutum-Súd
Goutum-Súd is een geliefde, ruim opgezette wijk aan de zuidkant van Leeuwarden, geliefd om de rustige straten, het vele groen en de kindvriendelijke opzet. Je woont hier op een plek waar het dorpsgevoel en de stad elkaar raken: met voorzieningen als scholen, sportvelden en speeltuinen binnen handbereik, terwijl het centrum van Leeuwarden op korte fietsafstand ligt. De wijk is modern, overzichtelijk en ruimtelijk vormgegeven, met waterpartijen en brede lanen die zorgen voor een prettige, open sfeer. Een fijne woonomgeving voor wie rust zoekt zonder in te leveren op bereikbaarheid en voorzieningen.
Is dit de plek waar jij wilt wonen? Neem contact op voor een bezichtiging en ervaar het zelf!
Plan bezichtiging
voor: Meinteslân 7
Stel een vraag
Bel mij terug








































































































