Jistrum Marwei 4
Omschrijving
vraagprijs
€ 395.000 k.k.
Kenmerken
Overdracht
| Status | beschikbaar |
|---|---|
| Prijs | € 395.000 k.k. |
Bouw
| Bouwjaar | 1870 |
|---|---|
| Bouwvorm | bestaande bouw |
| Type Object | Woonhuis |
| Hoofdfunctie | Woonruimte |
Indeling
| Woonoppervlakte | 92 m² |
|---|---|
| Perceeloppervlakte | 389 m² |
| Woning Inhoud | 335 m³ |
| Kamers | 3 (2 slaapkamers) |
Energie
| Energielabel | B |
|---|
Interesse?
** OOK VAN HARTE WELKOM TIJDENS DE NVM OPEN HUIZEN ROUTE OP ZATERDAG 28 MAART VAN 11.00 TOT 15.00 UUR **
Ben je op zoek naar een huis waar sfeer, karakter en comfort samenkomen? Dan is dit charmante Waldhúske precies wat je zoekt. Knus van formaat en groot in gezelligheid en warmte met een perfecte combinatie van authentieke details en moderne afwerking.
Oorspronkelijk gebouwd in 1870, is dit huis door de jaren heen helemaal gemoderniseerd, zodat je kunt genieten van authentieke charme én alle gemakken van een modern interieur.
Wonen in Jistrum betekent genieten van rust en ruimte, gecombineerd met alle dagelijkse voorzieningen dichtbij. Het dorp heeft een gezellige dorpskern met onder andere een basisschool. Het op enkele minuten liggende Kootstertille heeft een winkelcentrum en supermarkt. Voor ontspanning kun je wandelen of fietsen door de groene omgeving, langs kleine waterwegen en landelijke landschappen die typisch zijn voor deze regio. Binnen enkele minuten bereik je de uitvalswegen richting grotere steden, waardoor je snel in onder andere Leeuwarden of Drachten bent. Zo combineer je het beste van twee werelden: wonen in een rustig en sfeervol dorp met alle voorzieningen en bereikbaarheid die je nodig hebt.
We nemen je graag mee op rondleiding:
Bij binnenkomst valt meteen de uitnodigende entree met overkapping op. De woonkamer van 18,4 m² voelt direct warm en sfeervol dankzij het prachtige balkenplafond en de fijne afwerking. De landelijke witte deuren en de grote ramen zorgen voor een lichte, vriendelijke sfeer waarin je je meteen thuis voelt. Het is een ruimte waar je heerlijk kunt ontspannen en waar knusheid en gezelligheid vanzelf samenkomen. Op de begane grond is de woning geheel voorzien van vloerverwarming, waardoor je woonkamer, keuken en entree altijd behaaglijk warm zijn. De bijkeuken is een praktische ruimte waar de trapopgang naar de eerste verdieping is, de CV-ruimte en een handige plek voor het witgoed. Vanaf hier kun je ook de deur naar buiten nemen.
De landelijke woonkeuken van circa 22,1 m² vormt het hart van het huis. Het gestucte plafond met spots, het zwarte werkblad en de warme houtlook creëren een tijdloze, gezellige uitstraling. Hier is meer dan genoeg ruimte voor een grote eettafel en tegelijkertijd blijft er volop plek om te koken, praten en lachen, alles op één plek. De moderne badkamer is recent vernieuwd en afgewerkt met grijze tegels en een stijlvol zwart badkamermeubel. De ruime inloopdouche, het zwart hangend toilet en de loftdeur geven de ruimte een eigentijdse, luxe uitstraling.
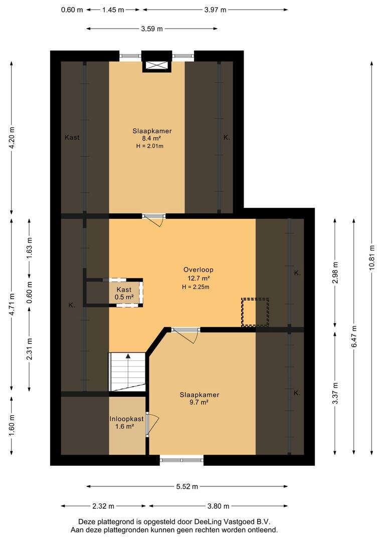
Op de eerste verdieping vind je twee slaapkamers, waarvan één met een praktische inloopkast. Beide kamers zijn gezellig en de ruime overloop biedt plek voor een werkplek of extra bergruimte.
Achter de woning ligt een garage waar je je auto kunt stallen en een volledig bestraatte, onderhoudsvriendelijke achtertuin die weinig onderhoud vraagt maar volop mogelijkheden biedt om te ontspannen of te genieten van het buitenleven.
Dit huis is knus en bijzonder fijn en heel gezellig. Het karakter, de lichtinval en de landelijke sfeer maken het tot een plek waar je je direct thuis voelt. Alles klopt: sfeer, comfort en praktische leefruimte zijn hier perfect in balans.
Word jij de nieuwe bewoner van dit knusse Waldhúske? Maak snel een afspraak voor een bezichtiging en ervaar zelf hoe fijn en gezellig het hier is. Kijk ook voor meer informatie op de unieke woningwebsite marwei4.nl
Bijzonderheden:
- Bouwjaar 1870;
- Perceeloppervlakte 389 m2;
- Energielabel B;
- C.V. installatie HR Combi uit 2021;
- Voorzien van een gasboiler;
- geheel voorzien van vloerverwarming.
Ben je op zoek naar een huis waar sfeer, karakter en comfort samenkomen? Dan is dit charmante Waldhúske precies wat je zoekt. Knus van formaat en groot in gezelligheid en warmte met een perfecte combinatie van authentieke details en moderne afwerking.
Oorspronkelijk gebouwd in 1870, is dit huis door de jaren heen helemaal gemoderniseerd, zodat je kunt genieten van authentieke charme én alle gemakken van een modern interieur.
Wonen in Jistrum betekent genieten van rust en ruimte, gecombineerd met alle dagelijkse voorzieningen dichtbij. Het dorp heeft een gezellige dorpskern met onder andere een basisschool. Het op enkele minuten liggende Kootstertille heeft een winkelcentrum en supermarkt. Voor ontspanning kun je wandelen of fietsen door de groene omgeving, langs kleine waterwegen en landelijke landschappen die typisch zijn voor deze regio. Binnen enkele minuten bereik je de uitvalswegen richting grotere steden, waardoor je snel in onder andere Leeuwarden of Drachten bent. Zo combineer je het beste van twee werelden: wonen in een rustig en sfeervol dorp met alle voorzieningen en bereikbaarheid die je nodig hebt.
We nemen je graag mee op rondleiding:
Bij binnenkomst valt meteen de uitnodigende entree met overkapping op. De woonkamer van 18,4 m² voelt direct warm en sfeervol dankzij het prachtige balkenplafond en de fijne afwerking. De landelijke witte deuren en de grote ramen zorgen voor een lichte, vriendelijke sfeer waarin je je meteen thuis voelt. Het is een ruimte waar je heerlijk kunt ontspannen en waar knusheid en gezelligheid vanzelf samenkomen. Op de begane grond is de woning geheel voorzien van vloerverwarming, waardoor je woonkamer, keuken en entree altijd behaaglijk warm zijn. De bijkeuken is een praktische ruimte waar de trapopgang naar de eerste verdieping is, de CV-ruimte en een handige plek voor het witgoed. Vanaf hier kun je ook de deur naar buiten nemen.
De landelijke woonkeuken van circa 22,1 m² vormt het hart van het huis. Het gestucte plafond met spots, het zwarte werkblad en de warme houtlook creëren een tijdloze, gezellige uitstraling. Hier is meer dan genoeg ruimte voor een grote eettafel en tegelijkertijd blijft er volop plek om te koken, praten en lachen, alles op één plek. De moderne badkamer is recent vernieuwd en afgewerkt met grijze tegels en een stijlvol zwart badkamermeubel. De ruime inloopdouche, het zwart hangend toilet en de loftdeur geven de ruimte een eigentijdse, luxe uitstraling.
Op de eerste verdieping vind je twee slaapkamers, waarvan één met een praktische inloopkast. Beide kamers zijn gezellig en de ruime overloop biedt plek voor een werkplek of extra bergruimte.
Achter de woning ligt een garage waar je je auto kunt stallen en een volledig bestraatte, onderhoudsvriendelijke achtertuin die weinig onderhoud vraagt maar volop mogelijkheden biedt om te ontspannen of te genieten van het buitenleven.
Dit huis is knus en bijzonder fijn en heel gezellig. Het karakter, de lichtinval en de landelijke sfeer maken het tot een plek waar je je direct thuis voelt. Alles klopt: sfeer, comfort en praktische leefruimte zijn hier perfect in balans.
Word jij de nieuwe bewoner van dit knusse Waldhúske? Maak snel een afspraak voor een bezichtiging en ervaar zelf hoe fijn en gezellig het hier is. Kijk ook voor meer informatie op de unieke woningwebsite marwei4.nl
Bijzonderheden:
- Bouwjaar 1870;
- Perceeloppervlakte 389 m2;
- Energielabel B;
- C.V. installatie HR Combi uit 2021;
- Voorzien van een gasboiler;
- geheel voorzien van vloerverwarming.

Hielke Fonk NVM Register Makelaar - Taxateur
Plan bezichtiging
voor: Marwei 4
Stel een vraag
Bel mij terug


















































































