Leeuwarden Marowijnestraat 5
Omschrijving
vraagprijs
€ 235.000 k.k.
Kenmerken
Overdracht
| Status | verkocht |
|---|---|
| Prijs | € 235.000 k.k. |
Bouw
| Bouwjaar | 1963 |
|---|---|
| Bouwvorm | bestaande bouw |
| Type Object | Woonhuis |
| Hoofdfunctie | Woonruimte |
Indeling
| Woonoppervlakte | 88 m² |
|---|---|
| Perceeloppervlakte | 126 m² |
| Woning Inhoud | 311 m³ |
| Kamers | 4 (3 slaapkamers) |
Energie
| Energielabel | C |
|---|
Interesse?
WAUW! Wát een plaatje!
In een kindvriendelijke buurt op slechts tien minuten fietsen van het centrum van Leeuwarden vind je deze zeer goed onderhouden tussenwoning. De mooie lichtinval in combinatie met de hippe inrichting zorgen voor een bijzonder sfeervol geheel. Er zijn drie slaapkamers en een moderne badkamer op de verdieping. De woning is goed geïsoleerd en grotendeels voorzien van HR++ beglazing. De achtertuin is diep zodat je hier heerlijk kunt genieten van de middag- en avondzon. Er is een achterom waardoor je gemakkelijk je fiets in de berging kan plaatsen. Op loopafstand is een groot winkelplein voor alle dagelijkse boodschappen. De voorgevel doet misschien anders vermoeden maar deze woning is verrassend ruim. We nemen je mee naar binnen.
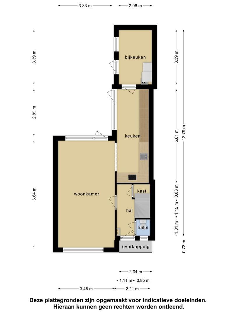
Begane grond:
Je komt aanrijden in een autoluwe straat waar je voor huis de auto parkeert. Via de voordeur stap je de woning binnen waar je in de hal de garderobe en het toilet vindt. Ook is hier de meterkast, een handige kelderkast en de vaste trap naar de eerste verdieping. De fijne sfeervolle woonkamer heeft het zitgedeelte aan de straatkant. Aan de achterzijde is de open keuken (2020) en de eettafel geplaatst. Wat opvalt is dat alle wanden en plafonds strak zijn afgewerkt. De moderne keuken is voorzien van de nodige inbouwapparatuur zoals een vaatwasser, oven, koelkast, inductie kookplaat en afzuigkap. Daarnaast is er zeer veel bergruimte in de keuken. Via de keuken is er een directe toegang tot de bijkeuken. Er is hier ruimte voor de wasmachine en ook de cv-opstelling hangt hier. Ook hier is weer veel ruimte voor opslag. Via de woonkamer loop je zo de tuin in. De zonnige achtertuin ligt op het noordwesten en is zeer diep. Door de gunstige ligging is hier de hele dag wel een plekje in de zon of in de schaduw te vinden. Bovendien is er een handige achterom via de achtergelegen steeg.
Eerste verdieping:
Via de vaste trap kom je op de eerste verdieping waar je drie slaapkamers vindt. Doordat de woning ook hier recht opgetrokken is, zijn de slaapkamers ruim en twee ervan zijn voorzien van inbouwkasten. Één van de kamers is momenteel in gebruik als walk-in closet maar kan ook prima als slaapkamer gebruikt worden. Aan de voorzijde bevindt zich de strakke geheel betegelde badkamer (2022) met inloopdouche en wastafelmeubel. Op de overloop is een ruime inbouwkast voor extra opbergruimte.
De Marowijnestraat ligt in de groene wijk Nijlân. Naast veel groen, speelfaciliteiten en een heerlijke wandelroute langs het Van Harinxmakanaal beschikt de wijk over een winkelcentrum, scholen en sportcomplexen. De wijk is uitstekend bereikbaar per openbaar vervoer. Het centraal station en de gezellige binnenstad bevinden zich op 10 minuten fietsen. De wijk Nijlân ligt zeer gunstig ten opzichte van de haak om Leeuwarden. Binnen enkele minuten bereik je diverse uitvalswegen zoals de N31, A31 en A32.
Algemeen:
- instapklaar
- energielabel C
- ruime woonkamer met open keuken
- diepe achtertuin
- steeg achter huis met achterom
- op 10 minuten fietsen van het centrum van Leeuwarden
- nabij winkelplein
- meerdere speeltuinen in de wijk
In een kindvriendelijke buurt op slechts tien minuten fietsen van het centrum van Leeuwarden vind je deze zeer goed onderhouden tussenwoning. De mooie lichtinval in combinatie met de hippe inrichting zorgen voor een bijzonder sfeervol geheel. Er zijn drie slaapkamers en een moderne badkamer op de verdieping. De woning is goed geïsoleerd en grotendeels voorzien van HR++ beglazing. De achtertuin is diep zodat je hier heerlijk kunt genieten van de middag- en avondzon. Er is een achterom waardoor je gemakkelijk je fiets in de berging kan plaatsen. Op loopafstand is een groot winkelplein voor alle dagelijkse boodschappen. De voorgevel doet misschien anders vermoeden maar deze woning is verrassend ruim. We nemen je mee naar binnen.
Begane grond:
Je komt aanrijden in een autoluwe straat waar je voor huis de auto parkeert. Via de voordeur stap je de woning binnen waar je in de hal de garderobe en het toilet vindt. Ook is hier de meterkast, een handige kelderkast en de vaste trap naar de eerste verdieping. De fijne sfeervolle woonkamer heeft het zitgedeelte aan de straatkant. Aan de achterzijde is de open keuken (2020) en de eettafel geplaatst. Wat opvalt is dat alle wanden en plafonds strak zijn afgewerkt. De moderne keuken is voorzien van de nodige inbouwapparatuur zoals een vaatwasser, oven, koelkast, inductie kookplaat en afzuigkap. Daarnaast is er zeer veel bergruimte in de keuken. Via de keuken is er een directe toegang tot de bijkeuken. Er is hier ruimte voor de wasmachine en ook de cv-opstelling hangt hier. Ook hier is weer veel ruimte voor opslag. Via de woonkamer loop je zo de tuin in. De zonnige achtertuin ligt op het noordwesten en is zeer diep. Door de gunstige ligging is hier de hele dag wel een plekje in de zon of in de schaduw te vinden. Bovendien is er een handige achterom via de achtergelegen steeg.
Eerste verdieping:
Via de vaste trap kom je op de eerste verdieping waar je drie slaapkamers vindt. Doordat de woning ook hier recht opgetrokken is, zijn de slaapkamers ruim en twee ervan zijn voorzien van inbouwkasten. Één van de kamers is momenteel in gebruik als walk-in closet maar kan ook prima als slaapkamer gebruikt worden. Aan de voorzijde bevindt zich de strakke geheel betegelde badkamer (2022) met inloopdouche en wastafelmeubel. Op de overloop is een ruime inbouwkast voor extra opbergruimte.
De Marowijnestraat ligt in de groene wijk Nijlân. Naast veel groen, speelfaciliteiten en een heerlijke wandelroute langs het Van Harinxmakanaal beschikt de wijk over een winkelcentrum, scholen en sportcomplexen. De wijk is uitstekend bereikbaar per openbaar vervoer. Het centraal station en de gezellige binnenstad bevinden zich op 10 minuten fietsen. De wijk Nijlân ligt zeer gunstig ten opzichte van de haak om Leeuwarden. Binnen enkele minuten bereik je diverse uitvalswegen zoals de N31, A31 en A32.
Algemeen:
- instapklaar
- energielabel C
- ruime woonkamer met open keuken
- diepe achtertuin
- steeg achter huis met achterom
- op 10 minuten fietsen van het centrum van Leeuwarden
- nabij winkelplein
- meerdere speeltuinen in de wijk
Stel een vraag
Bel mij terug


























































