Leeuwarden Lenteklokje 29
Omschrijving
vraagprijs
€ 319.000 k.k.
Kenmerken
Overdracht
| Status | verkocht onder voorbehoud |
|---|---|
| Prijs | € 319.000 k.k. |
Bouw
| Bouwjaar | 1973 |
|---|---|
| Bouwvorm | bestaande bouw |
| Type Object | Woonhuis |
| Hoofdfunctie | Woonruimte |
Indeling
| Woonoppervlakte | 132 m² |
|---|---|
| Perceeloppervlakte | 145 m² |
| Woning Inhoud | 485 m³ |
| Kamers | 5 (4 slaapkamers) |
Energie
| Energielabel | C |
|---|
Interesse?
Ruime gezinswoning met zonnige tuin op het zuiden
In de woonwijk Aldlân Oost gelegen, vind je deze nette en praktisch ingedeelde eengezinswoning aan het Lenteklokje 29. De woning beschikt over drie slaapkamers op de eerste verdieping en een royale tweede verdieping met mogelijkheid voor nog twee slaapkamers.
Deze eindwoning is gelegen naast groen en heeft open zicht vanuit de zonnige tuin, gelegen op het zuiden. Ook is er aan de voorzijde van de woning een berging aanwezig.
De woning is geheel voorzien van kunststof kozijnen met HR beglazing en heeft 6 zonnepanelen. De vloer is geïsoleerd met korrels en er is dakisolatie aanwezig.
Aldlân staat bekend om zijn kindvriendelijke opzet, dit betekent wonen in een rustige, groene wijk waar brede lanen, speelse hofjes en veel openbare ruimte zorgen voor een ontspannen leefomgeving. Een fijne plek voor gezinnen of iedereen die graag royaal en rustig woont, maar toch dichtbij winkels, scholen, openbaar vervoer en uitvalswegen.
Indeling
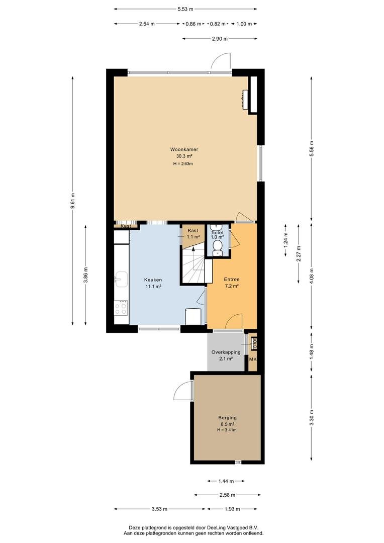
Bij binnenkomst tref je een ruime hal met moderne meterkast, toilet en extra deur naar de woonkamer. De keuken is voorzien van een handige trapkast, een inductie kookplaat met afzuigkap, een combimagnetron en een keukenboiler (2025). De ruime woonkamer heeft fijne lichtinval door de grote ramen aan achter- en zijkant van de woning.
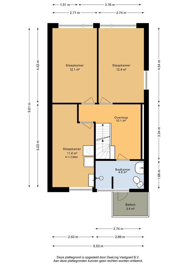
Op de eerste verdieping bevinden zich drie slaapkamers. De slaapkamer aan de voorzijde heeft een wastafel en ook de witgoedaansluiting is daar gerealiseerd. De badkamer beschikt over een douche, toilet en wastafel. Hier is ook de toegang tot een balkon. Op de overloop is extra kastruimte aanwezig.
De tweede verdieping is te bereiken met een vaste trap. Deze grote ruimte is zeer geschikt voor het realiseren van extra slaapkamer(s), werkruimte of hobbyruimte.
Kenmerken:
Ruime eindwoning met grote ramen, ook in de zijgevel
Gelegen naast groen en in rustige woonwijk
Zonnige tuin op het zuiden
Volledig voorzien van kunststof kozijnen met HR beglazing
6 zonnepanelen, dak- muur- en vloerisolatie
CV ketel Intergas eigendom
Kortom: een ideale starters- of gezinswoning met veel potentie!
In de woonwijk Aldlân Oost gelegen, vind je deze nette en praktisch ingedeelde eengezinswoning aan het Lenteklokje 29. De woning beschikt over drie slaapkamers op de eerste verdieping en een royale tweede verdieping met mogelijkheid voor nog twee slaapkamers.
Deze eindwoning is gelegen naast groen en heeft open zicht vanuit de zonnige tuin, gelegen op het zuiden. Ook is er aan de voorzijde van de woning een berging aanwezig.
De woning is geheel voorzien van kunststof kozijnen met HR beglazing en heeft 6 zonnepanelen. De vloer is geïsoleerd met korrels en er is dakisolatie aanwezig.
Aldlân staat bekend om zijn kindvriendelijke opzet, dit betekent wonen in een rustige, groene wijk waar brede lanen, speelse hofjes en veel openbare ruimte zorgen voor een ontspannen leefomgeving. Een fijne plek voor gezinnen of iedereen die graag royaal en rustig woont, maar toch dichtbij winkels, scholen, openbaar vervoer en uitvalswegen.
Indeling
Bij binnenkomst tref je een ruime hal met moderne meterkast, toilet en extra deur naar de woonkamer. De keuken is voorzien van een handige trapkast, een inductie kookplaat met afzuigkap, een combimagnetron en een keukenboiler (2025). De ruime woonkamer heeft fijne lichtinval door de grote ramen aan achter- en zijkant van de woning.
Op de eerste verdieping bevinden zich drie slaapkamers. De slaapkamer aan de voorzijde heeft een wastafel en ook de witgoedaansluiting is daar gerealiseerd. De badkamer beschikt over een douche, toilet en wastafel. Hier is ook de toegang tot een balkon. Op de overloop is extra kastruimte aanwezig.
De tweede verdieping is te bereiken met een vaste trap. Deze grote ruimte is zeer geschikt voor het realiseren van extra slaapkamer(s), werkruimte of hobbyruimte.
Kenmerken:
Ruime eindwoning met grote ramen, ook in de zijgevel
Gelegen naast groen en in rustige woonwijk
Zonnige tuin op het zuiden
Volledig voorzien van kunststof kozijnen met HR beglazing
6 zonnepanelen, dak- muur- en vloerisolatie
CV ketel Intergas eigendom
Kortom: een ideale starters- of gezinswoning met veel potentie!

Anneke Hofstee ARMT Adviseur bestaande bouw
Stel een vraag
Bel mij terug






























































































