Leeuwarden Leeuwerikstraat 151
Omschrijving
vraagprijs
€ 479.000 k.k.
Kenmerken
Overdracht
| Status | beschikbaar |
|---|---|
| Prijs | € 479.000 k.k. |
Bouw
| Bouwjaar | 1936 |
|---|---|
| Bouwvorm | bestaande bouw |
| Type Object | Woonhuis |
| Hoofdfunctie | Woonruimte |
Indeling
| Woonoppervlakte | 153 m² |
|---|---|
| Perceeloppervlakte | 141 m² |
| Woning Inhoud | 555 m³ |
| Kamers | 6 (5 slaapkamers) |
Energie
| Energielabel | D |
|---|
Interesse?
Karaktervolle stadswoning, volledig vernieuwd en verduurzaamd
Wonen aan de Leeuwerikstraat in een moderne twee-onder-een-kapwoning uit 1936 met de sfeer van toen en het comfort van nu. Deze charmante woning combineert klassieke jaren ’30 elementen met moderne luxe. De karakteristieke erker aan de voorzijde, openslaande deuren naar de zonnige stadstuin op het zuidoosten en stijlvolle glas-in-lood ramen bij de trap geven de woning direct allure en sfeer. Met circa 155 m² woonoppervlakte, drie slaapkamers en een zonnige stadstuin op het zuidoosten is dit een huis met inhoud. Dankzij de volledige renovatie in 2025 is het bovendien helemaal klaar voor de toekomst. Hier combineer je karakter met zekerheid.
Modernisatie:
De huidige bewoner heeft na aankoop bewust gekozen om de woning grondig en doordacht te moderniseren, met oog voor comfort en duurzaamheid. In 2025 is de woning getransformeerd tot een prachtige basis om heerlijk thuis te komen. Als stijlvolle basis is door de hele woning een fraaie visgraatvloer gelegd die direct zorgt voor een warme en luxe uitstraling in combinatie met de vernieuwde verlichting en inbouwspotjes. Vertrekken worden gescheiden door elegante taatsdeuren voorzien van glas, wat zorgt voor een open maar subtiele afscheiding.
De keuken is uitgevoerd in een moderne, hoogwaardige stijl. Hier kook je in een frisse, eigentijdse ruimte met nieuwe inbouwapparatuur en een praktische indeling. De badkamer is strak afgewerkt met fraaie betegeling en heeft een eigentijdse uitstraling. De inloopdouche, het toilet en het wastafelmeubel vormen samen een praktisch en stijlvol geheel, waarbij koperkleurige kranen en accessoires zorgen voor een warm accent.
Er is een flinke stap gezet op het gebied van elektra: de meterkast is volledig vernieuwd en uitgebreid naar 3-fasen stroom, terwijl ook alle stopcontacten, bedrading en verlichting zijn gemoderniseerd.
Op het gebied van duurzaamheid is eveneens een flinke stap gezet. De woning is voorzien van 10 zonnepanelen (2025), HR++ beglazing in houten kozijnen en de woning is zorgvuldig geïsoleerd, wat resulteert in energielabel D. Voor een 2/1- kapwoning uit 1936 is dat een bijzonder sterke prestatie. Zo woon je hier met de karakteristieke uitstraling van een jaren ’30 woning, maar met het technische niveau van nu.
Begane grond:
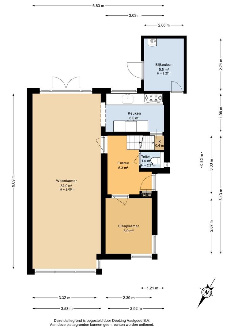
- Fraaie zijentree met binnenkomst in de hal met toilet, meterkast en trapopgang naar de eerste verdieping.
- Fijne doorzonwoonkamer met aan de achterzijde de eetkamer met openslaande deuren naar de stadstuin.
- De splinternieuwe keuken, modern uitgevoerd en strak afgewerkt. Vanuit de keuken is er tevens toegang tot de kelder.
- Daarnaast is er een extra kamer op de begane grond. Ideaal als werkplek, praktijkruimte aan huis of een slaapkamer
1e verdieping:
- De overloop geeft toegang tot drie ruime slaapkamers.
- De badkamer is modern afgewerkt en voorzien van een ligbad, douche en wastafel.
2e verdieping:
- Via een vaste trap bereik je deze royale verdieping, ideaal voor extra slaapkamers, werkruimte of hobby. Tevens is hier plek voor de wasmachine en droger. Extra luxe: een royaal ligbad om heerlijk te ontspannen
Buitenruimte:
- De stadstuin ligt op het zuidoosten en biedt een fijne plek om in de zon te zitten. Via de eigen berging is er een praktische achterom aanwezig, ideaal voor fietsen en dagelijks gemak.
Kenmerken:
- Bouwjaar: 1936 met Amsterdamse School elementen
- Woonoppervlakte 153 m² !
- 4 slaapkamers (en de mogelijkheid voor meer kamers)
- Gelegen in het populaire westen van Leeuwarden
De westkant van Leeuwarden is al jaren geliefd. Je woont hier nabij de Harlingerstraatweg in een karaktervolle woonomgeving met voorzieningen, scholen en winkels in de buurt. Binnen enkele minuten fietsen sta je in de binnenstad. Rustig wonen, met de stad altijd dichtbij.
Maak snel een afspraak voor een bezichtiging en ervaar zelf de unieke sfeer, ruimte en mogelijkheden die deze woning te bieden heeft!
Wonen aan de Leeuwerikstraat in een moderne twee-onder-een-kapwoning uit 1936 met de sfeer van toen en het comfort van nu. Deze charmante woning combineert klassieke jaren ’30 elementen met moderne luxe. De karakteristieke erker aan de voorzijde, openslaande deuren naar de zonnige stadstuin op het zuidoosten en stijlvolle glas-in-lood ramen bij de trap geven de woning direct allure en sfeer. Met circa 155 m² woonoppervlakte, drie slaapkamers en een zonnige stadstuin op het zuidoosten is dit een huis met inhoud. Dankzij de volledige renovatie in 2025 is het bovendien helemaal klaar voor de toekomst. Hier combineer je karakter met zekerheid.
Modernisatie:
De huidige bewoner heeft na aankoop bewust gekozen om de woning grondig en doordacht te moderniseren, met oog voor comfort en duurzaamheid. In 2025 is de woning getransformeerd tot een prachtige basis om heerlijk thuis te komen. Als stijlvolle basis is door de hele woning een fraaie visgraatvloer gelegd die direct zorgt voor een warme en luxe uitstraling in combinatie met de vernieuwde verlichting en inbouwspotjes. Vertrekken worden gescheiden door elegante taatsdeuren voorzien van glas, wat zorgt voor een open maar subtiele afscheiding.
De keuken is uitgevoerd in een moderne, hoogwaardige stijl. Hier kook je in een frisse, eigentijdse ruimte met nieuwe inbouwapparatuur en een praktische indeling. De badkamer is strak afgewerkt met fraaie betegeling en heeft een eigentijdse uitstraling. De inloopdouche, het toilet en het wastafelmeubel vormen samen een praktisch en stijlvol geheel, waarbij koperkleurige kranen en accessoires zorgen voor een warm accent.
Er is een flinke stap gezet op het gebied van elektra: de meterkast is volledig vernieuwd en uitgebreid naar 3-fasen stroom, terwijl ook alle stopcontacten, bedrading en verlichting zijn gemoderniseerd.
Op het gebied van duurzaamheid is eveneens een flinke stap gezet. De woning is voorzien van 10 zonnepanelen (2025), HR++ beglazing in houten kozijnen en de woning is zorgvuldig geïsoleerd, wat resulteert in energielabel D. Voor een 2/1- kapwoning uit 1936 is dat een bijzonder sterke prestatie. Zo woon je hier met de karakteristieke uitstraling van een jaren ’30 woning, maar met het technische niveau van nu.
Begane grond:
- Fraaie zijentree met binnenkomst in de hal met toilet, meterkast en trapopgang naar de eerste verdieping.
- Fijne doorzonwoonkamer met aan de achterzijde de eetkamer met openslaande deuren naar de stadstuin.
- De splinternieuwe keuken, modern uitgevoerd en strak afgewerkt. Vanuit de keuken is er tevens toegang tot de kelder.
- Daarnaast is er een extra kamer op de begane grond. Ideaal als werkplek, praktijkruimte aan huis of een slaapkamer
1e verdieping:
- De overloop geeft toegang tot drie ruime slaapkamers.
- De badkamer is modern afgewerkt en voorzien van een ligbad, douche en wastafel.
2e verdieping:
- Via een vaste trap bereik je deze royale verdieping, ideaal voor extra slaapkamers, werkruimte of hobby. Tevens is hier plek voor de wasmachine en droger. Extra luxe: een royaal ligbad om heerlijk te ontspannen
Buitenruimte:
- De stadstuin ligt op het zuidoosten en biedt een fijne plek om in de zon te zitten. Via de eigen berging is er een praktische achterom aanwezig, ideaal voor fietsen en dagelijks gemak.
Kenmerken:
- Bouwjaar: 1936 met Amsterdamse School elementen
- Woonoppervlakte 153 m² !
- 4 slaapkamers (en de mogelijkheid voor meer kamers)
- Gelegen in het populaire westen van Leeuwarden
De westkant van Leeuwarden is al jaren geliefd. Je woont hier nabij de Harlingerstraatweg in een karaktervolle woonomgeving met voorzieningen, scholen en winkels in de buurt. Binnen enkele minuten fietsen sta je in de binnenstad. Rustig wonen, met de stad altijd dichtbij.
Maak snel een afspraak voor een bezichtiging en ervaar zelf de unieke sfeer, ruimte en mogelijkheden die deze woning te bieden heeft!

Peter Meijer NVM Register Makelaar - Taxateur
Plan bezichtiging
voor: Leeuwerikstraat 151
Stel een vraag
Bel mij terug




























































































































