Drachten Kuiperssingel 32
Omschrijving
vraagprijs
€ 289.000 k.k.
Kenmerken
Overdracht
| Status | beschikbaar |
|---|---|
| Prijs | € 289.000 k.k. |
Bouw
| Bouwjaar | 1956 |
|---|---|
| Bouwvorm | bestaande bouw |
| Type Object | Woonhuis |
| Hoofdfunctie | Woonruimte |
Indeling
| Woonoppervlakte | 102 m² |
|---|---|
| Perceeloppervlakte | 196 m² |
| Woning Inhoud | 356 m³ |
| Kamers | 6 (4 slaapkamers) |
Energie
| Energielabel | D |
|---|
Interesse?
Ruime eengezinswoning met zonnige erker in kindvriendelijke woonomgeving!
Wonen nabij het centrum én elke dag genieten van een fijne woonomgeving? Deze woning aan de Kuiperssingel combineert het beste van twee werelden: alle voorzieningen binnen handbereik én een prettige ligging in een rustige straat.
De Kuiperssingel met speelveldjes heeft een centrale ligging in Drachten. Vanuit je woning ben je zo in het gezellige centrum, waar je terechtkunt voor winkels, supermarkten, speciaalzaken, restaurants, cafés en culturele voorzieningen zoals de bibliotheek en schouwburg. Ook scholen, sportvoorzieningen en openbaar vervoer bevinden zich op korte afstand. Via de nabijgelegen uitvalswegen reis je bovendien snel naar Leeuwarden, Heerenveen en Groningen.
Ben je op zoek naar een nette, comfortabele gezinswoning met veel lichtinval en een fijne buitenruimte? Dan is deze woning absoluut een bezichtiging waard! Gelegen in een rustige en kindvriendelijke buurt met scholen in de directe omgeving en het centrum op loopafstand, woon je hier op een ideale locatie voor het hele gezin.
De woning beschikt over een nette voor en achtertuin. Vanuit de woning kijk je vrij uit over een speeltuintje, een prettig groen uitzicht zonder directe overburen. De achtertuin is gelegen op het noorden en is onderhoudsarm aangelegd met bestrating en borders met beplanting.
We nemen je graag mee naar binnen:
Begane grond;
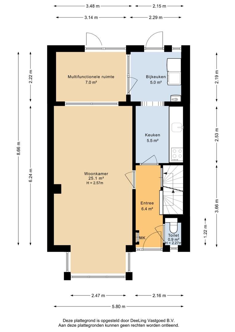
Via de entree kom je in de hal met toilet. De woonkamer is licht en ruim opgezet. De aangebouwde erker aan de voorzijde, gelegen op het zuiden, zorgt voor extra lichtinval en biedt een mooi uitzicht over de straat. De woonkamer is voorzien van een nette vloer en een pelletkachel die zorgt voor extra sfeer en warmte tijdens koude dagen. De dichte keuken sluit aan op de woonkamer en is praktisch ingericht. Aansluitend bevindt zich de bijkeuken met aansluitingen voor het witgoed. De aangebouwde extra kamer is ideaal als extra werk- en bergruimte.
Eerste verdieping:
Op de eerste verdieping bevinden zich drie slaapkamers, allen afgewerkt met tapijt en uitgevoerd in neutrale, lichte kleuren die zorgen voor een rustige uitstraling. De badkamer is praktisch ingericht en voorzien van een douchehoek, toilet en wastafel.
Tweede verdieping:
Via een vaste trap bereik je de zolder. Overloop en vierde slaapkamer en bergruimte.
De woning staat op een ruim perceel eigen grond van 179 m² en is gebouwd in 1956. De diepe achtertuin heeft een tuinschuur en is achterom bereikbaar. Dankzij de grote raampartijen en de erker geniet je binnen van een prettige lichtinval, goed uitzicht en een ruimtelijk gevoel.
Kortom: een nette en praktische gezinswoning met veel licht, een fijne tuin, vrij uitzicht en een uitstekende ligging nabij voorzieningen. Een heerlijke plek om thuis te komen!
Kijk voor meer informatie op de speciale website; Kuiperssingel32.nl
Bijzonderheden:
- Bouwjaar: 1956
- Perceeloppervlakte: 179 m2
- Erker voorzien van screens
- Pelletkachel
- Deels kunststof kozijnen
- 8 Eigen zonnepanelen
- Eigen garagebox
Wil je deze fijne woning zelf ervaren? Maak dan snel een afspraak voor een bezichtiging!
Wonen nabij het centrum én elke dag genieten van een fijne woonomgeving? Deze woning aan de Kuiperssingel combineert het beste van twee werelden: alle voorzieningen binnen handbereik én een prettige ligging in een rustige straat.
De Kuiperssingel met speelveldjes heeft een centrale ligging in Drachten. Vanuit je woning ben je zo in het gezellige centrum, waar je terechtkunt voor winkels, supermarkten, speciaalzaken, restaurants, cafés en culturele voorzieningen zoals de bibliotheek en schouwburg. Ook scholen, sportvoorzieningen en openbaar vervoer bevinden zich op korte afstand. Via de nabijgelegen uitvalswegen reis je bovendien snel naar Leeuwarden, Heerenveen en Groningen.
Ben je op zoek naar een nette, comfortabele gezinswoning met veel lichtinval en een fijne buitenruimte? Dan is deze woning absoluut een bezichtiging waard! Gelegen in een rustige en kindvriendelijke buurt met scholen in de directe omgeving en het centrum op loopafstand, woon je hier op een ideale locatie voor het hele gezin.
De woning beschikt over een nette voor en achtertuin. Vanuit de woning kijk je vrij uit over een speeltuintje, een prettig groen uitzicht zonder directe overburen. De achtertuin is gelegen op het noorden en is onderhoudsarm aangelegd met bestrating en borders met beplanting.
We nemen je graag mee naar binnen:
Begane grond;
Via de entree kom je in de hal met toilet. De woonkamer is licht en ruim opgezet. De aangebouwde erker aan de voorzijde, gelegen op het zuiden, zorgt voor extra lichtinval en biedt een mooi uitzicht over de straat. De woonkamer is voorzien van een nette vloer en een pelletkachel die zorgt voor extra sfeer en warmte tijdens koude dagen. De dichte keuken sluit aan op de woonkamer en is praktisch ingericht. Aansluitend bevindt zich de bijkeuken met aansluitingen voor het witgoed. De aangebouwde extra kamer is ideaal als extra werk- en bergruimte.
Eerste verdieping:
Op de eerste verdieping bevinden zich drie slaapkamers, allen afgewerkt met tapijt en uitgevoerd in neutrale, lichte kleuren die zorgen voor een rustige uitstraling. De badkamer is praktisch ingericht en voorzien van een douchehoek, toilet en wastafel.
Tweede verdieping:
Via een vaste trap bereik je de zolder. Overloop en vierde slaapkamer en bergruimte.
De woning staat op een ruim perceel eigen grond van 179 m² en is gebouwd in 1956. De diepe achtertuin heeft een tuinschuur en is achterom bereikbaar. Dankzij de grote raampartijen en de erker geniet je binnen van een prettige lichtinval, goed uitzicht en een ruimtelijk gevoel.
Kortom: een nette en praktische gezinswoning met veel licht, een fijne tuin, vrij uitzicht en een uitstekende ligging nabij voorzieningen. Een heerlijke plek om thuis te komen!
Kijk voor meer informatie op de speciale website; Kuiperssingel32.nl
Bijzonderheden:
- Bouwjaar: 1956
- Perceeloppervlakte: 179 m2
- Erker voorzien van screens
- Pelletkachel
- Deels kunststof kozijnen
- 8 Eigen zonnepanelen
- Eigen garagebox
Wil je deze fijne woning zelf ervaren? Maak dan snel een afspraak voor een bezichtiging!
Plan bezichtiging
voor: Kuiperssingel 32
Stel een vraag
Bel mij terug
































































































