Goutum Jelleslân 22
Omschrijving
vraagprijs
€ 419.000 k.k.
Kenmerken
Overdracht
| Status | onder bod |
|---|---|
| Prijs | € 419.000 k.k. |
Bouw
| Bouwjaar | 2017 |
|---|---|
| Bouwvorm | bestaande bouw |
| Type Object | Woonhuis |
| Hoofdfunctie | Woonruimte |
Indeling
| Woonoppervlakte | 104 m² |
|---|---|
| Perceeloppervlakte | 117 m² |
| Woning Inhoud | 375 m³ |
| Kamers | 5 (4 slaapkamers) |
Energie
| Energielabel | A |
|---|
Interesse?
Zie je jezelf al wonen in een moderne, instapklare woning waar alles gewoon klopt en je alleen nog je meubels hoeft neer te zetten? Dan is deze tussenwoning aan de Jelleslân 22 echt iets voor jou! De woning voelt nog als nieuw dankzij het bouwjaar 2017, voelt heerlijk ruim aan met 104 m² woonoppervlak en vier slaapkamers en biedt een hoog comfort door de volledige isolatie en energielabel A. Dankzij de gasloze installatie en de frisse, moderne afwerking kun je hier meteen comfortabel wonen.
Je woont hier ‘achter de kerk’ in het buurtschap Goutum-Súd, onderdeel van het geliefde dorp Goutum. De straat loopt in een lichte kromming langs de kerk, wat zorgt voor een beschutte en gezellige sfeer in de buurt. De wijk is ruim opgezet, kindvriendelijk en heeft een prettig dorps karakter. Tegelijkertijd ligt de stad Leeuwarden op korte afstand.
Begane grond:
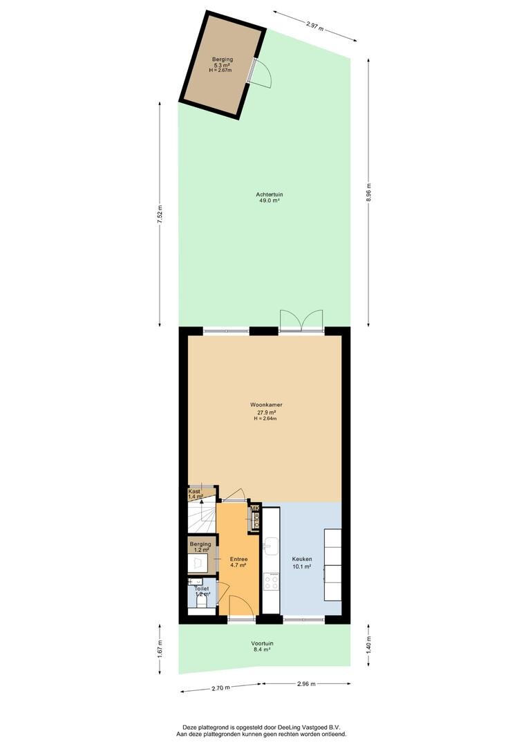
Door de doordachte indeling zijn alle ruimtes vanuit de hal bereikbaar. Aan de linkerzijde bevinden zich het (gasten)toilet met fonteintje, een praktische berging met witgoedaansluiting en de trapopgang naar de eerste verdieping. Aan de rechterzijde vind je de meterkast, inclusief de unit voor de stadsverwarming.
Vanuit de hal loop je door naar de tuingerichte woonkamer. Deze is heerlijk licht en beschikt over een fraaie gietvloer en dubbele tuindeuren naar de achtertuin. Dankzij de open indeling voelt de ruimte royaal aan, met voldoende plek voor een comfortabele zithoek en een eethoek. Aan de voorzijde bevindt zich de moderne, greeploze keuken in een stijlvolle taupekleur. De keuken is voorzien van ruime lades en inbouwapparatuur van ATAG, waaronder een inductiekookplaat en een combi-oven met magnetronfunctie. Het grote, verdiepingshoge raam zorgt hier voor een prettige hoeveelheid daglicht.
Verder beschikt de woonkamer over een praktische trapkast voor extra bergruimte en is de gehele begane grond voorzien van comfortabele vloerverwarming.
1e verdieping:
Op de eerste verdieping kom je op de overloop die toegang geeft tot drie ruime slaapkamers met veel lichtinval. De badkamer is netjes en smaakvol uitgevoerd en beschikt over een inloopdouche, wastafelmeubel en tweede toilet. Ook hier in de badkamer is vloerverwarming aanwezig, wat zorgt voor extra comfort.
2e verdieping:
Via een vaste trap bereik je de tweede verdieping. Deze ruimte kan gebruikt worden als master bedroom maar is ook prima geschikt als hobbyruimte of thuiswerkplek. Twee grote dakvensters zorgen hier voor veel licht.
Vliering:
De nok van de woning is optimaal benut met een praktische vliering van circa 1 meter hoog. Ideaal voor het opbergen van koffers, kerstspullen of kampeerspullen.
Buitenruimte:
De achtertuin is circa 12 meter diep, onderhoudsvrij aangelegd en biedt een fijne plek om buiten te zitten. Achter in de tuin staat een houten berging met werkbankje, en is tevens een handige plek voor de fietsen. Via de achterom loop je zo naar het openbare parkeerterrein dat op korte afstand van de woning ligt.
Kenmerken:
- Energielabel A
- Bouwjaar: 2017 (VDM woning)
- Woonoppervlakte 104 m²
- Perceel: 117 m² eigen grond
- Gasloos en instapklaar
- Verwarming en warm water volledig geregeld via stadsverwarming!
- Volledig geïsoleerd en voorzien van kunststof kozijnen met HR++ beglazing
- Vloerverwarming op de begane grond en in de badkamer
- 4 slaapkamers
- Veel lichtinval op de verdiepingen door grote Velux tuimeldakramen
Ben je op zoek naar een instapklare, moderne woning in een gezellige dorpsomgeving vlak bij Leeuwarden? Maak dan snel een afspraak voor een bezichtiging en ontdek zelf de ruimte, het comfort en de fijne sfeer van deze woning aan de Jelleslân 22.
Je woont hier ‘achter de kerk’ in het buurtschap Goutum-Súd, onderdeel van het geliefde dorp Goutum. De straat loopt in een lichte kromming langs de kerk, wat zorgt voor een beschutte en gezellige sfeer in de buurt. De wijk is ruim opgezet, kindvriendelijk en heeft een prettig dorps karakter. Tegelijkertijd ligt de stad Leeuwarden op korte afstand.
Begane grond:
Door de doordachte indeling zijn alle ruimtes vanuit de hal bereikbaar. Aan de linkerzijde bevinden zich het (gasten)toilet met fonteintje, een praktische berging met witgoedaansluiting en de trapopgang naar de eerste verdieping. Aan de rechterzijde vind je de meterkast, inclusief de unit voor de stadsverwarming.
Vanuit de hal loop je door naar de tuingerichte woonkamer. Deze is heerlijk licht en beschikt over een fraaie gietvloer en dubbele tuindeuren naar de achtertuin. Dankzij de open indeling voelt de ruimte royaal aan, met voldoende plek voor een comfortabele zithoek en een eethoek. Aan de voorzijde bevindt zich de moderne, greeploze keuken in een stijlvolle taupekleur. De keuken is voorzien van ruime lades en inbouwapparatuur van ATAG, waaronder een inductiekookplaat en een combi-oven met magnetronfunctie. Het grote, verdiepingshoge raam zorgt hier voor een prettige hoeveelheid daglicht.
Verder beschikt de woonkamer over een praktische trapkast voor extra bergruimte en is de gehele begane grond voorzien van comfortabele vloerverwarming.
1e verdieping:
Op de eerste verdieping kom je op de overloop die toegang geeft tot drie ruime slaapkamers met veel lichtinval. De badkamer is netjes en smaakvol uitgevoerd en beschikt over een inloopdouche, wastafelmeubel en tweede toilet. Ook hier in de badkamer is vloerverwarming aanwezig, wat zorgt voor extra comfort.
2e verdieping:
Via een vaste trap bereik je de tweede verdieping. Deze ruimte kan gebruikt worden als master bedroom maar is ook prima geschikt als hobbyruimte of thuiswerkplek. Twee grote dakvensters zorgen hier voor veel licht.
Vliering:
De nok van de woning is optimaal benut met een praktische vliering van circa 1 meter hoog. Ideaal voor het opbergen van koffers, kerstspullen of kampeerspullen.
Buitenruimte:
De achtertuin is circa 12 meter diep, onderhoudsvrij aangelegd en biedt een fijne plek om buiten te zitten. Achter in de tuin staat een houten berging met werkbankje, en is tevens een handige plek voor de fietsen. Via de achterom loop je zo naar het openbare parkeerterrein dat op korte afstand van de woning ligt.
Kenmerken:
- Energielabel A
- Bouwjaar: 2017 (VDM woning)
- Woonoppervlakte 104 m²
- Perceel: 117 m² eigen grond
- Gasloos en instapklaar
- Verwarming en warm water volledig geregeld via stadsverwarming!
- Volledig geïsoleerd en voorzien van kunststof kozijnen met HR++ beglazing
- Vloerverwarming op de begane grond en in de badkamer
- 4 slaapkamers
- Veel lichtinval op de verdiepingen door grote Velux tuimeldakramen
Ben je op zoek naar een instapklare, moderne woning in een gezellige dorpsomgeving vlak bij Leeuwarden? Maak dan snel een afspraak voor een bezichtiging en ontdek zelf de ruimte, het comfort en de fijne sfeer van deze woning aan de Jelleslân 22.

Peter Meijer NVM Register Makelaar - Taxateur
Plan bezichtiging
voor: Jelleslân 22
Stel een vraag
Bel mij terug





































































































