Leeuwarden Hondiusstraat 8
Omschrijving
vraagprijs
€ 435.000 k.k.
Kenmerken
Overdracht
| Status | verkocht onder voorbehoud |
|---|---|
| Prijs | € 435.000 k.k. |
Bouw
| Bouwjaar | 2000 |
|---|---|
| Bouwvorm | bestaande bouw |
| Type Object | Woonhuis |
| Hoofdfunctie | Woonruimte |
Indeling
| Woonoppervlakte | 138 m² |
|---|---|
| Perceeloppervlakte | 239 m² |
| Woning Inhoud | 461 m³ |
| Kamers | 4 (3 slaapkamers) |
Energie
| Energielabel | A |
|---|
Interesse?
Op zoek naar een fijne woning met verrassend veel ruimte in het mooie Huizum?
Dan is deze moderne woning met energielabel A aan de Hondiusstraat zeker het bekijken waard. De woning beschikt over een ruime woonkamer, een royale woonkeuken, drie slaapkamers op de verdieping en een berging op de begane grond. De woning is degelijk gebouwd in 2000, is goed onderhouden en voorzien van betonnen vloeren en goede isolatie.
De woning ligt in de geliefde wijk Huizum, een prettige woonomgeving met een dorps karakter en alle voorzieningen binnen handbereik. Het NS-station, winkelstraat De Schrans, scholen en sportvoorzieningen liggen op korte afstand en ook het centrum van Leeuwarden bereik je eenvoudig per fiets.
Begane grond:
Je komt binnen in de hal met meterkast, trapopgang, praktische bergkast en een modern toilet met fonteintje. Vanuit de hal bereik je de voormalige garage, die nu in gebruik is als berging. De woonkamer bevindt zich aan de achterzijde en biedt een prettig uitzicht op de achtertuin. Dankzij de grote raampartijen valt hier veel daglicht naar binnen en via de schuifpui loop je zo de tuin in. De keuken (2021) is deel van de leefruimte door de open indeling en is uitgevoerd in hoekopstelling, voorzien van diverse inbouwapparatuur waaronder een inductie kookplaat, oven, magnetron, afzuigkap, vaatwasser, koelkast en vriezer.
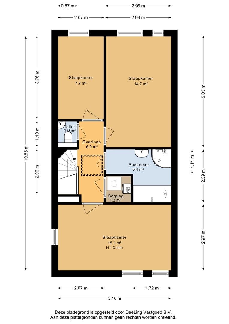
1e verdieping:
De ruime overloop beschikt over een lichtkoepel die zorgt voor extra daglicht. Hier bevinden zich ook een apart toilet met fonteintje en een praktische kast met de opstelling van de cv-ketel (Remeha, 2020), mechanische ventilatie en wasmachineaansluiting.
De badkamer is compleet ingericht met een ligbad, douche, wastafel en designradiator. Aan de voorzijde ligt een royale slaapkamer over de volledige breedte van de woning. Aan de achterzijde bevinden zich twee slaapkamers met uitzicht op de tuin.
Buitenruimte:
De achtertuin is circa 12 meter diep en 8 meter breed en biedt veel privacy. Dankzij de ligging op het noordwesten kun je hier in de middag en avond heerlijk van de zon genieten. De tuin is recent aangepakt en beschikt over meerdere zitplekken, een overdekt terras en een praktische achterom.
Aan de voorzijde ligt een verzorgde voortuin met oprit waar ruimte is om één of twee auto’s op eigen terrein te parkeren. Daarnaast is er in de straat voldoende openbare parkeergelegenheid.
Kenmerken:
- Woonoppervlakte 139 m²
- Energielabel A
- Volledige isolatie
- Remeha combiketel (2020)
- Vloerverwarming op de begane grond
- 9 Zonnepanelen (2023)
- Keuken vernieuwd in 2021
Nieuwsgierig geworden? Plan een bezichtiging en ontdek zelf de ruimte, het comfort en de mogelijkheden van deze woning.
Dan is deze moderne woning met energielabel A aan de Hondiusstraat zeker het bekijken waard. De woning beschikt over een ruime woonkamer, een royale woonkeuken, drie slaapkamers op de verdieping en een berging op de begane grond. De woning is degelijk gebouwd in 2000, is goed onderhouden en voorzien van betonnen vloeren en goede isolatie.
De woning ligt in de geliefde wijk Huizum, een prettige woonomgeving met een dorps karakter en alle voorzieningen binnen handbereik. Het NS-station, winkelstraat De Schrans, scholen en sportvoorzieningen liggen op korte afstand en ook het centrum van Leeuwarden bereik je eenvoudig per fiets.
Begane grond:
Je komt binnen in de hal met meterkast, trapopgang, praktische bergkast en een modern toilet met fonteintje. Vanuit de hal bereik je de voormalige garage, die nu in gebruik is als berging. De woonkamer bevindt zich aan de achterzijde en biedt een prettig uitzicht op de achtertuin. Dankzij de grote raampartijen valt hier veel daglicht naar binnen en via de schuifpui loop je zo de tuin in. De keuken (2021) is deel van de leefruimte door de open indeling en is uitgevoerd in hoekopstelling, voorzien van diverse inbouwapparatuur waaronder een inductie kookplaat, oven, magnetron, afzuigkap, vaatwasser, koelkast en vriezer.
1e verdieping:
De ruime overloop beschikt over een lichtkoepel die zorgt voor extra daglicht. Hier bevinden zich ook een apart toilet met fonteintje en een praktische kast met de opstelling van de cv-ketel (Remeha, 2020), mechanische ventilatie en wasmachineaansluiting.
De badkamer is compleet ingericht met een ligbad, douche, wastafel en designradiator. Aan de voorzijde ligt een royale slaapkamer over de volledige breedte van de woning. Aan de achterzijde bevinden zich twee slaapkamers met uitzicht op de tuin.
Buitenruimte:
De achtertuin is circa 12 meter diep en 8 meter breed en biedt veel privacy. Dankzij de ligging op het noordwesten kun je hier in de middag en avond heerlijk van de zon genieten. De tuin is recent aangepakt en beschikt over meerdere zitplekken, een overdekt terras en een praktische achterom.
Aan de voorzijde ligt een verzorgde voortuin met oprit waar ruimte is om één of twee auto’s op eigen terrein te parkeren. Daarnaast is er in de straat voldoende openbare parkeergelegenheid.
Kenmerken:
- Woonoppervlakte 139 m²
- Energielabel A
- Volledige isolatie
- Remeha combiketel (2020)
- Vloerverwarming op de begane grond
- 9 Zonnepanelen (2023)
- Keuken vernieuwd in 2021
Nieuwsgierig geworden? Plan een bezichtiging en ontdek zelf de ruimte, het comfort en de mogelijkheden van deze woning.
Stel een vraag
Bel mij terug
































































































