Scharsterbrug Hollandiastraat 16
Omschrijving
vraagprijs
€ 299.000 k.k.
Kenmerken
Overdracht
| Status | beschikbaar |
|---|---|
| Prijs | € 299.000 k.k. |
Bouw
| Bouwjaar | 1910 |
|---|---|
| Bouwvorm | bestaande bouw |
| Type Object | Woonhuis |
| Hoofdfunctie | Woonruimte |
Indeling
| Woonoppervlakte | 80 m² |
|---|---|
| Perceeloppervlakte | 214 m² |
| Woning Inhoud | 291 m³ |
| Kamers | 3 (2 slaapkamers) |
Energie
| Energielabel | D |
|---|
Interesse?
Vrijstaande woning met vrij uitzicht en zonnige tuin in Scharsterbrug
Aan de Hollandiastraat 16 in Scharsterbrug staat deze vrijstaande woning met vrij uitzicht aan de voorzijde en een zonnige tuin op het zuidoosten. De woning is in de afgelopen jaren grotendeels gemoderniseerd door de vorige eigenaren en biedt daarmee een fijne basis om verder naar eigen wens te maken.
Ligging:
De woning ligt aan de doorgaande Hollandiastraat in het dorp Scharsterbrug, op korte afstand van Joure. Hier vind je winkels, scholen en sportvoorzieningen. Dankzij de nabijheid van de A6 en A7 zijn plaatsen als Heerenveen, Sneek en zelfs de Randstad goed bereikbaar. De omgeving is groen en waterrijk, met het bos van Sint Nicolaasga en watersportdorp Langweer in de buurt.
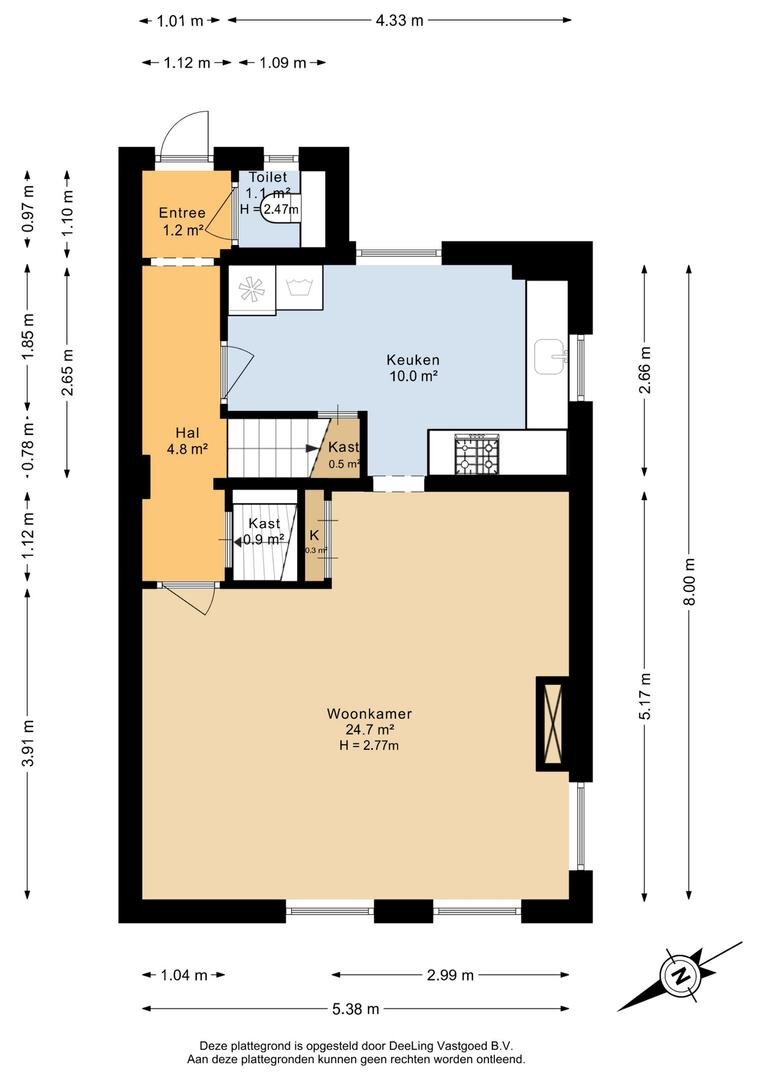
Begane grond:
Via de achterzijde kom je binnen in de hal met toegang tot het toilet (vernieuwd in 2022) en de meterkast (uitgebreid naar 6 groepen).
De lichte woonkamer heeft een vrij uitzicht aan de voorzijde en een open keuken voorzien van een 4-pits gaskookplaat, afzuigkap, heteluchtoven en vaste kast. Op de begane grond ligt een laminaatvloer en is er een ruime kelder aanwezig, ideaal voor extra bergruimte.
Aan de voorzijde zijn kunststof kozijnen met HR+++ glas geplaatst, wat zorgt voor betere isolatie en minder onderhoud.
Eerste verdieping
De bovenverdieping is in 2020-2021 grondig gerenoveerd. Daarbij zijn onder andere het dak geïsoleerd, de elektra vernieuwd en nieuwe dakramen en een kunststof kozijn geplaatst.
De badkamer (2020) is modern uitgevoerd met een inloopdouche, wastafelmeubel en designradiator. Verder zijn er twee slaapkamers, een overloop met vaste kast en de cv-installatie (2019).
Buitenruimte:
De zonnige tuin op het zuidoosten biedt een prettige buitenruimte om te genieten van het weer. Dankzij de overkapping is er ook een fijne plek in de schaduw. De tuin is overzichtelijk ingedeeld en biedt ruimte voor een terras en wat groen.
Kenmerken samengevat:
- Vrijstaande woning met vrij uitzicht aan de voorzijde
- 5 zonnepanelen
- Zonnige tuin op het zuidoosten met overkapping
- Kunststof kozijnen met HR+++ glas aan de voorzijde
- Badkamer (2020) en toilet (2022)
- Bovenverdieping gerenoveerd in 2020-2021
- Gelegen aan doorgaande weg, op fietsafstand van Joure
Aan de Hollandiastraat 16 in Scharsterbrug staat deze vrijstaande woning met vrij uitzicht aan de voorzijde en een zonnige tuin op het zuidoosten. De woning is in de afgelopen jaren grotendeels gemoderniseerd door de vorige eigenaren en biedt daarmee een fijne basis om verder naar eigen wens te maken.
Ligging:
De woning ligt aan de doorgaande Hollandiastraat in het dorp Scharsterbrug, op korte afstand van Joure. Hier vind je winkels, scholen en sportvoorzieningen. Dankzij de nabijheid van de A6 en A7 zijn plaatsen als Heerenveen, Sneek en zelfs de Randstad goed bereikbaar. De omgeving is groen en waterrijk, met het bos van Sint Nicolaasga en watersportdorp Langweer in de buurt.
Begane grond:
Via de achterzijde kom je binnen in de hal met toegang tot het toilet (vernieuwd in 2022) en de meterkast (uitgebreid naar 6 groepen).
De lichte woonkamer heeft een vrij uitzicht aan de voorzijde en een open keuken voorzien van een 4-pits gaskookplaat, afzuigkap, heteluchtoven en vaste kast. Op de begane grond ligt een laminaatvloer en is er een ruime kelder aanwezig, ideaal voor extra bergruimte.
Aan de voorzijde zijn kunststof kozijnen met HR+++ glas geplaatst, wat zorgt voor betere isolatie en minder onderhoud.
Eerste verdieping
De bovenverdieping is in 2020-2021 grondig gerenoveerd. Daarbij zijn onder andere het dak geïsoleerd, de elektra vernieuwd en nieuwe dakramen en een kunststof kozijn geplaatst.
De badkamer (2020) is modern uitgevoerd met een inloopdouche, wastafelmeubel en designradiator. Verder zijn er twee slaapkamers, een overloop met vaste kast en de cv-installatie (2019).
Buitenruimte:
De zonnige tuin op het zuidoosten biedt een prettige buitenruimte om te genieten van het weer. Dankzij de overkapping is er ook een fijne plek in de schaduw. De tuin is overzichtelijk ingedeeld en biedt ruimte voor een terras en wat groen.
Kenmerken samengevat:
- Vrijstaande woning met vrij uitzicht aan de voorzijde
- 5 zonnepanelen
- Zonnige tuin op het zuidoosten met overkapping
- Kunststof kozijnen met HR+++ glas aan de voorzijde
- Badkamer (2020) en toilet (2022)
- Bovenverdieping gerenoveerd in 2020-2021
- Gelegen aan doorgaande weg, op fietsafstand van Joure

Anniek Siebring NVM Makelaar bestaande bouw
Plan bezichtiging
voor: Hollandiastraat 16
Stel een vraag
Bel mij terug
















































































