Wergea H.J. Kooistrawei 1
Omschrijving
vraagprijs
€ 291.000 k.k.
Kenmerken
Overdracht
| Status | verkocht |
|---|---|
| Prijs | € 291.000 k.k. |
Bouw
| Bouwjaar | 1981 |
|---|---|
| Bouwvorm | bestaande bouw |
| Type Object | Woonhuis |
| Hoofdfunctie | Woonruimte |
Indeling
| Woonoppervlakte | 101 m² |
|---|---|
| Perceeloppervlakte | 265 m² |
| Woning Inhoud | 431 m³ |
| Kamers | 4 (3 slaapkamers) |
Energie
| Energielabel | C |
|---|
Interesse?
In het watersport dorp Wergea staat deze nette hoekwoning te koop. De woning beschikt over drie fijne slaapkamers en een lichte woon-/eetkamer waar je eenvoudig je eigen draai aan kunt geven. Dankzij de ligging op de hoek profiteer je van extra ruimte en privacy, zowel binnen als buiten. De tuin is verzorgd, waardoor je weinig onderhoud hebt en volop kunt genieten van het buitenleven. Met een paar persoonlijke aanpassingen maak je van dit huis al snel een gezellig en comfortabel thuis.
Indeling:
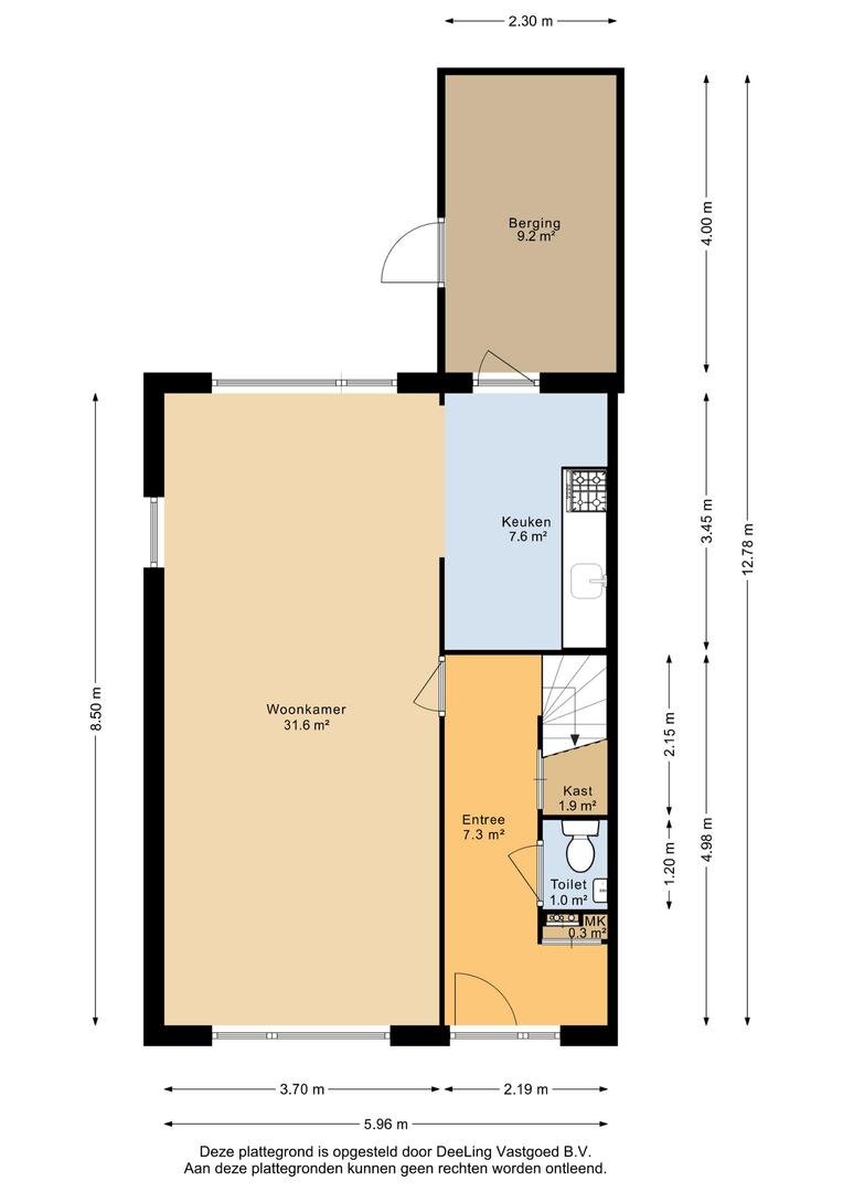
Begane grond:
Stap de woning binnen via de hal, waar je direct de trap naar boven en het toilet aantreft. De woonkamer biedt volop mogelijkheden om naar eigen wens in te richten en er een fijne leefruimte van te maken. Aansluitend bevindt zich de keuken, uitgerust met een eenvoudig keukenblok. Vanuit de keuken is er toegang tot de praktische berging, ideaal voor extra opslag en het plaatsen van witgoedapparatuur.
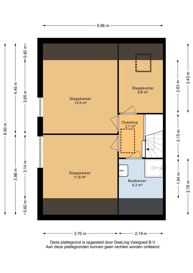
Eerste verdieping:
Op de eerste verdieping bevinden zich drie slaapkamers, elk met een eigen formaat en indelingsmogelijkheden. Alle kamers bieden voldoende ruimte voor slapen, werken of hobby’s. Daarnaast vind je op deze verdieping de badkamer, voorzien van een douche en een wastafel.
Tweede verdieping:
Bereikbaar met de vlizotrap. Ideaal voor het opbergen van kerst/vakantie spullen.
Goed om te weten:
- Woonoppervlakte: 101 m²;
- Perceeloppervlakte: 265 m²;
- Energielabel: C;
- Ouderdomsclausule / uitsluitingsclausule: de bouwkwaliteit ligt lager dan bij nieuwe woningen en is voor risico van koper - de eisen die aan de fundering, constructie en overige bouwkwaliteit gesteld mogen worden liggen aanzienlijk lager dan bij nieuwe woningen en zijn voor rekening en risico van koper.
- Elkien voorwaarden zijn van toepassing;
Ben jij enthousiast over deze woning? Maak dan snel een afspraak voor een bezichtiging!
HUUR JE OP DIT MOMENT EEN WONING VAN ELKIEN? DAN HEB JE VOORRANG OM IN TE SCHRIJVEN VOOR DEZE WONING EN TE KOPEN VOOR DE VRAAGPRIJS (zie voorwaarden Elkien in de tekst hieronder**).
Wordt de woning niet verkocht aan een huurder, dan wordt deze gegund aan de hoogste bieder met de koopsom als minimale inschrijfprijs.
Voorwaarden Elkien:
* De woning wordt verkocht in de huidige staat;
* Antispeculatiebeding: de woning mag niet binnen drie jaar worden door verkocht;
* Verbod van verhuur uitgezonderd verhuur aan eerste graad bloedverwanten: de woning mag drie jaar niet worden verhuurd.
* Ouderdomsclausule / uitsluitingsclausule: de bouwkwaliteit ligt lager dan bij nieuwe woningen en is het risico van koper;
* Voorbehoud financiering: maximaal 6 weken na mondeling akkoord koper/verkoper;
* Sleuteloverdracht: maximaal 8 weken na mondeling akkoord koper/verkoper;
* Indien de woning later passeert dan 8 weken, betaalt koper € 20,- boete per dag aan verkoper;
* Koper dient een natuurlijk persoon te zijn;
* De leveringsakte wordt betaald door Elkien (huisnotaris Breuker Netwerk Notarissen te Drachten);
Indeling:
Begane grond:
Stap de woning binnen via de hal, waar je direct de trap naar boven en het toilet aantreft. De woonkamer biedt volop mogelijkheden om naar eigen wens in te richten en er een fijne leefruimte van te maken. Aansluitend bevindt zich de keuken, uitgerust met een eenvoudig keukenblok. Vanuit de keuken is er toegang tot de praktische berging, ideaal voor extra opslag en het plaatsen van witgoedapparatuur.
Eerste verdieping:
Op de eerste verdieping bevinden zich drie slaapkamers, elk met een eigen formaat en indelingsmogelijkheden. Alle kamers bieden voldoende ruimte voor slapen, werken of hobby’s. Daarnaast vind je op deze verdieping de badkamer, voorzien van een douche en een wastafel.
Tweede verdieping:
Bereikbaar met de vlizotrap. Ideaal voor het opbergen van kerst/vakantie spullen.
Goed om te weten:
- Woonoppervlakte: 101 m²;
- Perceeloppervlakte: 265 m²;
- Energielabel: C;
- Ouderdomsclausule / uitsluitingsclausule: de bouwkwaliteit ligt lager dan bij nieuwe woningen en is voor risico van koper - de eisen die aan de fundering, constructie en overige bouwkwaliteit gesteld mogen worden liggen aanzienlijk lager dan bij nieuwe woningen en zijn voor rekening en risico van koper.
- Elkien voorwaarden zijn van toepassing;
Ben jij enthousiast over deze woning? Maak dan snel een afspraak voor een bezichtiging!
HUUR JE OP DIT MOMENT EEN WONING VAN ELKIEN? DAN HEB JE VOORRANG OM IN TE SCHRIJVEN VOOR DEZE WONING EN TE KOPEN VOOR DE VRAAGPRIJS (zie voorwaarden Elkien in de tekst hieronder**).
Wordt de woning niet verkocht aan een huurder, dan wordt deze gegund aan de hoogste bieder met de koopsom als minimale inschrijfprijs.
Voorwaarden Elkien:
* De woning wordt verkocht in de huidige staat;
* Antispeculatiebeding: de woning mag niet binnen drie jaar worden door verkocht;
* Verbod van verhuur uitgezonderd verhuur aan eerste graad bloedverwanten: de woning mag drie jaar niet worden verhuurd.
* Ouderdomsclausule / uitsluitingsclausule: de bouwkwaliteit ligt lager dan bij nieuwe woningen en is het risico van koper;
* Voorbehoud financiering: maximaal 6 weken na mondeling akkoord koper/verkoper;
* Sleuteloverdracht: maximaal 8 weken na mondeling akkoord koper/verkoper;
* Indien de woning later passeert dan 8 weken, betaalt koper € 20,- boete per dag aan verkoper;
* Koper dient een natuurlijk persoon te zijn;
* De leveringsakte wordt betaald door Elkien (huisnotaris Breuker Netwerk Notarissen te Drachten);

Anniek Siebring NVM Makelaar bestaande bouw
Stel een vraag
Bel mij terug
















































































