Mantgum His van Botnialeane 10
Omschrijving
vraagprijs
€ 211.000 k.k.
Kenmerken
Overdracht
| Status | verkocht |
|---|---|
| Prijs | € 211.000 k.k. |
Bouw
| Bouwjaar | 1957 |
|---|---|
| Bouwvorm | bestaande bouw |
| Type Object | Woonhuis |
| Hoofdfunctie | Woonruimte |
Indeling
| Woonoppervlakte | 78 m² |
|---|---|
| Perceeloppervlakte | 220 m² |
| Woning Inhoud | 300 m³ |
| Kamers | 6 (3 slaapkamers) |
Energie
| Energielabel | E |
|---|
Interesse?
Op een rustige locatie in het gezellige dorp Mantgum staat deze twee-onder-een-kapwoning met eigen oprit te koop. De woning is per direct beschikbaar en biedt jou de kans om er snel je thuis van te maken.
Hoewel de woning momenteel eenvoudig is uitgevoerd, vormt dit juist een uitgelezen kans om alles geheel naar eigen wens in te richten. De basis is goed: een ruime indeling, een fijne lichtinval en een royale kavel met eigen parkeergelegenheid. Of je nu op zoek bent naar je eerste woning of een nieuw project om helemaal eigen te maken - hier ligt de basis klaar.
Indeling:
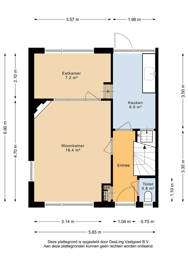
Bij binnenkomst tref je de entree met trapopgang en een toilet. De lichte woonkamer biedt voldoende ruimte voor een zithoek en een eettafel. De aangrenzende keuken is voorzien van een eenvoudig keukenblok en geeft toegang tot een aangebouwde stenen berging, handig voor extra opslag of als klusruimte.
Op de eerste verdieping bevinden zich drie slaapkamers en een eenvoudige badkamer met een wastafel en douche. Tot slot is er nog een praktische bergvliering, bereikbaar via een vlizotrap, ideaal voor het opbergen van seizoensspullen.
Goed om te weten:
- Woonoppervlakte ca. 78 m²
- Perceelgrootte 220 m²
- Inhoud ca. 300 m³
- Energielabel E
- Bouwjaar ca. 1957
- Grotendeels in het kunststof
- Elkien voorwaarden zijn van toepassing
Mantgum, precies gelegen tussen Leeuwarden en Sneek, is bij veel mensen een geliefd dorp door onder meer haar gunstige ligging direct aan het spoor en het eigen treinstation. Daardoor sta je met 10 minuten in hartje Leeuwarden en in Sneek. Daarnaast beschikt Mantgum over onder andere een Poiesz supermarkt, een bakker, een basisschool en (sport)verenigingen.
Ben jij enthousiast over deze woning? Maak dan snel een afspraak voor een bezichtiging!
Alle bezichtigingen (ook niet-huurders) dienen tijdens de bezichtigingsmiddag op 23 mei tussen 10:00 uur en 12:00 uur plaats te vinden. Voor een afspraak tijdens de bezichtigingsmiddag kan je bellen met ons kantoor in Heerenveen. We verwelkomen je graag! De sluiting van de inschrijving eindigt op 27 mei om 12:00 uur.
HUUR JE OP DIT MOMENT EEN WONING VAN ELKIEN? DAN HEB JE VOORRANG OM IN TE SCHRIJVEN VOOR DEZE WONING EN TE KOPEN VOOR DE VRAAGPRIJS (zie voorwaarden Elkien in de tekst hieronder**).
Wordt de woning niet verkocht aan een huurder, dan wordt deze gegund aan de hoogste bieder met de koopsom als minimale inschrijfprijs. Inschrijving voor huurders alleen geldig met volledig ingevuld inschrijfformulier incl. documenten
** Jij huurt op dit moment een woning van Elkien (ingeschreven staan als woningzoekende telt niet);
** Indien meerdere huurders zich hebben ingeschreven, wordt de woning toegewezen op basis van loting;
** Indien jij huurder bent en met een medehuurder wilt kopen, dient deze tenminste 2 jaar ingeschreven te staan op hetzelfde huuradres (medehuurderschap) of van rechtswege door huwelijk/geregistreerd partnerschap of jullie huren ieder een woning van Elkien en willen deze woning samen kopen.
Voorwaarden Elkien:
* De woning wordt verkocht in de huidige staat;
* Antispeculatiebeding: de woning mag niet binnen drie jaar worden door verkocht;
* Verbod van verhuur: de woning mag drie jaar niet worden verhuurd. Uitzondering eerste graad bloedverwanten;
* Ouderdomsclausule: de bouwkwaliteit ligt lager dan bij nieuwe woningen;
* Asbest: de woning kan asbest bevatten, koper aanvaardt dit risico;
* Voorbehoud financiering: maximaal 6 weken na mondeling akkoord koper/verkoper;
* Sleuteloverdracht: maximaal 8 weken na mondeling akkoord koper/verkoper;
* Indien de woning later passeert dan 8 weken, betaalt koper € 20,- boete per dag aan verkoper;
* Koper dient een natuurlijk persoon te zijn;
* De leveringsakte wordt betaald door Elkien (huisnotaris Breuker Vellinga Wiersma Notarissen te Drachten).
Hoewel de woning momenteel eenvoudig is uitgevoerd, vormt dit juist een uitgelezen kans om alles geheel naar eigen wens in te richten. De basis is goed: een ruime indeling, een fijne lichtinval en een royale kavel met eigen parkeergelegenheid. Of je nu op zoek bent naar je eerste woning of een nieuw project om helemaal eigen te maken - hier ligt de basis klaar.
Indeling:
Bij binnenkomst tref je de entree met trapopgang en een toilet. De lichte woonkamer biedt voldoende ruimte voor een zithoek en een eettafel. De aangrenzende keuken is voorzien van een eenvoudig keukenblok en geeft toegang tot een aangebouwde stenen berging, handig voor extra opslag of als klusruimte.
Op de eerste verdieping bevinden zich drie slaapkamers en een eenvoudige badkamer met een wastafel en douche. Tot slot is er nog een praktische bergvliering, bereikbaar via een vlizotrap, ideaal voor het opbergen van seizoensspullen.
Goed om te weten:
- Woonoppervlakte ca. 78 m²
- Perceelgrootte 220 m²
- Inhoud ca. 300 m³
- Energielabel E
- Bouwjaar ca. 1957
- Grotendeels in het kunststof
- Elkien voorwaarden zijn van toepassing
Mantgum, precies gelegen tussen Leeuwarden en Sneek, is bij veel mensen een geliefd dorp door onder meer haar gunstige ligging direct aan het spoor en het eigen treinstation. Daardoor sta je met 10 minuten in hartje Leeuwarden en in Sneek. Daarnaast beschikt Mantgum over onder andere een Poiesz supermarkt, een bakker, een basisschool en (sport)verenigingen.
Ben jij enthousiast over deze woning? Maak dan snel een afspraak voor een bezichtiging!
Alle bezichtigingen (ook niet-huurders) dienen tijdens de bezichtigingsmiddag op 23 mei tussen 10:00 uur en 12:00 uur plaats te vinden. Voor een afspraak tijdens de bezichtigingsmiddag kan je bellen met ons kantoor in Heerenveen. We verwelkomen je graag! De sluiting van de inschrijving eindigt op 27 mei om 12:00 uur.
HUUR JE OP DIT MOMENT EEN WONING VAN ELKIEN? DAN HEB JE VOORRANG OM IN TE SCHRIJVEN VOOR DEZE WONING EN TE KOPEN VOOR DE VRAAGPRIJS (zie voorwaarden Elkien in de tekst hieronder**).
Wordt de woning niet verkocht aan een huurder, dan wordt deze gegund aan de hoogste bieder met de koopsom als minimale inschrijfprijs. Inschrijving voor huurders alleen geldig met volledig ingevuld inschrijfformulier incl. documenten
** Jij huurt op dit moment een woning van Elkien (ingeschreven staan als woningzoekende telt niet);
** Indien meerdere huurders zich hebben ingeschreven, wordt de woning toegewezen op basis van loting;
** Indien jij huurder bent en met een medehuurder wilt kopen, dient deze tenminste 2 jaar ingeschreven te staan op hetzelfde huuradres (medehuurderschap) of van rechtswege door huwelijk/geregistreerd partnerschap of jullie huren ieder een woning van Elkien en willen deze woning samen kopen.
Voorwaarden Elkien:
* De woning wordt verkocht in de huidige staat;
* Antispeculatiebeding: de woning mag niet binnen drie jaar worden door verkocht;
* Verbod van verhuur: de woning mag drie jaar niet worden verhuurd. Uitzondering eerste graad bloedverwanten;
* Ouderdomsclausule: de bouwkwaliteit ligt lager dan bij nieuwe woningen;
* Asbest: de woning kan asbest bevatten, koper aanvaardt dit risico;
* Voorbehoud financiering: maximaal 6 weken na mondeling akkoord koper/verkoper;
* Sleuteloverdracht: maximaal 8 weken na mondeling akkoord koper/verkoper;
* Indien de woning later passeert dan 8 weken, betaalt koper € 20,- boete per dag aan verkoper;
* Koper dient een natuurlijk persoon te zijn;
* De leveringsakte wordt betaald door Elkien (huisnotaris Breuker Vellinga Wiersma Notarissen te Drachten).

Anniek Siebring NVM Makelaar bestaande bouw
Stel een vraag
Bel mij terug











































































