Leeuwarden Groningerstraatweg 361 b 3
Omschrijving
vraagprijs
€ 269.500 k.k.
Kenmerken
Overdracht
| Status | beschikbaar |
|---|---|
| Prijs | € 269.500 k.k. |
Bouw
| Bouwjaar | 2023 |
|---|---|
| Bouwvorm | bestaande bouw |
| Type Object | Appartement |
| Hoofdfunctie | Woonruimte |
Indeling
| Woonoppervlakte | 51 m² |
|---|---|
| Woning Inhoud | 165 m³ |
| Kamers | 3 (2 slaapkamers) |
Energie
| Energielabel | A+++ |
|---|
Interesse?
Modern en gasloos wonen aan het water en vrij uitzicht!
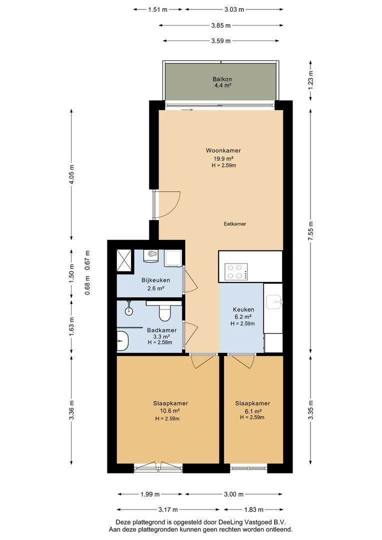
Met een woonoppervlakte van circa 51 m², een balkon op het zuidoosten en energielabel A+++ woon je hier duurzaam, onderhoudsarm en helemaal van deze tijd. Dit prachtig afgewerkte appartement bevindt zich op de eerste verdieping van een verzorgd en kleinschalig complex opgeleverd in 2023. Volledig geïsoleerd, gasloos en voorzien van comfortabele vloerverwarming in het gehele appartement.
De ligging aan de Groningerstraatweg, aan de rand van Blitsaerd, geeft je ruim uitzicht. Je woont hier in een groene, waterrijke omgeving met vrij zicht over de Groningerstraatweg aan de voorzijde en waterpartijen aan de achterzijde. Tegelijkertijd bereik je de binnenstad van Leeuwarden binnen circa tien minuten fietsen en liggen uitvalswegen richting onder meer Groningen en Drachten op korte afstand. Voorzieningen, openbaar vervoer en recreatiemogelijkheden bevinden zich in de directe omgeving.
Indeling:
Via de beveiligde entree met belpaneel en het portiek bereik je het appartement op de eerste verdieping.
Binnenkomst in het appartement in de open leefruimte. Aan de voorzijde bevindt zich de lichte woonkamer met aluminium schuifpui en inpandig balkon gelegen op het zuidoosten. Hier geniet je van de zon en het vrije uitzicht. Door de open indeling valt het licht royaal binnen in het appartement langs de eettafel de keuken in. De keuken in L-vorm beschikt over moderne inbouwapparatuur. Aan de achterzijde bevinden zich twee slaapkamers. De ruime hoofdslaapkamer (circa 11 m²) beschikt over een Frans balkon en kijkt vrij uit over water en groen. De tweede slaapkamer (circa 6 m²) is compacter en uitstekend geschikt als thuiswerkplek of kinderkamer. Tegenover de keuken bevinden zich nog de technische ruimte met plaats voor het witgoed en de boiler en hiernaast bevindt zich de moderne badkamer met inloopdouche, wastafel en toilet.
De open woonkeuken vormt een mooi geheel met de living en is uitgevoerd in een moderne opstelling met hoogwaardige Siemens inbouwapparatuur, waaronder een inductiekookplaat met geïntegreerde afzuiging, combi oven/magnetron, vaatwasser en koelkast. Strakke wand- en vloerafwerking, inbouwspots en extra hoge deuren versterken het moderne en instapklare karakter van het appartement.
Kenmerken
- Bouwjaar: 2023
- Gebruiksoppervlakte wonen: 51 m²
- Balkon van 4,4 m² op het zuidoosten
- Energielabel A+++
- Gasloos en volledig geïsoleerd, HR++ beglazing
- Volledig voorzien van vloerverwarming
- Eigen installaties: elektrische boiler en een WTW-unit
- Collectieve installaties: warmtepomp en zonnepanelen
- Aanvaarding: in overleg
Het appartement maakt deel uit van een actieve en gezonde VvE.
Maandelijkse bijdrage: € 124,20
Voorschot energielasten: € 50,00 per maand
Een strak afgewerkt, energiezuinig en comfortabel appartement op een mooie locatie met vrij uitzicht, instapklaar en helemaal klaar voor de toekomst. Een leuke plek voor jou? Neem dan snel contact op met ons kantoor en kom langs voor een bezichtiging.
Met een woonoppervlakte van circa 51 m², een balkon op het zuidoosten en energielabel A+++ woon je hier duurzaam, onderhoudsarm en helemaal van deze tijd. Dit prachtig afgewerkte appartement bevindt zich op de eerste verdieping van een verzorgd en kleinschalig complex opgeleverd in 2023. Volledig geïsoleerd, gasloos en voorzien van comfortabele vloerverwarming in het gehele appartement.
De ligging aan de Groningerstraatweg, aan de rand van Blitsaerd, geeft je ruim uitzicht. Je woont hier in een groene, waterrijke omgeving met vrij zicht over de Groningerstraatweg aan de voorzijde en waterpartijen aan de achterzijde. Tegelijkertijd bereik je de binnenstad van Leeuwarden binnen circa tien minuten fietsen en liggen uitvalswegen richting onder meer Groningen en Drachten op korte afstand. Voorzieningen, openbaar vervoer en recreatiemogelijkheden bevinden zich in de directe omgeving.
Indeling:
Via de beveiligde entree met belpaneel en het portiek bereik je het appartement op de eerste verdieping.
Binnenkomst in het appartement in de open leefruimte. Aan de voorzijde bevindt zich de lichte woonkamer met aluminium schuifpui en inpandig balkon gelegen op het zuidoosten. Hier geniet je van de zon en het vrije uitzicht. Door de open indeling valt het licht royaal binnen in het appartement langs de eettafel de keuken in. De keuken in L-vorm beschikt over moderne inbouwapparatuur. Aan de achterzijde bevinden zich twee slaapkamers. De ruime hoofdslaapkamer (circa 11 m²) beschikt over een Frans balkon en kijkt vrij uit over water en groen. De tweede slaapkamer (circa 6 m²) is compacter en uitstekend geschikt als thuiswerkplek of kinderkamer. Tegenover de keuken bevinden zich nog de technische ruimte met plaats voor het witgoed en de boiler en hiernaast bevindt zich de moderne badkamer met inloopdouche, wastafel en toilet.
De open woonkeuken vormt een mooi geheel met de living en is uitgevoerd in een moderne opstelling met hoogwaardige Siemens inbouwapparatuur, waaronder een inductiekookplaat met geïntegreerde afzuiging, combi oven/magnetron, vaatwasser en koelkast. Strakke wand- en vloerafwerking, inbouwspots en extra hoge deuren versterken het moderne en instapklare karakter van het appartement.
Kenmerken
- Bouwjaar: 2023
- Gebruiksoppervlakte wonen: 51 m²
- Balkon van 4,4 m² op het zuidoosten
- Energielabel A+++
- Gasloos en volledig geïsoleerd, HR++ beglazing
- Volledig voorzien van vloerverwarming
- Eigen installaties: elektrische boiler en een WTW-unit
- Collectieve installaties: warmtepomp en zonnepanelen
- Aanvaarding: in overleg
Het appartement maakt deel uit van een actieve en gezonde VvE.
Maandelijkse bijdrage: € 124,20
Voorschot energielasten: € 50,00 per maand
Een strak afgewerkt, energiezuinig en comfortabel appartement op een mooie locatie met vrij uitzicht, instapklaar en helemaal klaar voor de toekomst. Een leuke plek voor jou? Neem dan snel contact op met ons kantoor en kom langs voor een bezichtiging.

Peter Meijer NVM Register Makelaar - Taxateur
Plan bezichtiging
voor: Groningerstraatweg 361 b 3
Stel een vraag
Bel mij terug
















































































