Drachten Fluessen 76
Omschrijving
vraagprijs
€ 549.000 k.k.
Kenmerken
Overdracht
| Status | beschikbaar |
|---|---|
| Prijs | € 549.000 k.k. |
Bouw
| Bouwjaar | 1978 |
|---|---|
| Bouwvorm | bestaande bouw |
| Type Object | Woonhuis |
| Hoofdfunctie | Woonruimte |
Indeling
| Woonoppervlakte | 174 m² |
|---|---|
| Perceeloppervlakte | 470 m² |
| Woning Inhoud | 740 m³ |
| Kamers | 5 (4 slaapkamers) |
Energie
| Energielabel | C |
|---|
Interesse?
Vrijstaand wonen op een groene en rustige hoeklocatie.
Aan een rustige straat in de geliefde woonwijk De Drait staat deze vrijstaande woning op een perceel van 470 m². Een huis met karakter, ruimte en volop mogelijkheden om geheel naar eigen smaak te moderniseren en in te richten.
In de directe omgeving zijn meerdere basisscholen aanwezig. Daarnaast zijn diverse zorgvoorzieningen zoals huisartsen, apotheken en tandartsen goed te bereiken. Voor de dagelijkse boodschappen en winkels zijn er volop mogelijkheden in de buurt. Op korte afstand bevinden zich vele winkelvoorzieningen, waardoor je nooit ver de deur uit hoeft voor je dagelijkse benodigdheden. Ook de bereikbaarheid is goed. Via de nabijgelegen uitvalswegen ben je snel onderweg richting de A7, met verbindingen naar onder andere Groningen en Heerenveen. Daarnaast zijn ook andere belangrijke wegen in de regio eenvoudig te bereiken.
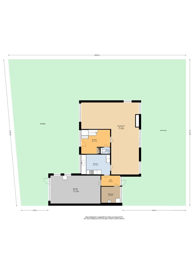
De begane grond is ruim en praktisch ingedeeld. Via de entree met meterkast, vernieuwde toiletruimte en trapopgang bereikt u de L-vormige woonkamer van circa 53 m². Dankzij de grote raampartijen is dit een heerlijk lichte leefruimte met een mooi uitzicht op het groen rondom. De haard zorgt voor extra sfeer en maakt het geheel compleet. De woonkamer staat in verbinding met de woonkeuken, die praktisch is ingericht en beschikt over voldoende werk- en bergruimte. Vanuit de keuken is er toegang tot de hal met doorgang naar de tuin en de aangebouwde berging. Daarnaast beschikt de woning over een aangebouwde garage, ideaal voor het stallen van een auto, extra opslag of hobbyruimte.
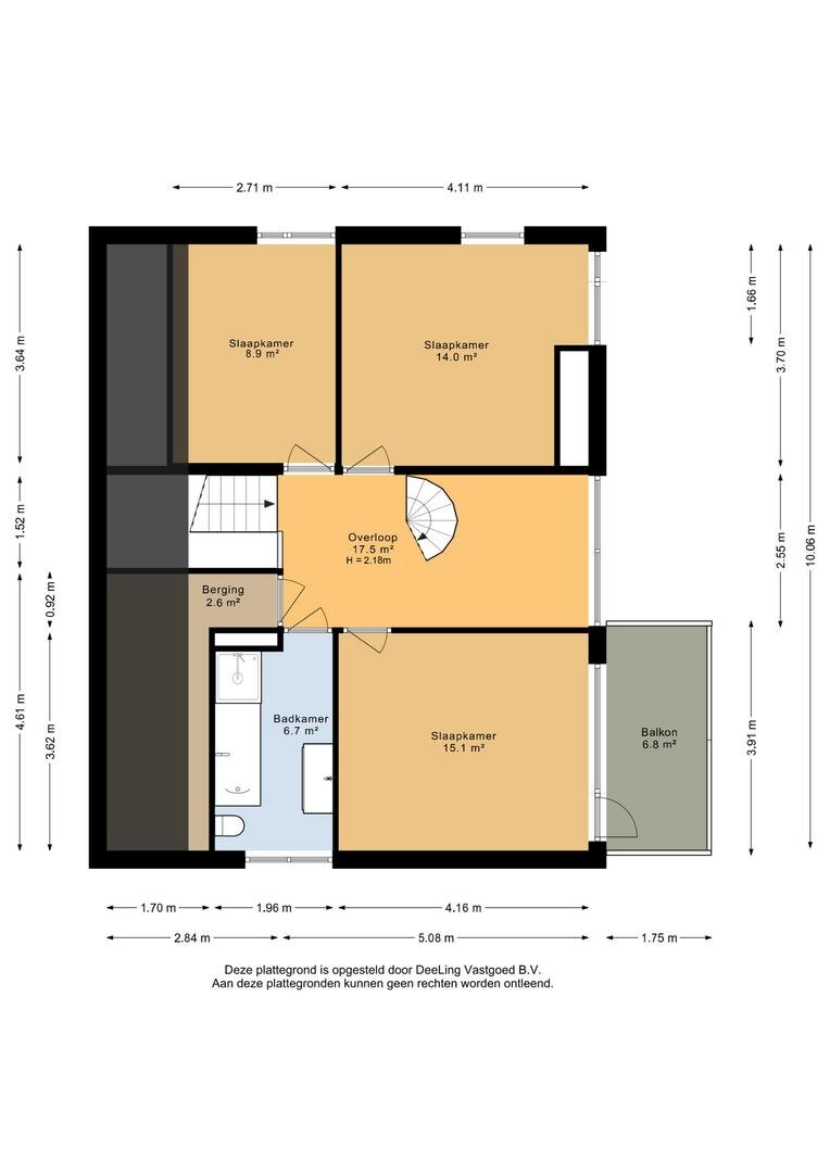
De eerste verdieping beschikt over drie slaapkamers, waarvan één met toegang tot een balkon. De vernieuwde badkamer is compleet uitgevoerd met een ligbad, douche, toilet en wastafelmeubel. De overloop biedt daarnaast mogelijkheden voor bijvoorbeeld een werkplek of hobbyruimte.
De tweede verdieping biedt een extra kamer en praktische bergruimte. Daarnaast is er de mogelijkheid om hier een vijfde slaapkamer te realiseren.
Buitenleven
Heerlijk genieten in je eigen beschutte tuin met volop privacy en zonlicht. Of je nu de dag rustig begint met een kop koffie of ’s avonds de buitenhaard aansteekt: hier zit je altijd goed. Met het elektrische zonnescherm creëer je moeiteloos een fijne plek in de schaduw, terwijl de verschillende terrasmogelijkheden ervoor zorgen dat je op elk moment van de dag een ideale zitplek vindt.
Bijzonderheden:
- Veel ruimte en privacy;
- Veel daglicht;
- Perceel van 470 m²;
- Bouwjaar 1979;
- Geïsoleerd en v.v. isolatieglas;
- Energielabel: C.
Aan een rustige straat in de geliefde woonwijk De Drait staat deze vrijstaande woning op een perceel van 470 m². Een huis met karakter, ruimte en volop mogelijkheden om geheel naar eigen smaak te moderniseren en in te richten.
In de directe omgeving zijn meerdere basisscholen aanwezig. Daarnaast zijn diverse zorgvoorzieningen zoals huisartsen, apotheken en tandartsen goed te bereiken. Voor de dagelijkse boodschappen en winkels zijn er volop mogelijkheden in de buurt. Op korte afstand bevinden zich vele winkelvoorzieningen, waardoor je nooit ver de deur uit hoeft voor je dagelijkse benodigdheden. Ook de bereikbaarheid is goed. Via de nabijgelegen uitvalswegen ben je snel onderweg richting de A7, met verbindingen naar onder andere Groningen en Heerenveen. Daarnaast zijn ook andere belangrijke wegen in de regio eenvoudig te bereiken.
De begane grond is ruim en praktisch ingedeeld. Via de entree met meterkast, vernieuwde toiletruimte en trapopgang bereikt u de L-vormige woonkamer van circa 53 m². Dankzij de grote raampartijen is dit een heerlijk lichte leefruimte met een mooi uitzicht op het groen rondom. De haard zorgt voor extra sfeer en maakt het geheel compleet. De woonkamer staat in verbinding met de woonkeuken, die praktisch is ingericht en beschikt over voldoende werk- en bergruimte. Vanuit de keuken is er toegang tot de hal met doorgang naar de tuin en de aangebouwde berging. Daarnaast beschikt de woning over een aangebouwde garage, ideaal voor het stallen van een auto, extra opslag of hobbyruimte.
De eerste verdieping beschikt over drie slaapkamers, waarvan één met toegang tot een balkon. De vernieuwde badkamer is compleet uitgevoerd met een ligbad, douche, toilet en wastafelmeubel. De overloop biedt daarnaast mogelijkheden voor bijvoorbeeld een werkplek of hobbyruimte.
De tweede verdieping biedt een extra kamer en praktische bergruimte. Daarnaast is er de mogelijkheid om hier een vijfde slaapkamer te realiseren.
Buitenleven
Heerlijk genieten in je eigen beschutte tuin met volop privacy en zonlicht. Of je nu de dag rustig begint met een kop koffie of ’s avonds de buitenhaard aansteekt: hier zit je altijd goed. Met het elektrische zonnescherm creëer je moeiteloos een fijne plek in de schaduw, terwijl de verschillende terrasmogelijkheden ervoor zorgen dat je op elk moment van de dag een ideale zitplek vindt.
Bijzonderheden:
- Veel ruimte en privacy;
- Veel daglicht;
- Perceel van 470 m²;
- Bouwjaar 1979;
- Geïsoleerd en v.v. isolatieglas;
- Energielabel: C.

Hielke Fonk NVM Register Makelaar - Taxateur
Plan bezichtiging
voor: Fluessen 76
Stel een vraag
Bel mij terug
























































































































































