Leeuwarden Emmakade 147
Omschrijving
vraagprijs
€ 515.000 k.k.
Kenmerken
Overdracht
| Status | onder bod |
|---|---|
| Prijs | € 515.000 k.k. |
Bouw
| Bouwjaar | 1918 |
|---|---|
| Bouwvorm | bestaande bouw |
| Type Object | Woonhuis |
| Hoofdfunctie | Woonruimte |
Indeling
| Woonoppervlakte | 192 m² |
|---|---|
| Perceeloppervlakte | 140 m² |
| Woning Inhoud | 704 m³ |
| Kamers | 6 (4 slaapkamers) |
Energie
| Energielabel | C |
|---|
Interesse?
Wonen op een prachtig gelegen plek aan de geliefde Emmakade, met vrij uitzicht over het water en de speeltuin voor de deur. Een locatie waar rust, ruimte en dagelijks gemak samenkomen.
Deze royale en volledig verbouwde woning ademt karakter en historie, maar biedt tegelijkertijd het luxe comfort van nu. Denk aan een moderne open leefruimte, vloerverwarming en 8 zonnepanelen. Met maar liefst 192 m² woonruimte verdeeld over twee verdiepingen, een zonnig balkon op het zuiden en goede lichtinval, is dit een plek die heel comfortabel aanvoelt. Een stijlvolle thuisbasis op een plek die elke dag weer inspireert.
Begane grond:
Bij binnenkomst in de hal met stalen glazen deuren treft u de trapopgang naar de eerste verdieping. Deze woonlaag is verrassend ruim en praktisch ingedeeld met drie slaapkamers en aan de achterzijde een berging met cv-ketel. De lichte hoekkamer leent zich uitstekend als tweede woonkamer, kantoor of praktijkruimte aan huis. Daarnaast bevindt zich op deze verdieping een moderne badkamer met inloopdouche, toilet en wastafelmeubel.
Eerste verdieping:
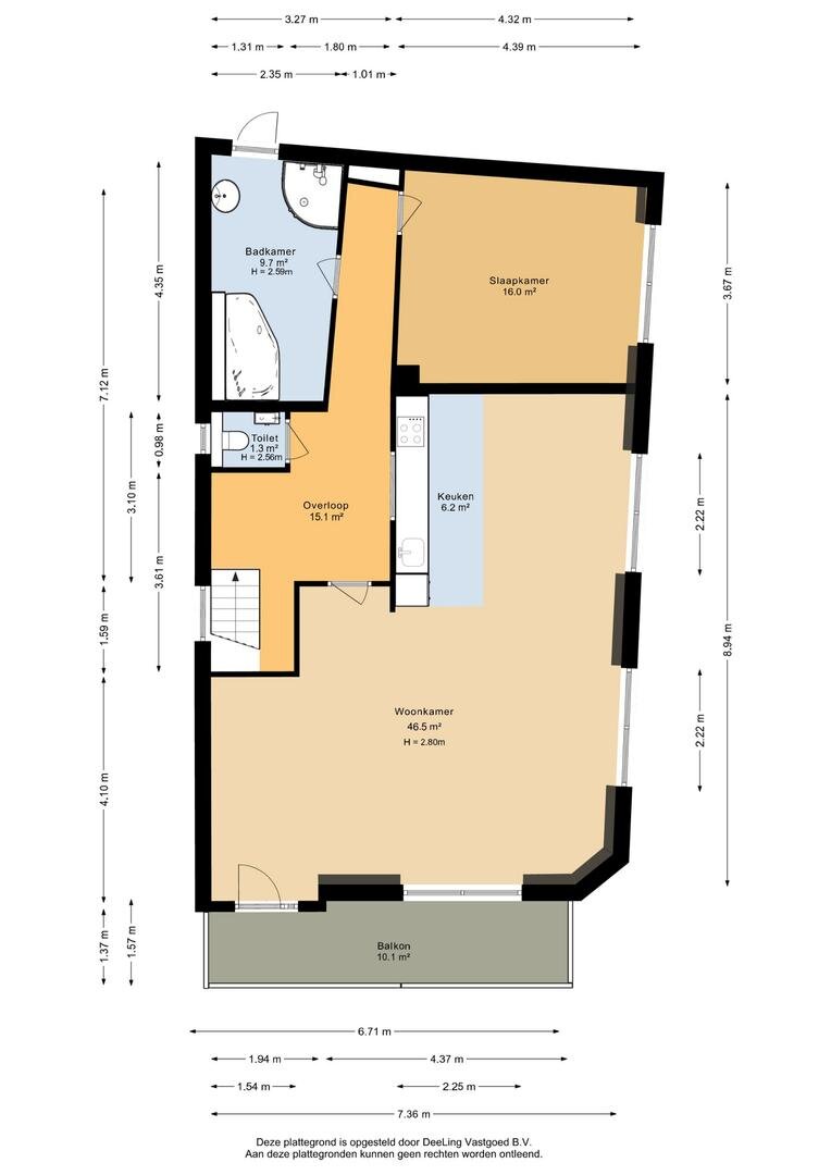
Via de overloop met apart toilet bereikt u de royale open leefruimte van maar liefst 47 m². De woonkamer voelt licht en ruim aan en heeft dankzij de charmante dakkapellen een penthouse-achtige sfeer, waarbij het zonlicht naar binnen valt en u een speels uitzicht over het water en het veldje heeft. De vloerverwarming en de open indeling zorgen voor optimaal comfort. Vanuit de woonkamer stapt u direct het balkon op het zuiden op, ideaal voor een ontspannen moment of een kop koffie in de zon. De donkere, moderne keuken vormt een stijlvol contrast en is compleet uitgerust met inductiekookplaat, Quooker, oven, combimagnetron, koelkast en vaatwasser. Dan de badkamer: een stijlvolle combinatie van comfort en industriële allure met de bakstenen in het zicht. De badkamer is uitgerust met ligbad, inloopdouche, wastafel en elektrische plafondverwarming. Tot slot beschikt deze verdieping nog over een prettige en ruime slaapkamer.
Kenmerken:
- Bouwjaar 1918, gemoderniseerd in 2020–2023
- Woonoppervlakte 192 m²
- Energielabel C
- Vloerverwarming
- 8 zonnepanelen
- Intergas cv-ketel (2023)
- Balkon op het zuiden
- Erfpacht € 13,- per jaar (kan nooit worden verhoogd)
- Instapklaar en direct beschikbaar
De wijk en omgeving
De woning ligt aan de karaktervolle Emmakade. Voor de deur vindt u een speeltuin, ideaal voor jonge gezinnen, en aan de overzijde van het Nieuwe Kanaal ligt een Albert Heijn. Ook andere voorzieningen zijn ruim aanwezig in de wijk en in de directe omgeving. Het levendige centrum van Leeuwarden en het station bereikt u gemakkelijk lopend of per fiets.
Enthousiast geworden van deze moderne en energiezuinige woning? Maak dan snel een afspraak voor een bezichtiging en ervaar zelf het wooncomfort dat deze woning u te bieden heeft!
Deze royale en volledig verbouwde woning ademt karakter en historie, maar biedt tegelijkertijd het luxe comfort van nu. Denk aan een moderne open leefruimte, vloerverwarming en 8 zonnepanelen. Met maar liefst 192 m² woonruimte verdeeld over twee verdiepingen, een zonnig balkon op het zuiden en goede lichtinval, is dit een plek die heel comfortabel aanvoelt. Een stijlvolle thuisbasis op een plek die elke dag weer inspireert.
Begane grond:
Bij binnenkomst in de hal met stalen glazen deuren treft u de trapopgang naar de eerste verdieping. Deze woonlaag is verrassend ruim en praktisch ingedeeld met drie slaapkamers en aan de achterzijde een berging met cv-ketel. De lichte hoekkamer leent zich uitstekend als tweede woonkamer, kantoor of praktijkruimte aan huis. Daarnaast bevindt zich op deze verdieping een moderne badkamer met inloopdouche, toilet en wastafelmeubel.
Eerste verdieping:
Via de overloop met apart toilet bereikt u de royale open leefruimte van maar liefst 47 m². De woonkamer voelt licht en ruim aan en heeft dankzij de charmante dakkapellen een penthouse-achtige sfeer, waarbij het zonlicht naar binnen valt en u een speels uitzicht over het water en het veldje heeft. De vloerverwarming en de open indeling zorgen voor optimaal comfort. Vanuit de woonkamer stapt u direct het balkon op het zuiden op, ideaal voor een ontspannen moment of een kop koffie in de zon. De donkere, moderne keuken vormt een stijlvol contrast en is compleet uitgerust met inductiekookplaat, Quooker, oven, combimagnetron, koelkast en vaatwasser. Dan de badkamer: een stijlvolle combinatie van comfort en industriële allure met de bakstenen in het zicht. De badkamer is uitgerust met ligbad, inloopdouche, wastafel en elektrische plafondverwarming. Tot slot beschikt deze verdieping nog over een prettige en ruime slaapkamer.
Kenmerken:
- Bouwjaar 1918, gemoderniseerd in 2020–2023
- Woonoppervlakte 192 m²
- Energielabel C
- Vloerverwarming
- 8 zonnepanelen
- Intergas cv-ketel (2023)
- Balkon op het zuiden
- Erfpacht € 13,- per jaar (kan nooit worden verhoogd)
- Instapklaar en direct beschikbaar
De wijk en omgeving
De woning ligt aan de karaktervolle Emmakade. Voor de deur vindt u een speeltuin, ideaal voor jonge gezinnen, en aan de overzijde van het Nieuwe Kanaal ligt een Albert Heijn. Ook andere voorzieningen zijn ruim aanwezig in de wijk en in de directe omgeving. Het levendige centrum van Leeuwarden en het station bereikt u gemakkelijk lopend of per fiets.
Enthousiast geworden van deze moderne en energiezuinige woning? Maak dan snel een afspraak voor een bezichtiging en ervaar zelf het wooncomfort dat deze woning u te bieden heeft!

Jan Ypeij NVM Makelaar bestaande bouw
Plan bezichtiging
voor: Emmakade 147
Stel een vraag
Bel mij terug










































































































