Stavoren Dwinger 12
Omschrijving
vraagprijs
€ 180.000 k.k.
Kenmerken
Overdracht
| Status | beschikbaar |
|---|---|
| Prijs | € 180.000 k.k. |
Bouw
| Bouwjaar | 1929 |
|---|---|
| Bouwvorm | bestaande bouw |
| Type Object | Woonhuis |
| Hoofdfunctie | Woonruimte |
Indeling
| Woonoppervlakte | 63 m² |
|---|---|
| Perceeloppervlakte | 210 m² |
| Woning Inhoud | 247 m³ |
| Kamers | 3 (1 slaapkamers) |
Energie
| Energielabel | G |
|---|
Interesse?
Dé kans voor de handige starter!
Ben jij een starter met twee rechterhanden en op zoek naar een woning waar je écht je eigen plek van kunt maken? Dan is deze halfvrijstaande woning precies wat je zoekt!
Deze woning biedt niet alleen een fijne basis om comfortabel te wonen, maar ook volop mogelijkheden om naar eigen smaak te moderniseren en af te werken. Met wat liefde en aandacht creëer je hier in no time jouw droomhuis. Beneden is de ruimte zeker aanwezig.
Indeling:
Begane grond:
Op de begane grond vind je de ruimte in deze woning. Met beneden ruimte voor een zithoek en eettafel. De keuken en het sanitair zijn klaar voor een opknapbeurt en naar eigen wens te moderniseren.
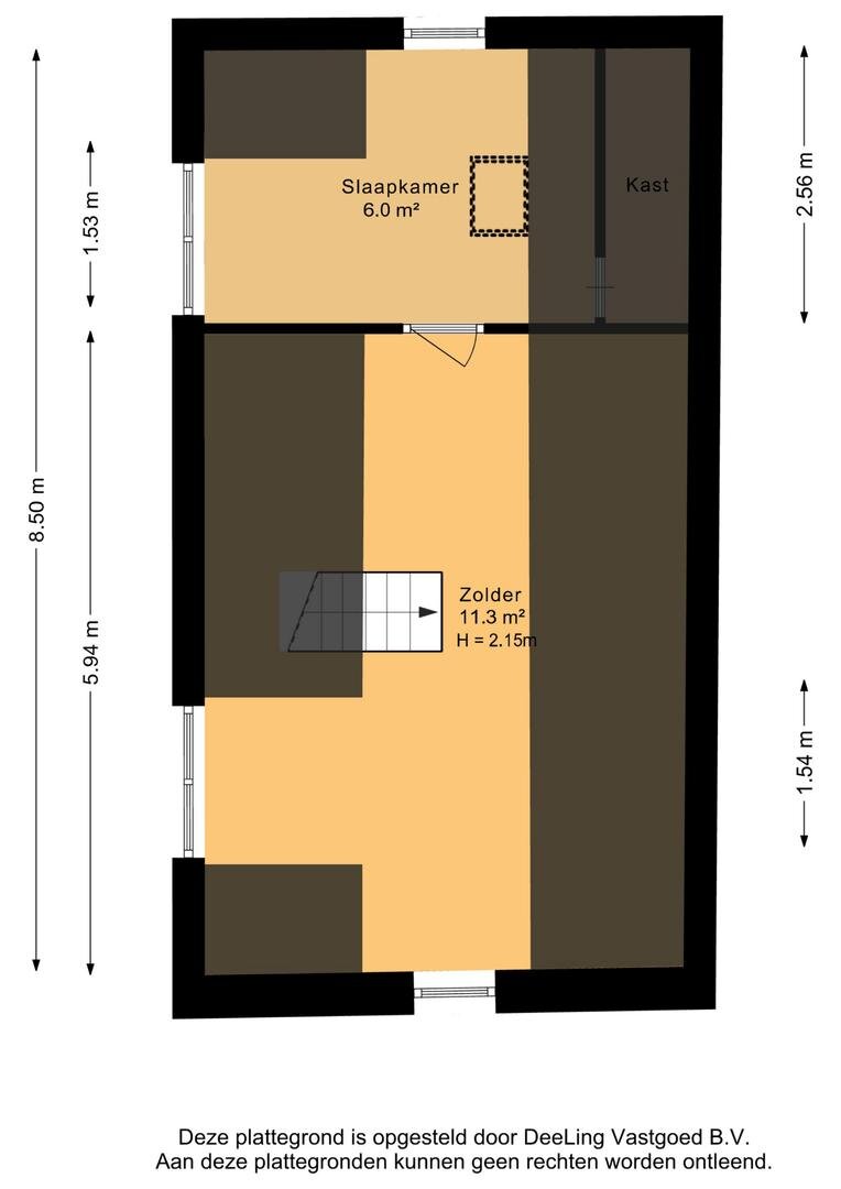
Eerste verdieping:
Op de eerste verdieping bevindt zich één slaapkamer en een ruim overloop. Hier is echter nog wel de mogelijk om een extra slaapkamer te realiseren.
Extra bijzonder is de royale schuur op het perceel. Ideaal voor de klusser, hobbyist of ondernemer aan huis! Of je nu droomt van een werkplaats, hobbyruimte, opslag of creatieve studio. Hier heb je alle ruimte om jouw plannen werkelijkheid te maken.
Goed om te weten:
- Woonoppervlakte ca. 63 m²
- Perceelgrootte 210 m²
- Eigen oprit aanwezig
- Ruime schuur met mogelijkheden
- Energielabel G
- Woning wordt verkocht met de "as is, where is" clausule *
*De woning wordt verkocht op basis van een zogenaamde “as is, where is”-clausule. Dit betekent dat koper het object aanvaardt in de huidige staat waarin het zich bevindt ten tijde van de koop, inclusief eventuele zichtbare en onzichtbare gebreken. Verkoper geeft geen garanties ten aanzien van de bouwkundige staat, installaties of het beoogde gebruik van de woning
Alle bezichtigingen dienen tijdens de bezichtiging middag op vrijdag 13 maart tussen 13:00 uur en 16:00 uur plaats te vinden. Voor een afspraak tijdens de bezichtiging middag kan je bellen met ons kantoor in Sneek. We verwelkomen je graag! De sluiting van de inschrijving eindigt op donderdag 19 maart om 12:00 uur.
Ben jij een starter met twee rechterhanden en op zoek naar een woning waar je écht je eigen plek van kunt maken? Dan is deze halfvrijstaande woning precies wat je zoekt!
Deze woning biedt niet alleen een fijne basis om comfortabel te wonen, maar ook volop mogelijkheden om naar eigen smaak te moderniseren en af te werken. Met wat liefde en aandacht creëer je hier in no time jouw droomhuis. Beneden is de ruimte zeker aanwezig.
Indeling:
Begane grond:
Op de begane grond vind je de ruimte in deze woning. Met beneden ruimte voor een zithoek en eettafel. De keuken en het sanitair zijn klaar voor een opknapbeurt en naar eigen wens te moderniseren.
Eerste verdieping:
Op de eerste verdieping bevindt zich één slaapkamer en een ruim overloop. Hier is echter nog wel de mogelijk om een extra slaapkamer te realiseren.
Extra bijzonder is de royale schuur op het perceel. Ideaal voor de klusser, hobbyist of ondernemer aan huis! Of je nu droomt van een werkplaats, hobbyruimte, opslag of creatieve studio. Hier heb je alle ruimte om jouw plannen werkelijkheid te maken.
Goed om te weten:
- Woonoppervlakte ca. 63 m²
- Perceelgrootte 210 m²
- Eigen oprit aanwezig
- Ruime schuur met mogelijkheden
- Energielabel G
- Woning wordt verkocht met de "as is, where is" clausule *
*De woning wordt verkocht op basis van een zogenaamde “as is, where is”-clausule. Dit betekent dat koper het object aanvaardt in de huidige staat waarin het zich bevindt ten tijde van de koop, inclusief eventuele zichtbare en onzichtbare gebreken. Verkoper geeft geen garanties ten aanzien van de bouwkundige staat, installaties of het beoogde gebruik van de woning
Alle bezichtigingen dienen tijdens de bezichtiging middag op vrijdag 13 maart tussen 13:00 uur en 16:00 uur plaats te vinden. Voor een afspraak tijdens de bezichtiging middag kan je bellen met ons kantoor in Sneek. We verwelkomen je graag! De sluiting van de inschrijving eindigt op donderdag 19 maart om 12:00 uur.
Plan bezichtiging
voor: Dwinger 12
Stel een vraag
Bel mij terug
































































































