Leeuwarden De Wetering 22
Omschrijving
vraagprijs
€ 529.000 k.k.
Kenmerken
Overdracht
| Status | verkocht onder voorbehoud |
|---|---|
| Prijs | € 529.000 k.k. |
Bouw
| Bouwjaar | 2001 |
|---|---|
| Bouwvorm | bestaande bouw |
| Type Object | Woonhuis |
| Hoofdfunctie | Woonruimte |
Indeling
| Woonoppervlakte | 157 m² |
|---|---|
| Perceeloppervlakte | 304 m² |
| Woning Inhoud | 597 m³ |
| Kamers | 6 (4 slaapkamers) |
Energie
| Energielabel | A |
|---|
Interesse?
Prachtig uitgebouwde en moderne woning in het gewilde Zuiderburen!
Wat een fijne plek! Deze strakke 2-onder-1-kapwoning heeft een prachtige aanbouw, een heerlijke diepe tuin, een moderne keuken en badkamer, is uitstekend geïsoleerd en er zijn vier ruime slaapkamers aanwezig. Met maar liefst 157m² woonoppervlakte vind je hier alle ruimte die je je wensen kan.
Indeling:
Je komt aanrijden bij de woning die ligt in een gezellige straat en je parkeert de auto op eigen oprit. Via de voordeur kom je binnen in de hal. Hier vind je de garderobe, meterkast en het eerste toilet. Als je doorloopt, kom je terecht in de ruime uitgebouwde woonkamer. De speelse indeling en moderne inrichting zorgen hier voor een bijzonder sfeervol geheel. De zitkamer geeft een knus gevoel en heeft een prachtig vrij uitzicht over de groene tuin. De open keuken is voorzien van alle gemakken en geeft zicht op de gezellige straat waarin de woning gelegen is. De moderne keuken is onder andere voorzien van een inductiekookplaat, Quooker, combi-oven, koelkast en vaatwasser. De keuken staat in directe verbinding met de living en het eetgedeelte aan de achterzijde van de woning. Hier stap je bovendien via de schuifpui zo de heerlijke achtertuin in. Het woongedeelte van de begane grond is voorzien van vloerverwarming en een strakke houten vloer. De bijkeuken is aan de achterzijde en staat in directe verbinding met de inpandige garage.
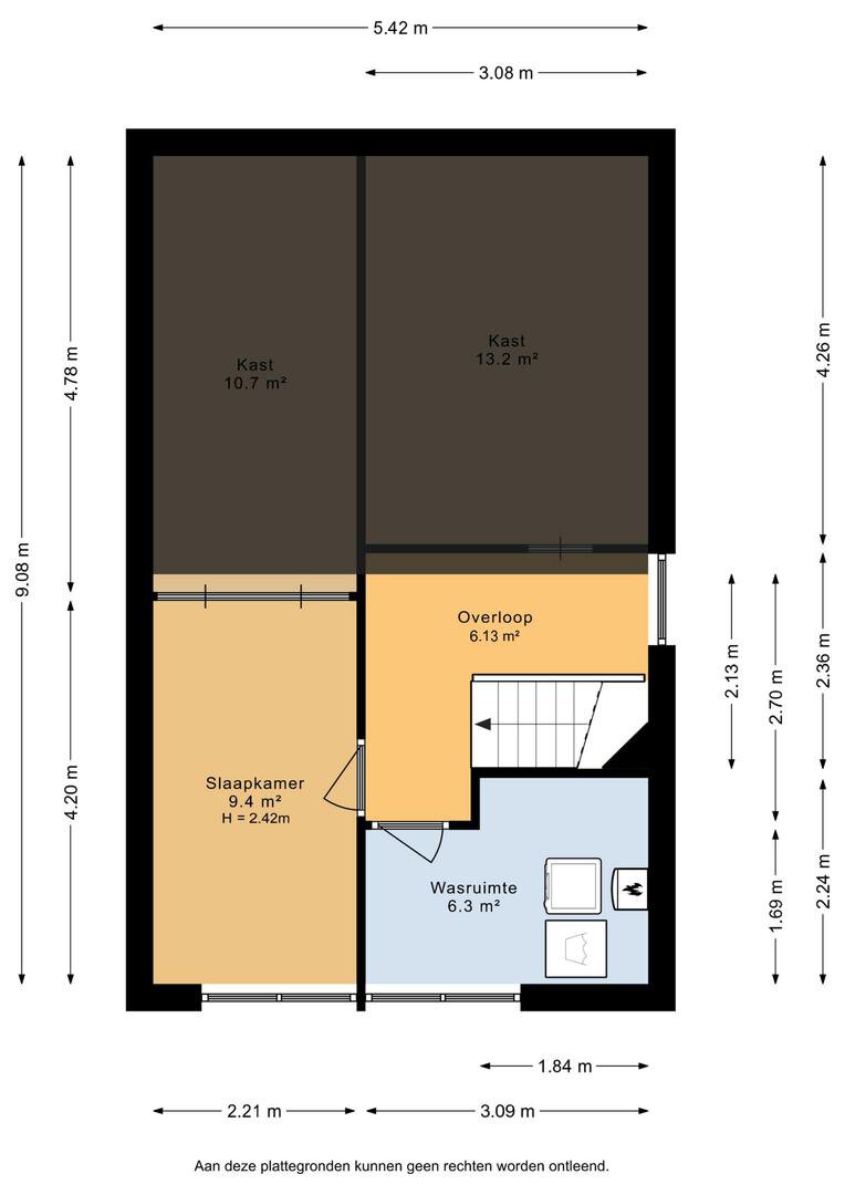
We gaan via de trap naar de overloop op de eerste verdieping. Hier is de strakke badkamer met inloopdouche, wastafelmeubel en het tweede toilet. Verder vind je op de eerste verdieping drie ruime slaapkamers waarvan twee aan de achterzijde en een aan de voorzijde van de woning. Deze voorste slaapkamer is voorzien van een balkon en in de master bedroom is een airco die met gemak de hele verdieping koel houdt.
Via de vaste trap komen we op de tweede verdieping. Hier is nog een ruime slaapkamer waarmee het totaal op vier komt. Hierdoor is deze woning uitermate geschikt voor grote gezinnen en thuiswerken is ook geen enkel probleem. Verder vind je op de tweede verdieping de technische ruimte met de cv-installatie, WtW-installatie en de omvormer van de zonnepanelen. Ook is hier ruimte voor het witgoed. Achter de knieschotten is veel ruimte voor opslag.
Tot slot de tuin. De woning staat op een prachtig perceel van 304m² waarbij er aan de voorkant van de woning voldoende ruimte is om twee auto's op eigen terrein te parkeren. De achtertuin is werkelijk een plaatje! Deze is ruim en er zijn meerdere terrassen om te genieten van de zon. Er is een prachtige overkapping waar het het hele jaar door heerlijk toeven is.
Zuiderburen is een gewilde wijk, ideaal gelegen op amper vijftien minuten fietsen van het gezellige centrum van Leeuwarden met winkels, uitgaansgelegenheden en Stadsschouwburg De Harmonie. De belangrijkste ontsluitingswegen richting Heerenveen, Groningen en het Westen bevinden zich eveneens op korte afstand. De wijk beschikt zelf ook over talloze voorzieningen zoals kinderopvang, scholen, een supermarkt en het zorgcentrum.
Bijzonderheden
- Prachtige uitbouw
- 157m² woonoppervlakte
- vier ruime slaapkamers
- heerlijke tuin
- Moderne keuken
- Moderne badkamer
- Energielabel A
- WtW aanwezig
- 15 zonnepanelen aanwezig
- waterontharder aanwezig
Wat een fijne plek! Deze strakke 2-onder-1-kapwoning heeft een prachtige aanbouw, een heerlijke diepe tuin, een moderne keuken en badkamer, is uitstekend geïsoleerd en er zijn vier ruime slaapkamers aanwezig. Met maar liefst 157m² woonoppervlakte vind je hier alle ruimte die je je wensen kan.
Indeling:
Je komt aanrijden bij de woning die ligt in een gezellige straat en je parkeert de auto op eigen oprit. Via de voordeur kom je binnen in de hal. Hier vind je de garderobe, meterkast en het eerste toilet. Als je doorloopt, kom je terecht in de ruime uitgebouwde woonkamer. De speelse indeling en moderne inrichting zorgen hier voor een bijzonder sfeervol geheel. De zitkamer geeft een knus gevoel en heeft een prachtig vrij uitzicht over de groene tuin. De open keuken is voorzien van alle gemakken en geeft zicht op de gezellige straat waarin de woning gelegen is. De moderne keuken is onder andere voorzien van een inductiekookplaat, Quooker, combi-oven, koelkast en vaatwasser. De keuken staat in directe verbinding met de living en het eetgedeelte aan de achterzijde van de woning. Hier stap je bovendien via de schuifpui zo de heerlijke achtertuin in. Het woongedeelte van de begane grond is voorzien van vloerverwarming en een strakke houten vloer. De bijkeuken is aan de achterzijde en staat in directe verbinding met de inpandige garage.
We gaan via de trap naar de overloop op de eerste verdieping. Hier is de strakke badkamer met inloopdouche, wastafelmeubel en het tweede toilet. Verder vind je op de eerste verdieping drie ruime slaapkamers waarvan twee aan de achterzijde en een aan de voorzijde van de woning. Deze voorste slaapkamer is voorzien van een balkon en in de master bedroom is een airco die met gemak de hele verdieping koel houdt.
Via de vaste trap komen we op de tweede verdieping. Hier is nog een ruime slaapkamer waarmee het totaal op vier komt. Hierdoor is deze woning uitermate geschikt voor grote gezinnen en thuiswerken is ook geen enkel probleem. Verder vind je op de tweede verdieping de technische ruimte met de cv-installatie, WtW-installatie en de omvormer van de zonnepanelen. Ook is hier ruimte voor het witgoed. Achter de knieschotten is veel ruimte voor opslag.
Tot slot de tuin. De woning staat op een prachtig perceel van 304m² waarbij er aan de voorkant van de woning voldoende ruimte is om twee auto's op eigen terrein te parkeren. De achtertuin is werkelijk een plaatje! Deze is ruim en er zijn meerdere terrassen om te genieten van de zon. Er is een prachtige overkapping waar het het hele jaar door heerlijk toeven is.
Zuiderburen is een gewilde wijk, ideaal gelegen op amper vijftien minuten fietsen van het gezellige centrum van Leeuwarden met winkels, uitgaansgelegenheden en Stadsschouwburg De Harmonie. De belangrijkste ontsluitingswegen richting Heerenveen, Groningen en het Westen bevinden zich eveneens op korte afstand. De wijk beschikt zelf ook over talloze voorzieningen zoals kinderopvang, scholen, een supermarkt en het zorgcentrum.
Bijzonderheden
- Prachtige uitbouw
- 157m² woonoppervlakte
- vier ruime slaapkamers
- heerlijke tuin
- Moderne keuken
- Moderne badkamer
- Energielabel A
- WtW aanwezig
- 15 zonnepanelen aanwezig
- waterontharder aanwezig
Stel een vraag
Bel mij terug




































































































