Leeuwarden de Weeren 8
Omschrijving
vraagprijs
€ 397.500 k.k.
Kenmerken
Overdracht
| Status | beschikbaar |
|---|---|
| Prijs | € 397.500 k.k. |
Bouw
| Bouwjaar | 2011 |
|---|---|
| Bouwvorm | bestaande bouw |
| Type Object | Woonhuis |
| Hoofdfunctie | Woonruimte |
Indeling
| Woonoppervlakte | 130 m² |
|---|---|
| Perceeloppervlakte | 225 m² |
| Woning Inhoud | 523 m³ |
| Kamers | 5 (4 slaapkamers) |
Energie
| Energielabel | A |
|---|
Interesse?
Ruime, moderne twee-onder-een-kapwoning met garage, dakterras én energiebesparende voorzieningen!
Welkom aan de Weeren 8 aan de noordrand van het geliefde Leeuwarden, met het uitgebreide winkelcentrum van Bilgaard en alle nodige voorzieningen dichtbij en het mooie Leeuwarder bos op loopafstand. Het is een autoluwe en derhalve kindvriendelijke straat met veel parkeerruimte voor gasten.
Kortom:
Een instapklare, uitstekend onderhouden twee-onder-een-kapwoning met garage, gelegen in een rustige buurt. Deze royale woning biedt comfort, moderne afwerking en verrassend veel ruimte, zowel binnen als buiten.
Pluspunten op een rij:
6 zonnepanelen (2012) met spaarpomp die energiebesparend werkt.
Zonnescreens aan de buitenzijde
De schuifpui, ramen 1e verdieping en de deur naar het dakterras beschikken over horren.
Riante garage met elektrische deur
Ruime oprit voor meerdere auto's en onderhoudsvriendelijke tuin met drainage
Fraai dakterras én een multifunctionele ruimte op de tweede verdieping
Volledig afgewerkte wanden en vloeren – instap klaar!
Indeling:
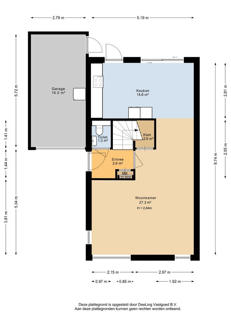
Begane grond
Via de entree kom je in een nette hal met modern toilet voorzien van fontein. De lichte en open keuken aan de achterzijde met schuifpui is uitgerust met hoogwaardige inbouwapparatuur: een inductiekookplaat, natuurstenen aanrechtblad, vaatwasser, combimagnetron, koelkast, vriezer én een handige close-in boiler.
De gezellige woonkamer aan de voorzijde heeft een glazen deur naar de hal wat zorgt voor veel lichtinval en een fijne verbinding met buiten. De linoleum vloer is modern, duurzaam en onderhoudsvriendelijk. Praktische trapkast met planken biedt extra bergruimte.
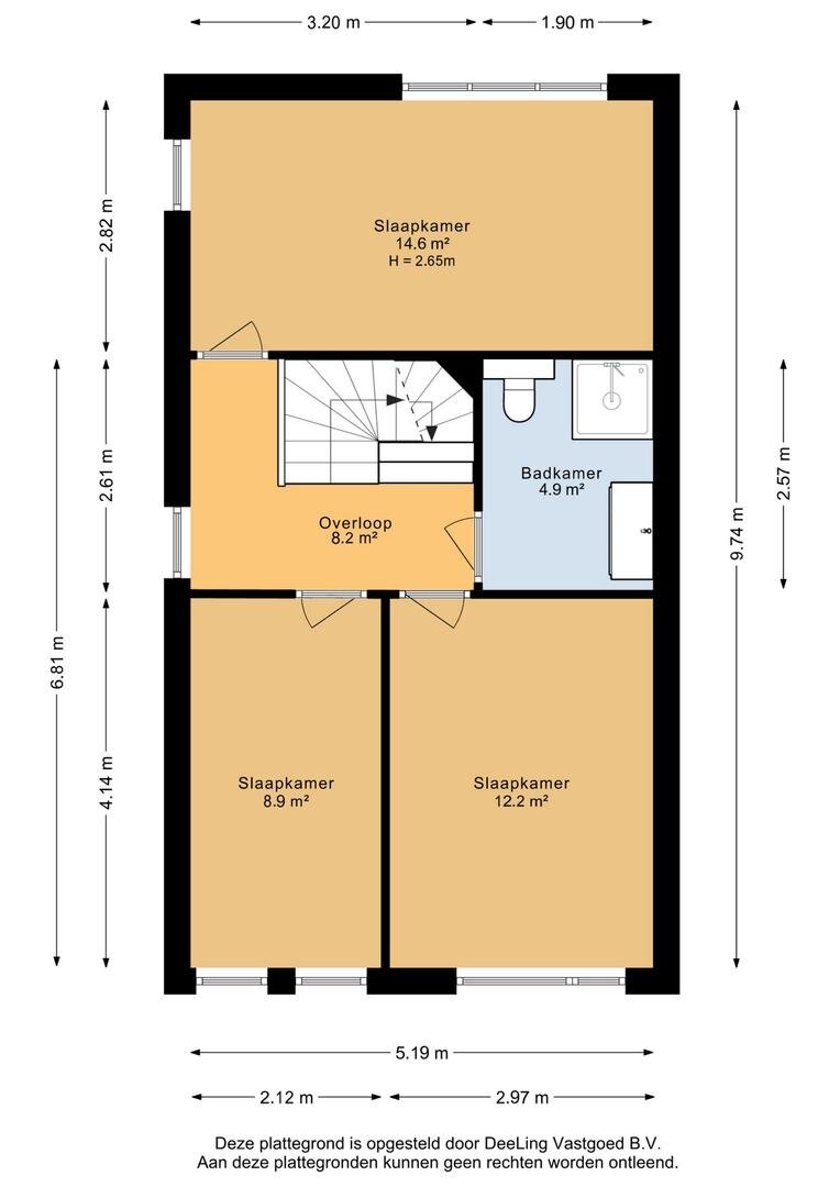
1e verdieping
Op de eerste verdieping bevinden zich drie ruime slaapkamers met vloerbedekking. De badkamer is strak en modern afgewerkt en beschikt over een hangend toilet, douche en badkamermeubel.
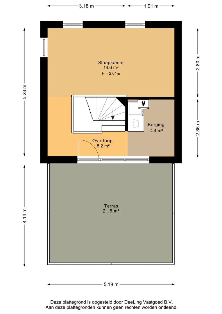
2e verdieping
Deze verrassend ruime verdieping die ideaal is als thuiswerkplek, hobbyruimte of extra slaapkamer. Voorzien van een laminaatvloer, witgoedaansluitingen, dakterras én een energiezuinige WTW-spaarpomp (Inventum). Ook de cv-ketel (Remeha, 2011) bevindt zich hier.
Buitenruimte
De fraai aangelegde tuin met vele fruitbomen beschikt over goede drainage . De steeg aan de zijkant is netjes en praktisch. De buitenzonwering zorgt voor verkoeling op warme dagen, en het buitenschilderwerk (2011) is strak en goed onderhouden.
Perceel oppervlakte is 225 m² eigen grond
Interesse?
Deze ruime woning combineert comfort, energiezuinigheid en een moderne uitstraling. Een perfecte gezinswoning met alles wat je nodig hebt – van een moderne keuken tot zonnepanelen en een fijne werkplek aan huis.
Plan snel een bezichtiging en laat je verrassen door de ruimte en het wooncomfort van deze topper aan de Weeren 8 in Leeuwarden!
Welkom aan de Weeren 8 aan de noordrand van het geliefde Leeuwarden, met het uitgebreide winkelcentrum van Bilgaard en alle nodige voorzieningen dichtbij en het mooie Leeuwarder bos op loopafstand. Het is een autoluwe en derhalve kindvriendelijke straat met veel parkeerruimte voor gasten.
Kortom:
Een instapklare, uitstekend onderhouden twee-onder-een-kapwoning met garage, gelegen in een rustige buurt. Deze royale woning biedt comfort, moderne afwerking en verrassend veel ruimte, zowel binnen als buiten.
Pluspunten op een rij:
6 zonnepanelen (2012) met spaarpomp die energiebesparend werkt.
Zonnescreens aan de buitenzijde
De schuifpui, ramen 1e verdieping en de deur naar het dakterras beschikken over horren.
Riante garage met elektrische deur
Ruime oprit voor meerdere auto's en onderhoudsvriendelijke tuin met drainage
Fraai dakterras én een multifunctionele ruimte op de tweede verdieping
Volledig afgewerkte wanden en vloeren – instap klaar!
Indeling:
Begane grond
Via de entree kom je in een nette hal met modern toilet voorzien van fontein. De lichte en open keuken aan de achterzijde met schuifpui is uitgerust met hoogwaardige inbouwapparatuur: een inductiekookplaat, natuurstenen aanrechtblad, vaatwasser, combimagnetron, koelkast, vriezer én een handige close-in boiler.
De gezellige woonkamer aan de voorzijde heeft een glazen deur naar de hal wat zorgt voor veel lichtinval en een fijne verbinding met buiten. De linoleum vloer is modern, duurzaam en onderhoudsvriendelijk. Praktische trapkast met planken biedt extra bergruimte.
1e verdieping
Op de eerste verdieping bevinden zich drie ruime slaapkamers met vloerbedekking. De badkamer is strak en modern afgewerkt en beschikt over een hangend toilet, douche en badkamermeubel.
2e verdieping
Deze verrassend ruime verdieping die ideaal is als thuiswerkplek, hobbyruimte of extra slaapkamer. Voorzien van een laminaatvloer, witgoedaansluitingen, dakterras én een energiezuinige WTW-spaarpomp (Inventum). Ook de cv-ketel (Remeha, 2011) bevindt zich hier.
Buitenruimte
De fraai aangelegde tuin met vele fruitbomen beschikt over goede drainage . De steeg aan de zijkant is netjes en praktisch. De buitenzonwering zorgt voor verkoeling op warme dagen, en het buitenschilderwerk (2011) is strak en goed onderhouden.
Perceel oppervlakte is 225 m² eigen grond
Interesse?
Deze ruime woning combineert comfort, energiezuinigheid en een moderne uitstraling. Een perfecte gezinswoning met alles wat je nodig hebt – van een moderne keuken tot zonnepanelen en een fijne werkplek aan huis.
Plan snel een bezichtiging en laat je verrassen door de ruimte en het wooncomfort van deze topper aan de Weeren 8 in Leeuwarden!

Jan Ypeij NVM Makelaar bestaande bouw
Plan bezichtiging
voor: de Weeren 8
Stel een vraag
Bel mij terug




























































































