Grou De Jol 1
Omschrijving
vraagprijs
€ 301.000 k.k.
Kenmerken
Overdracht
| Status | verkocht onder voorbehoud |
|---|---|
| Prijs | € 301.000 k.k. |
Bouw
| Bouwjaar | 1972 |
|---|---|
| Bouwvorm | bestaande bouw |
| Type Object | Woonhuis |
| Hoofdfunctie | Woonruimte |
Indeling
| Woonoppervlakte | 98 m² |
|---|---|
| Perceeloppervlakte | 303 m² |
| Woning Inhoud | 381 m³ |
| Kamers | 5 (4 slaapkamers) |
Energie
| Energielabel | C |
|---|
Interesse?
Op een mooie locatie in Grou staat deze ruime hoekwoning. De woning beschikt over vier slaapkamers, een fijne open woonruimte op de begane grond, een ruime tuin rondom en eigen oprit en garage.
Grou is een levendig watersportdorp met een rijke historie, gelegen in het hart van Friesland. Oorspronkelijk ontstaan als handels- en veendorp, is Grou uitgegroeid tot een populaire woon- en recreatieplaats aan het Pikmeer en de Friese Meren. Het dorp staat bekend om zijn ligging aan het water, gezellige centrum met winkels en horeca en een actief verenigingsleven. Dankzij de centrale ligging en goede verbindingen richting Leeuwarden en de A32 woon je hier rustig aan het water, met alle voorzieningen binnen handbereik.
Indeling:
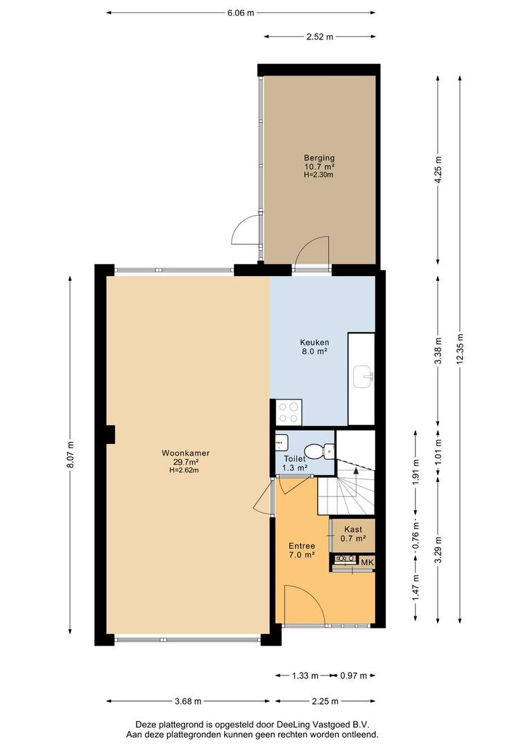
Binnenkomst in de hal met toilet en meterkast. De begane grond beschikt over een ruime en lichte woonkamer en kijkt uit over de straat. Door de fijne indeling sluit de woonkamer aan op de open keuken en is er zicht op de achtertuin. Op de eerste verdieping bevinden zich vier goed bemeten slaapkamers en de badkamer.
De woning heeft een beschutte achtertuin met achterom en ligt op een hoek, waardoor je kunt genieten van extra ruimte en privacy. De auto parkeren kan op de eigen oprit.
Goed om te weten:
- Woonoppervlakte ca. 98 m²
- Perceeloppervlakte ca. 303 m²
- Energielabel C
- Beschutte achtertuin met achterom
- Kunststof kozijnen met dubbel glas
- Voorwaarden van Elkien van toepassing
Ben jij enthousiast over deze woning? Maak dan snel een afspraak voor een bezichtiging!
Voor een afspraak tijdens de bezichtigingsmiddag kan je bellen met ons kantoor. We verwelkomen je graag! De sluiting van de inschrijving eindigt op dinsdag 3 maart om 12:00 uur.
HUUR JE OP DIT MOMENT EEN WONING VAN ELKIEN? DAN HEB JE VOORRANG OM IN TE SCHRIJVEN VOOR DEZE WONING EN TE KOPEN VOOR DE VRAAGPRIJS (zie voorwaarden Elkien in de tekst hieronder**).
Wordt de woning niet verkocht aan een huurder, dan wordt deze gegund aan de hoogste bieder met de koopsom als minimale inschrijfprijs. Inschrijving voor huurders alleen geldig met volledig ingevuld inschrijfformulier incl. documenten.
Voorwaarden Elkien:
* De woning wordt verkocht in de huidige staat;
* Antispeculatiebeding: de woning mag niet binnen drie jaar worden door verkocht;
* Verbod van verhuur uitgezonderd verhuur aan eerste graad bloedverwanten: de woning mag drie jaar niet worden verhuurd.
* Ouderdomsclausule: de bouwkwaliteit ligt lager dan bij nieuwe woningen;
* Voorbehoud financiering: maximaal 6 weken na mondeling akkoord koper/verkoper;
* Sleuteloverdracht: maximaal 8 weken na mondeling akkoord koper/verkoper;
* Indien de woning later passeert dan 8 weken, betaalt koper € 20,- boete per dag aan verkoper;
* Koper dient een natuurlijk persoon te zijn;
* De leveringsakte wordt betaald door Elkien (huisnotaris Breuker Netwerk Notarissen te Drachten);
** Jij huurt op dit moment een woning van Elkien (ingeschreven staan als woningzoekende telt niet);
** Indien meerdere huurders zich hebben ingeschreven, wordt de woning toegewezen op basis van loting;
** Indien jij huurder bent en met een medehuurder wilt kopen, dient deze tenminste 2 jaar ingeschreven te staan op hetzelfde huuradres (medehuurderschap) of van rechtswege door huwelijk/geregistreerd partnerschap of jullie huren ieder een woning van Elkien en willen deze woning samen kopen
Grou is een levendig watersportdorp met een rijke historie, gelegen in het hart van Friesland. Oorspronkelijk ontstaan als handels- en veendorp, is Grou uitgegroeid tot een populaire woon- en recreatieplaats aan het Pikmeer en de Friese Meren. Het dorp staat bekend om zijn ligging aan het water, gezellige centrum met winkels en horeca en een actief verenigingsleven. Dankzij de centrale ligging en goede verbindingen richting Leeuwarden en de A32 woon je hier rustig aan het water, met alle voorzieningen binnen handbereik.
Indeling:
Binnenkomst in de hal met toilet en meterkast. De begane grond beschikt over een ruime en lichte woonkamer en kijkt uit over de straat. Door de fijne indeling sluit de woonkamer aan op de open keuken en is er zicht op de achtertuin. Op de eerste verdieping bevinden zich vier goed bemeten slaapkamers en de badkamer.
De woning heeft een beschutte achtertuin met achterom en ligt op een hoek, waardoor je kunt genieten van extra ruimte en privacy. De auto parkeren kan op de eigen oprit.
Goed om te weten:
- Woonoppervlakte ca. 98 m²
- Perceeloppervlakte ca. 303 m²
- Energielabel C
- Beschutte achtertuin met achterom
- Kunststof kozijnen met dubbel glas
- Voorwaarden van Elkien van toepassing
Ben jij enthousiast over deze woning? Maak dan snel een afspraak voor een bezichtiging!
Voor een afspraak tijdens de bezichtigingsmiddag kan je bellen met ons kantoor. We verwelkomen je graag! De sluiting van de inschrijving eindigt op dinsdag 3 maart om 12:00 uur.
HUUR JE OP DIT MOMENT EEN WONING VAN ELKIEN? DAN HEB JE VOORRANG OM IN TE SCHRIJVEN VOOR DEZE WONING EN TE KOPEN VOOR DE VRAAGPRIJS (zie voorwaarden Elkien in de tekst hieronder**).
Wordt de woning niet verkocht aan een huurder, dan wordt deze gegund aan de hoogste bieder met de koopsom als minimale inschrijfprijs. Inschrijving voor huurders alleen geldig met volledig ingevuld inschrijfformulier incl. documenten.
Voorwaarden Elkien:
* De woning wordt verkocht in de huidige staat;
* Antispeculatiebeding: de woning mag niet binnen drie jaar worden door verkocht;
* Verbod van verhuur uitgezonderd verhuur aan eerste graad bloedverwanten: de woning mag drie jaar niet worden verhuurd.
* Ouderdomsclausule: de bouwkwaliteit ligt lager dan bij nieuwe woningen;
* Voorbehoud financiering: maximaal 6 weken na mondeling akkoord koper/verkoper;
* Sleuteloverdracht: maximaal 8 weken na mondeling akkoord koper/verkoper;
* Indien de woning later passeert dan 8 weken, betaalt koper € 20,- boete per dag aan verkoper;
* Koper dient een natuurlijk persoon te zijn;
* De leveringsakte wordt betaald door Elkien (huisnotaris Breuker Netwerk Notarissen te Drachten);
** Jij huurt op dit moment een woning van Elkien (ingeschreven staan als woningzoekende telt niet);
** Indien meerdere huurders zich hebben ingeschreven, wordt de woning toegewezen op basis van loting;
** Indien jij huurder bent en met een medehuurder wilt kopen, dient deze tenminste 2 jaar ingeschreven te staan op hetzelfde huuradres (medehuurderschap) of van rechtswege door huwelijk/geregistreerd partnerschap of jullie huren ieder een woning van Elkien en willen deze woning samen kopen

Anneke Hofstee ARMT Adviseur bestaande bouw
Stel een vraag
Bel mij terug























































