Leeuwarden de Hooidollen 25
Omschrijving
vraagprijs
€ 259.000 k.k.
Kenmerken
Overdracht
| Status | verkocht onder voorbehoud |
|---|---|
| Prijs | € 259.000 k.k. |
Bouw
| Bouwjaar | 1969 |
|---|---|
| Bouwvorm | bestaande bouw |
| Type Object | Woonhuis |
| Hoofdfunctie | Woonruimte |
Indeling
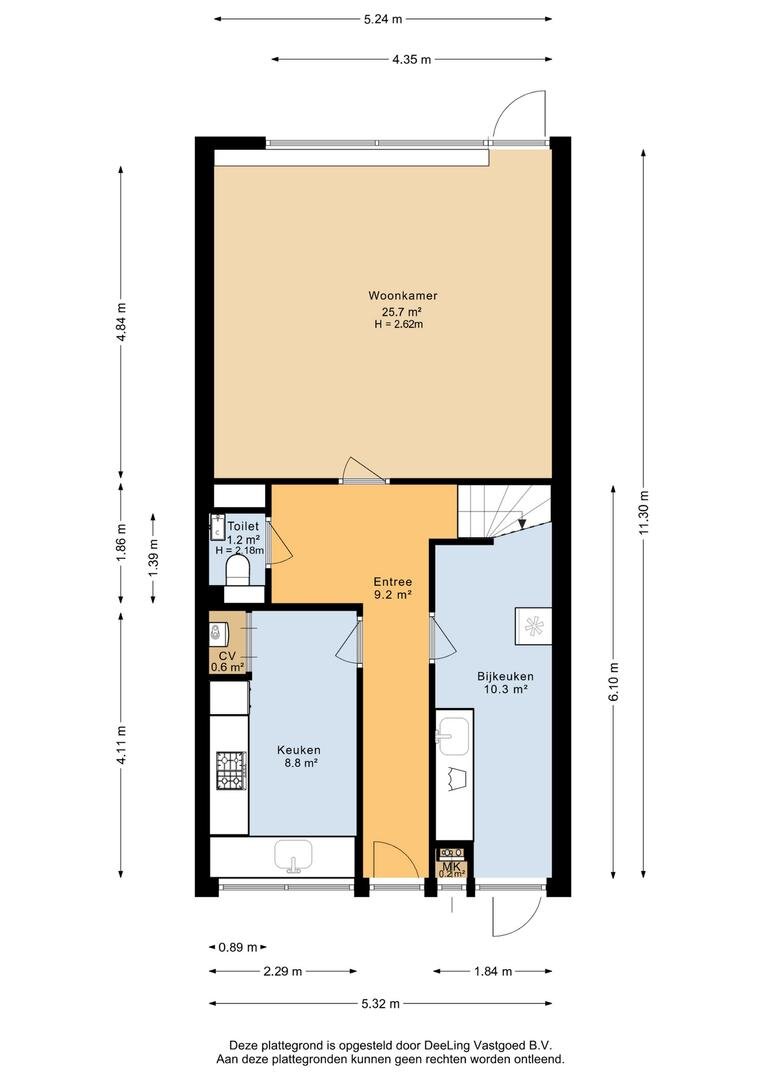
| Woonoppervlakte | 118 m² |
|---|---|
| Perceeloppervlakte | 120 m² |
| Woning Inhoud | 423 m³ |
| Kamers | 4 (3 slaapkamers) |
Energie
| Energielabel | C |
|---|
Interesse?
Ben je op zoek naar een ruime, netjes gemoderniseerde woning op een rustige plek met een fijne tuin? Dan is de Hooidollen 25 precies wat je zoekt. Sinds 2016 is deze woning grondig aangepakt. Denk aan een vernieuwde keuken en badkamer, een modern toilet en diverse afwerkingen die zorgen voor een strakke uitstraling. Met 118 m² woonoppervlakte, energielabel C en drie ruime slaapkamers ben je hier helemaal klaar voor de toekomst. Deze woning staat voor jou klaar, je kunt er zo in!
De woning bevindt zich in een rustig hofje waar je gemakkelijk de auto parkeert. We stappen de hal binnen aan de voorkant van de woning en lopen door naar de woonkamer. Je wordt begroet door een mooie ruimte met grote ramen die zorgen voor een fijne lichtinval. Dankzij de praktische indeling is er volop ruimte voor zowel een comfortabele zithoek als een royale eethoek. De laminaatvloer loopt mooi door en de wanden zijn voorzien van strak stucwerk. Aan de voorzijde bevindt zich de keuken uit 2016, uitgevoerd met inbouwapparatuur en een moderne uitstraling. De woonkamer is een prettige ruimte en staat in directe verbinding met de zonnige achtertuin. De tuin is 9 meter diep, gelegen op het zonnige westen waardoor je hier heerlijk van de middag- en avondzon geniet. Er is een terras aanwezig en de fijne overkapping maakt dit een sfeervolle plek om te ontspannen of gezellig buiten te zitten. De schuur naast de overkapping is praktisch en voorzien van elektra. Vanuit de hal is er toegang tot het toilet (2022) en de technische ruimte waar ook ruimte is voor het witgoed. Dit is tevens een inpandige berging waar veel ruimte is voor opslag met een eigen deur naar buiten.
We lopen door naar de verdieping.
De overloop geeft toegang tot drie royale slaapkamers. Door de rechte gevels voelen de kamers extra ruim aan en kun je ze praktisch inrichten. De master bedroom is extra groot omdat hier van twee slaapkamers één is gemaakt. Bovendien is hier een diepe inbouwkast. De badkamer is vernieuwd in 2016 en compleet uitgevoerd met een ligbad, inloopdouche, wastafelmeubel en toilet. Alles is netjes afgewerkt en direct te gebruiken.
De Hooidollen 25 ligt op loopafstand van het Leeuwarder Bos, het zwembad, het winkelcentrum met 35 speciaalzaken, diverse scholen en ligt vlakbij de rondweg. De wijk Bilgaard ligt aan de noordzijde van Leeuwarden en is een wijk die geschikt is voor zowel jongeren als ouderen en is door de perfecte ligging ten opzichte van de uitvalswegen geliefd. In 10 minuten ben je op de fiets in het centrum van Leeuwarden. Kortom, alle voorzieningen binnen bereik.
Kenmerken:
- Bouwjaar 1969
- Woonoppervlakte: 118 m2
- Gemoderniseerd vanaf 2016, met o.a. vernieuwde keuken, badkamer en nieuwe schuur met overkapping
- Toilet vernieuwd in 2022
- Nieuwe radiatoren geplaatst en leidingen weggewerkt
- Wanden gestuct en geluidswerend afgewerkt richting buren
- Buitenschilderwerk uitgevoerd in 2025
- Intergas cv-ketel (2012, eigendom)
- Rustige, kindvriendelijke wijk op gunstige locatie
- Ruime inpandige berging
- Fijne tuin op het westen
Ben jij net zo enthousiast over deze woning als wij? Plan dan snel een bezichtiging en kom zelf ervaren wat de Hooidollen 25 je te bieden heeft.
De woning bevindt zich in een rustig hofje waar je gemakkelijk de auto parkeert. We stappen de hal binnen aan de voorkant van de woning en lopen door naar de woonkamer. Je wordt begroet door een mooie ruimte met grote ramen die zorgen voor een fijne lichtinval. Dankzij de praktische indeling is er volop ruimte voor zowel een comfortabele zithoek als een royale eethoek. De laminaatvloer loopt mooi door en de wanden zijn voorzien van strak stucwerk. Aan de voorzijde bevindt zich de keuken uit 2016, uitgevoerd met inbouwapparatuur en een moderne uitstraling. De woonkamer is een prettige ruimte en staat in directe verbinding met de zonnige achtertuin. De tuin is 9 meter diep, gelegen op het zonnige westen waardoor je hier heerlijk van de middag- en avondzon geniet. Er is een terras aanwezig en de fijne overkapping maakt dit een sfeervolle plek om te ontspannen of gezellig buiten te zitten. De schuur naast de overkapping is praktisch en voorzien van elektra. Vanuit de hal is er toegang tot het toilet (2022) en de technische ruimte waar ook ruimte is voor het witgoed. Dit is tevens een inpandige berging waar veel ruimte is voor opslag met een eigen deur naar buiten.
We lopen door naar de verdieping.
De overloop geeft toegang tot drie royale slaapkamers. Door de rechte gevels voelen de kamers extra ruim aan en kun je ze praktisch inrichten. De master bedroom is extra groot omdat hier van twee slaapkamers één is gemaakt. Bovendien is hier een diepe inbouwkast. De badkamer is vernieuwd in 2016 en compleet uitgevoerd met een ligbad, inloopdouche, wastafelmeubel en toilet. Alles is netjes afgewerkt en direct te gebruiken.
De Hooidollen 25 ligt op loopafstand van het Leeuwarder Bos, het zwembad, het winkelcentrum met 35 speciaalzaken, diverse scholen en ligt vlakbij de rondweg. De wijk Bilgaard ligt aan de noordzijde van Leeuwarden en is een wijk die geschikt is voor zowel jongeren als ouderen en is door de perfecte ligging ten opzichte van de uitvalswegen geliefd. In 10 minuten ben je op de fiets in het centrum van Leeuwarden. Kortom, alle voorzieningen binnen bereik.
Kenmerken:
- Bouwjaar 1969
- Woonoppervlakte: 118 m2
- Gemoderniseerd vanaf 2016, met o.a. vernieuwde keuken, badkamer en nieuwe schuur met overkapping
- Toilet vernieuwd in 2022
- Nieuwe radiatoren geplaatst en leidingen weggewerkt
- Wanden gestuct en geluidswerend afgewerkt richting buren
- Buitenschilderwerk uitgevoerd in 2025
- Intergas cv-ketel (2012, eigendom)
- Rustige, kindvriendelijke wijk op gunstige locatie
- Ruime inpandige berging
- Fijne tuin op het westen
Ben jij net zo enthousiast over deze woning als wij? Plan dan snel een bezichtiging en kom zelf ervaren wat de Hooidollen 25 je te bieden heeft.
Stel een vraag
Bel mij terug


























































































