Drachten De Drift 34 5
Omschrijving
vraagprijs
€ 350.000 k.k.
Kenmerken
Overdracht
| Status | beschikbaar |
|---|---|
| Prijs | € 350.000 k.k. |
Bouw
| Bouwjaar | 1997 |
|---|---|
| Bouwvorm | bestaande bouw |
| Type Object | Appartement |
| Hoofdfunctie | Woonruimte |
Indeling
| Woonoppervlakte | 89 m² |
|---|---|
| Woning Inhoud | 274 m³ |
| Kamers | 3 (2 slaapkamers) |
Energie
| Energielabel | B |
|---|
Interesse?
Comfortabel wonen op een centrale plek in Drachten.
Dit appartement ligt in het centrum van Drachten, op loopafstand van o.a. winkels, supermarkten, het busstation en schouwburg De Lawei. Het appartement beschikt over een lichte woonkamer met open keuken, twee slaapkamers en een balkon. Achter het complex kunt u uw auto parkeren. Het appartement heeft energielabel B en is gelegen in een complex met lift.
Drachten: centraal, compleet en goed bereikbaar.
Drachten is een groot dorp met veel voorzieningen. U vindt hier een uitgebreid winkelcentrum, diverse eetgelegenheden, medische zorg en cultuur. Dankzij de centrale ligging en het busstation om de hoek bent u goed verbonden met omliggende plaatsen zoals Leeuwarden en Groningen. Alles wat u nodig heeft, is dichtbij.
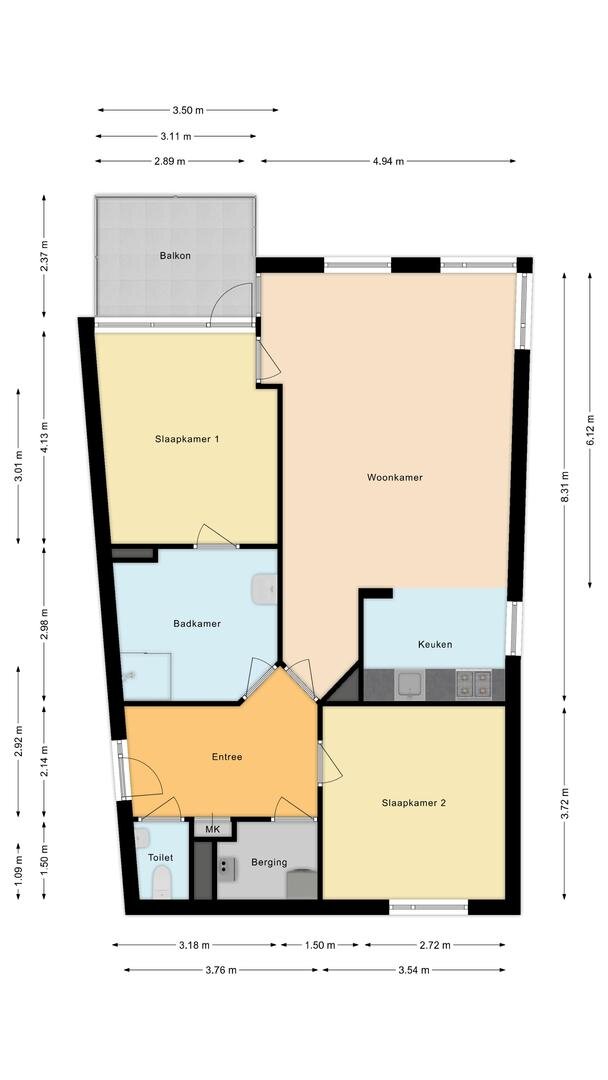
Indeling:
Bij aankomst in dit complex wordt u hartelijk verwelkomd in de entree. Eenmaal binnen heeft u de keuze, neemt u de trap voor een sportieve start of kiest u de lift voor extra gemak. Beide brengen u naar de 4e etage waar dit appartement op u wacht. U stapt door de deur en u komt in de ruime hal die toegang geeft tot het toilet, meterkast, berging, de eerste slaapkamer en de woonkamer. De woonkamer met een open keuken is ruim en licht. De tweede slaapkamer is toegankelijk vanuit de woonkamer en biedt via een deur toegang tot het balkon, een fijne plek om even buiten te zijn. Vanuit deze slaapkamer loopt u rechtstreeks de badkamer in, die is voorzien van een douche en wastafel. De berging huisvest de Cv-installatie en biedt ruimte voor uw witgoed. Bovendien beschikt dit appartement over een aparte inpandige berging op de begane grond, waardoor u altijd voldoende opbergruimte heeft voor al uw spullen.
Wilt u dit appartement zelf ervaren? Een belletje is genoeg om een afspraak te maken. Wij hebben een speciale woningwebsite gemaakt voor dit appartement, neemt u gerust een kijkje op: dedrift34-5.nl.
Bijzonderheden:
- Energielabel B;
- Bouwjaar 1997;
- Lift aanwezig;
- In het centrum;
- Dubbel glas en volledig geïsoleerd;
- Maandelijkse bijdrage voor de Vereniging van Eigenaar € 210,16, dit is voor verzekering en onderhoud van het gehele gebouw incl. liftinstallatie;
- Goed onderhouden.
Dit appartement ligt in het centrum van Drachten, op loopafstand van o.a. winkels, supermarkten, het busstation en schouwburg De Lawei. Het appartement beschikt over een lichte woonkamer met open keuken, twee slaapkamers en een balkon. Achter het complex kunt u uw auto parkeren. Het appartement heeft energielabel B en is gelegen in een complex met lift.
Drachten: centraal, compleet en goed bereikbaar.
Drachten is een groot dorp met veel voorzieningen. U vindt hier een uitgebreid winkelcentrum, diverse eetgelegenheden, medische zorg en cultuur. Dankzij de centrale ligging en het busstation om de hoek bent u goed verbonden met omliggende plaatsen zoals Leeuwarden en Groningen. Alles wat u nodig heeft, is dichtbij.
Indeling:
Bij aankomst in dit complex wordt u hartelijk verwelkomd in de entree. Eenmaal binnen heeft u de keuze, neemt u de trap voor een sportieve start of kiest u de lift voor extra gemak. Beide brengen u naar de 4e etage waar dit appartement op u wacht. U stapt door de deur en u komt in de ruime hal die toegang geeft tot het toilet, meterkast, berging, de eerste slaapkamer en de woonkamer. De woonkamer met een open keuken is ruim en licht. De tweede slaapkamer is toegankelijk vanuit de woonkamer en biedt via een deur toegang tot het balkon, een fijne plek om even buiten te zijn. Vanuit deze slaapkamer loopt u rechtstreeks de badkamer in, die is voorzien van een douche en wastafel. De berging huisvest de Cv-installatie en biedt ruimte voor uw witgoed. Bovendien beschikt dit appartement over een aparte inpandige berging op de begane grond, waardoor u altijd voldoende opbergruimte heeft voor al uw spullen.
Wilt u dit appartement zelf ervaren? Een belletje is genoeg om een afspraak te maken. Wij hebben een speciale woningwebsite gemaakt voor dit appartement, neemt u gerust een kijkje op: dedrift34-5.nl.
Bijzonderheden:
- Energielabel B;
- Bouwjaar 1997;
- Lift aanwezig;
- In het centrum;
- Dubbel glas en volledig geïsoleerd;
- Maandelijkse bijdrage voor de Vereniging van Eigenaar € 210,16, dit is voor verzekering en onderhoud van het gehele gebouw incl. liftinstallatie;
- Goed onderhouden.

Hielke Fonk NVM Register Makelaar - Taxateur
Plan bezichtiging
voor: De Drift 34 5
Stel een vraag
Bel mij terug





































































