Lippenhuizen Buorsterwyk 12
Omschrijving
vraagprijs
€ 226.000 k.k.
Kenmerken
Overdracht
| Status | onder bod |
|---|---|
| Prijs | € 226.000 k.k. |
Bouw
| Bouwjaar | 1956 |
|---|---|
| Bouwvorm | bestaande bouw |
| Type Object | Woonhuis |
| Hoofdfunctie | Woonruimte |
Indeling
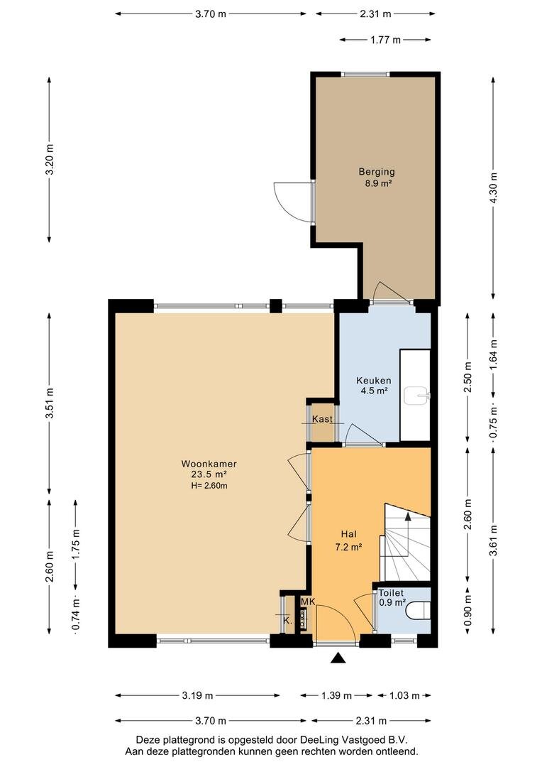
| Woonoppervlakte | 76 m² |
|---|---|
| Perceeloppervlakte | 245 m² |
| Woning Inhoud | 279 m³ |
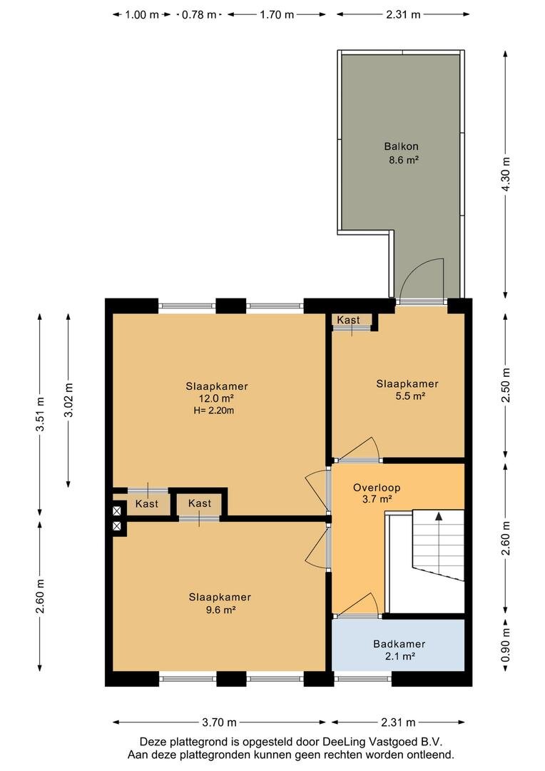
| Kamers | 4 (3 slaapkamers) |
Energie
| Energielabel | C |
|---|
Interesse?
Op zoek naar een keurige eengezinswoning, gelegen aan een rustige straat in Lippenhuizen? Deze woning beschikt over een doorzonkamer, een dichte keuken, 3 slaapkamers en een diepe achtertuin op het westen. De basis is aanwezig, maar houdt er rekening mee dat de woning gemoderniseerd dient te worden. Dat maakt dit juist een aantrekkelijke kans voor iedereen die hun eigen woonwensen willen realiseren en stap voor stap een fijn thuis willen creëren. Met een vraagprijs van €225.000 biedt deze woning een toegankelijke instap op de koopmarkt, op een rustige plek in het dorp.
Lippenhuizen is een gezellig dorp aan de Compagnonsfeart, onderdeel van de beroemde Friese Turfroute. Het dorp biedt alle basisvoorzieningen, van supermarkt en eetcafé tot basisschool en kinderopvang. Omringd door landerijen, bos en heide geniet je hier van rust én ben je snel in Gorredijk, Heerenveen of Drachten.
Indeling
Begane grond:
Bij binnenkomst in de hal met toilet, meterkast en trapopgang. De woonkamer biedt een aangenaam uitzicht op de straat aan de voorzijde en een prettig zicht op de tuin aan de achterkant. De keuken is via de woonkamer bereikbaar en beschikt over een eenvoudige opstelling. Vanuit de keuken kom je in de bijkeuken/berging.
Verdieping:
De overloop leidt naar drie slaapkamers. Twee royale slaapkamers en één kleinere slaapkamer van ongeveer 6m² groot. De badkamer is voorzien van een douche en wastafel. Op de overloop bevindt zich het luik naar de vliering.
Buiten:
De achtertuin is gelegen op het westen, waardoor je tot in de late uurtjes kunt genieten van de ondergaande zon. Via het mandelig stuk grond kun je achterom naar de woning toe.
Bijzonderheden:
- Woonoppervlakte 76 m²;
- Perceeloppervlakte: 245 m²;
- Energielabel C;
- Voorwaarden Elkien zijn van toepassing.
Ben jij net zo enthousiast als wij zijn over deze leuke eengezinswoning? Aarzel dan niet en maak snel een afspraak voor een bezichtiging!
Alle bezichtigingen (ook niet-huurders) dienen tijdens de bezichtigingsmiddag op donderdag 8 januari tussen 15:00 uur en 17:00 uur plaats te vinden. Voor het maken van een afspraak voor een bezichtiging kun je contact opnemen met ons kantoor in Heerenveen. We verwelkomen je graag! De inschrijving sluit op donderdag 15 januari om 12.00 uur.
HUUR JE OP DIT MOMENT EEN WONING VAN ELKIEN? DAN HEB JE VOORRANG OM IN TE SCHRIJVEN VOOR DEZE WONING EN TE KOPEN VOOR DE VRAAGPRIJS (zie voorwaarden Elkien in de tekst hieronder**).
Wordt de woning niet verkocht aan een huurder, dan wordt deze gegund aan de hoogste bieder met de koopsom als minimale inschrijfprijs.
** Jij huurt op dit moment een woning van Elkien (ingeschreven staan als woningzoekende telt niet);
** Indien meerdere huurders zich hebben ingeschreven, wordt de woning toegewezen op basis van loting;
** Indien jij huurder bent en met een medehuurder wilt kopen, dient deze tenminste 2 jaar ingeschreven te staan op hetzelfde huuradres (medehuurderschap) of van rechtswege door huwelijk/geregistreerd partnerschap of jullie huren ieder een woning van Elkien en willen deze woning samen kopen
Voorwaarden Elkien:
* De woning wordt verkocht in de huidige staat;
* Antispeculatiebeding: de woning mag niet binnen drie jaar worden door verkocht;
* Verbod van verhuur uitgezonderd verhuur aan eerste graad bloedverwanten: de woning mag drie jaar niet worden verhuurd.
* Ouderdomsclausule: de bouwkwaliteit ligt lager dan bij nieuwe woningen;
* Voorbehoud financiering: maximaal 6 weken na mondeling akkoord koper/verkoper;
* Sleuteloverdracht: maximaal 8 weken na mondeling akkoord koper/verkoper;
* Indien de woning later passeert dan 8 weken, betaalt koper € 20,- boete per dag aan verkoper;
* Koper dient een natuurlijk persoon te zijn;
* De leveringsakte wordt betaald door Elkien (huisnotaris Breuker Netwerk Notarissen te Drachten);
Lippenhuizen is een gezellig dorp aan de Compagnonsfeart, onderdeel van de beroemde Friese Turfroute. Het dorp biedt alle basisvoorzieningen, van supermarkt en eetcafé tot basisschool en kinderopvang. Omringd door landerijen, bos en heide geniet je hier van rust én ben je snel in Gorredijk, Heerenveen of Drachten.
Indeling
Begane grond:
Bij binnenkomst in de hal met toilet, meterkast en trapopgang. De woonkamer biedt een aangenaam uitzicht op de straat aan de voorzijde en een prettig zicht op de tuin aan de achterkant. De keuken is via de woonkamer bereikbaar en beschikt over een eenvoudige opstelling. Vanuit de keuken kom je in de bijkeuken/berging.
Verdieping:
De overloop leidt naar drie slaapkamers. Twee royale slaapkamers en één kleinere slaapkamer van ongeveer 6m² groot. De badkamer is voorzien van een douche en wastafel. Op de overloop bevindt zich het luik naar de vliering.
Buiten:
De achtertuin is gelegen op het westen, waardoor je tot in de late uurtjes kunt genieten van de ondergaande zon. Via het mandelig stuk grond kun je achterom naar de woning toe.
Bijzonderheden:
- Woonoppervlakte 76 m²;
- Perceeloppervlakte: 245 m²;
- Energielabel C;
- Voorwaarden Elkien zijn van toepassing.
Ben jij net zo enthousiast als wij zijn over deze leuke eengezinswoning? Aarzel dan niet en maak snel een afspraak voor een bezichtiging!
Alle bezichtigingen (ook niet-huurders) dienen tijdens de bezichtigingsmiddag op donderdag 8 januari tussen 15:00 uur en 17:00 uur plaats te vinden. Voor het maken van een afspraak voor een bezichtiging kun je contact opnemen met ons kantoor in Heerenveen. We verwelkomen je graag! De inschrijving sluit op donderdag 15 januari om 12.00 uur.
HUUR JE OP DIT MOMENT EEN WONING VAN ELKIEN? DAN HEB JE VOORRANG OM IN TE SCHRIJVEN VOOR DEZE WONING EN TE KOPEN VOOR DE VRAAGPRIJS (zie voorwaarden Elkien in de tekst hieronder**).
Wordt de woning niet verkocht aan een huurder, dan wordt deze gegund aan de hoogste bieder met de koopsom als minimale inschrijfprijs.
** Jij huurt op dit moment een woning van Elkien (ingeschreven staan als woningzoekende telt niet);
** Indien meerdere huurders zich hebben ingeschreven, wordt de woning toegewezen op basis van loting;
** Indien jij huurder bent en met een medehuurder wilt kopen, dient deze tenminste 2 jaar ingeschreven te staan op hetzelfde huuradres (medehuurderschap) of van rechtswege door huwelijk/geregistreerd partnerschap of jullie huren ieder een woning van Elkien en willen deze woning samen kopen
Voorwaarden Elkien:
* De woning wordt verkocht in de huidige staat;
* Antispeculatiebeding: de woning mag niet binnen drie jaar worden door verkocht;
* Verbod van verhuur uitgezonderd verhuur aan eerste graad bloedverwanten: de woning mag drie jaar niet worden verhuurd.
* Ouderdomsclausule: de bouwkwaliteit ligt lager dan bij nieuwe woningen;
* Voorbehoud financiering: maximaal 6 weken na mondeling akkoord koper/verkoper;
* Sleuteloverdracht: maximaal 8 weken na mondeling akkoord koper/verkoper;
* Indien de woning later passeert dan 8 weken, betaalt koper € 20,- boete per dag aan verkoper;
* Koper dient een natuurlijk persoon te zijn;
* De leveringsakte wordt betaald door Elkien (huisnotaris Breuker Netwerk Notarissen te Drachten);
Plan bezichtiging
voor: Buorsterwyk 12
Stel een vraag
Bel mij terug





















































