Balk Bosmastrjitte 7
Omschrijving
vraagprijs
€ 695.000 k.k.
Kenmerken
Overdracht
| Status | verkocht |
|---|---|
| Prijs | € 695.000 k.k. |
Bouw
| Bouwjaar | 1994 |
|---|---|
| Bouwvorm | bestaande bouw |
| Type Object | Woonhuis |
| Hoofdfunctie | Woonruimte |
Indeling
| Woonoppervlakte | 174 m² |
|---|---|
| Perceeloppervlakte | 1011 m² |
| Woning Inhoud | 654 m³ |
| Kamers | 7 (5 slaapkamers) |
Energie
| Energielabel | B |
|---|
Interesse?
Welkom aan de Bosmastrjitte 7 in Balk, een royale vrijstaande woning met veel leefruimte, een verzorgde tuin, een vrijstaande garage en volop mogelijkheden. Hier woon je in een rustige, groene omgeving op loopafstand van het centrum en de voorzieningen van het dorp.
Zodra je binnenkomt, valt direct de ruime hal op, met toegang tot het toilet, de meterkast (voorzien van glasvezel) en de trap naar boven. De woning is uitstekend voorbereid op gelijkvloers wonen – in de multifunctionele kamer op de begane grond kun je eenvoudig een slaapkamer en zelfs een badkamer realiseren. Dat maakt dit huis levensloopbestendig.
De woonkamer is royaal en licht dankzij de grote ramen en de aluminium schuifpui naar de tuin. Hier geniet je van een mooi uitzicht op het groen en de verzorgde achtertuin met zitkuil.
De keuken (bouwjaar 1994) is degelijk en functioneel, met een gaskookplaat, inbouwkoelkast en vaatwasser. Aangrenzend bevindt zich de bijkeuken met witgoedaansluitingen, vaste kasten en een extra wastafel. Praktisch en netjes afgewerkt.
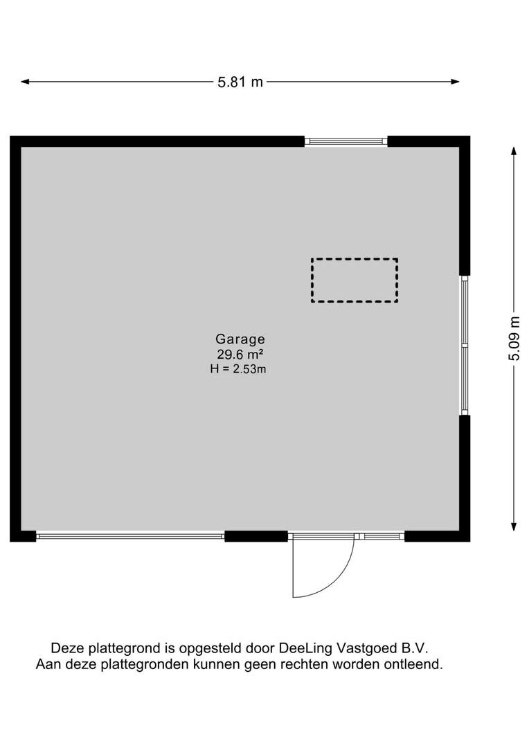
Dan de vrijstaande garage. Deze is voorzien van een betonnen vloer, elektrische deur en een vliering die via een vlizotrap bereikbaar is. Perfect voor de auto, hobby’s of extra opslag.
Op de eerste verdieping vind je maar liefst vijf slaapkamers, een ruime overloop en de badkamer. De badkamer is compleet uitgerust met een ligbad, douche, wastafel en toilet. Vanuit één van de slaapkamers is toegang tot het balkon, waar je kunt genieten van de zon en het uitzicht.
De tweede verdieping is bereikbaar via een vlizotrap. Hier vind je een ruime zolder met daglicht en de CV-installatie (2015). Ideaal als bergruimte of om verder in te richten.
Goed om te weten:
- Houten kozijnen, in 2023 volledig geschilderd;
- CV-installatie uit 2015;
- Energielabel B;
- Ruime zolder met daglicht;
- Overkapping aan de garage (ca. 2015);
Balk
Balk, sinds 2014 onderdeel van de gemeente De Friese Meren, ligt in het zuidoosten van Friesland aan de Elfstedenroute en nabij meerdere Friese meren. Het dorp met zijn rijke geschiedenis, ontstaan rond 1300 bij een eenvoudige balkbrug over de Luts, groeide vooral tussen de 15e en 18e eeuw dankzij de boterhandel, wat leidde tot vele monumentale panden en een beschermd dorpsgezicht. De drie karakteristieke kerken, oude bruggen over de Luts, het voormalige raadhuis en fraaie woningen met klok- en trapgevels bepalen nog altijd het charmante dorpsbeeld. Dankzij de waterrijke omgeving is Balk bovendien een geliefde uitvalsbasis voor watersporters, wandelaars en fietsers.
Zodra je binnenkomt, valt direct de ruime hal op, met toegang tot het toilet, de meterkast (voorzien van glasvezel) en de trap naar boven. De woning is uitstekend voorbereid op gelijkvloers wonen – in de multifunctionele kamer op de begane grond kun je eenvoudig een slaapkamer en zelfs een badkamer realiseren. Dat maakt dit huis levensloopbestendig.
De woonkamer is royaal en licht dankzij de grote ramen en de aluminium schuifpui naar de tuin. Hier geniet je van een mooi uitzicht op het groen en de verzorgde achtertuin met zitkuil.
De keuken (bouwjaar 1994) is degelijk en functioneel, met een gaskookplaat, inbouwkoelkast en vaatwasser. Aangrenzend bevindt zich de bijkeuken met witgoedaansluitingen, vaste kasten en een extra wastafel. Praktisch en netjes afgewerkt.
Dan de vrijstaande garage. Deze is voorzien van een betonnen vloer, elektrische deur en een vliering die via een vlizotrap bereikbaar is. Perfect voor de auto, hobby’s of extra opslag.
Op de eerste verdieping vind je maar liefst vijf slaapkamers, een ruime overloop en de badkamer. De badkamer is compleet uitgerust met een ligbad, douche, wastafel en toilet. Vanuit één van de slaapkamers is toegang tot het balkon, waar je kunt genieten van de zon en het uitzicht.
De tweede verdieping is bereikbaar via een vlizotrap. Hier vind je een ruime zolder met daglicht en de CV-installatie (2015). Ideaal als bergruimte of om verder in te richten.
Goed om te weten:
- Houten kozijnen, in 2023 volledig geschilderd;
- CV-installatie uit 2015;
- Energielabel B;
- Ruime zolder met daglicht;
- Overkapping aan de garage (ca. 2015);
Balk
Balk, sinds 2014 onderdeel van de gemeente De Friese Meren, ligt in het zuidoosten van Friesland aan de Elfstedenroute en nabij meerdere Friese meren. Het dorp met zijn rijke geschiedenis, ontstaan rond 1300 bij een eenvoudige balkbrug over de Luts, groeide vooral tussen de 15e en 18e eeuw dankzij de boterhandel, wat leidde tot vele monumentale panden en een beschermd dorpsgezicht. De drie karakteristieke kerken, oude bruggen over de Luts, het voormalige raadhuis en fraaie woningen met klok- en trapgevels bepalen nog altijd het charmante dorpsbeeld. Dankzij de waterrijke omgeving is Balk bovendien een geliefde uitvalsbasis voor watersporters, wandelaars en fietsers.

Anniek Siebring NVM Makelaar bestaande bouw
Stel een vraag
Bel mij terug




























































































































































