Leeuwarden Bordineweg 97
Omschrijving
vraagprijs
€ 274.000 k.k.
Kenmerken
Overdracht
| Status | beschikbaar |
|---|---|
| Prijs | € 274.000 k.k. |
Bouw
| Bouwjaar | 1963 |
|---|---|
| Bouwvorm | bestaande bouw |
| Type Object | Woonhuis |
| Hoofdfunctie | Woonruimte |
Indeling
| Woonoppervlakte | 86 m² |
|---|---|
| Perceeloppervlakte | 137 m² |
| Woning Inhoud | 289 m³ |
| Kamers | 5 (5 slaapkamers) |
Energie
| Energielabel | A |
|---|
Interesse?
Duurzaam gemoderniseerde tussenwoning met 4 slaapkamers in Nijlân
Wonen in een leuke duurzaam gemoderniseerde woning met verrassend lage energielasten? Deze fraaie tussenwoning in Nijlân combineert comfort, ruimte en toekomstbestendig wonen. Met een volledig vernieuwd en geïsoleerd dak, 9 zonnepanelen, nieuwe CV, een warmtepomp en een lage energierekening, is dit een huis dat helemaal klaar is voor de toekomst.
Aan de rand van de ruim opgezette en groene woonwijk Nijlân staat deze uitstekend onderhouden tussenwoning op eigen grond. De woning is de afgelopen jaren op belangrijke punten vernieuwd en verduurzaamd, wat zorgt voor een comfortabel woonklimaat én lage maandlasten. De woning beschikt over een vrijstaande stenen berging, een onderhoudsvriendelijke voor- en achtertuin en vier slaapkamers. De lichte woonkamer is voorzien van een massief houten vloer en staat in open verbinding met de keuken. De keuken is recent opgefrist en vormt een fijne, open leefruimte.
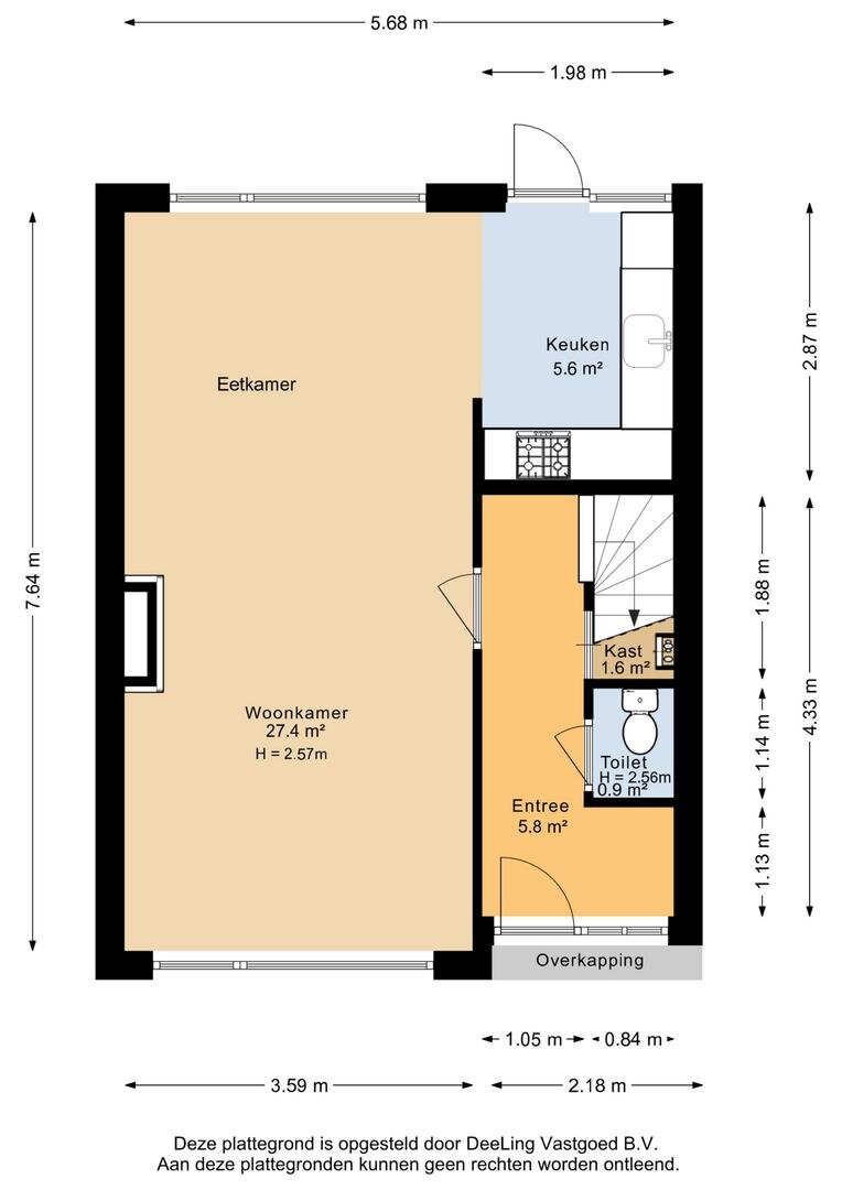
Begane grond
Entree/hal met trapopgang, toilet en trapkast met vernieuwde meterkast (3-fasen). De lichte woonkamer van circa 27 m² is voorzien van een massief houten vloer en biedt een open verbinding met de keuken. Vanuit de woonkamer geniet je van een vrij en groen uitzicht, wat bijdraagt aan een ruimtelijk en prettig woongevoel. De keuken is uitgevoerd in een hoekopstelling en voorzien van inbouwapparatuur, waaronder een vaatwasser, 4-pits gaskookplaat, afzuigkap en koelkast.
Eerste verdieping
Overloop met bergruimte. Aan de achterzijde bevinden zich de eerste en tweede slaapkamer van circa 6 m² en 10 m², waarvan één is voorzien van een vaste kast. De badkamer beschikt over een douchecabine en wastafel. Aan de voorzijde bevinden zich de derde kamer met cv-opstelling en wasmachineaansluiting, evenals de vierde slaapkamer van circa 10 m² met vaste kast.
De Bordineweg ligt in de groene wijk Nijlân. Naast veel groen, speelfaciliteiten en een heerlijke wandelroute langs het Van Harinxmakanaal beschikt de wijk over een winkelcentrum, scholen en sportcomplexen. De wijk is uitstekend bereikbaar per openbaar vervoer. Het centraal station en de gezellige binnenstad bevinden zich op 10 minuten fietsen. De wijk Nijlân ligt zeer gunstig ten opzichte van de haak om Leeuwarden. Binnen enkele minuten bereik je diverse uitvalswegen zoals de N31, A31 en A32.
Algemeen
Gebruiksoppervlakte wonen: 86 m²
Perceeloppervlakte: 137 m² eigen grond
Volledig vernieuwd en geïsoleerd dak met nieuw dakleer
Voorzien van 9 zonnepanelen
Warmtepomp aanwezig
Nieuwe cv-ketel
Vernieuwde meterkast (3-fasen)
Nieuwe radiatoren op de begane grond
Massief houten vloer in de woonkamer
Grotendeels voorzien van HR++ beglazing
Lage energielasten (circa €70 per maand)
Je bent van harte welkom om deze leuke en duurzame woning te komen bekijken!
Wonen in een leuke duurzaam gemoderniseerde woning met verrassend lage energielasten? Deze fraaie tussenwoning in Nijlân combineert comfort, ruimte en toekomstbestendig wonen. Met een volledig vernieuwd en geïsoleerd dak, 9 zonnepanelen, nieuwe CV, een warmtepomp en een lage energierekening, is dit een huis dat helemaal klaar is voor de toekomst.
Aan de rand van de ruim opgezette en groene woonwijk Nijlân staat deze uitstekend onderhouden tussenwoning op eigen grond. De woning is de afgelopen jaren op belangrijke punten vernieuwd en verduurzaamd, wat zorgt voor een comfortabel woonklimaat én lage maandlasten. De woning beschikt over een vrijstaande stenen berging, een onderhoudsvriendelijke voor- en achtertuin en vier slaapkamers. De lichte woonkamer is voorzien van een massief houten vloer en staat in open verbinding met de keuken. De keuken is recent opgefrist en vormt een fijne, open leefruimte.
Begane grond
Entree/hal met trapopgang, toilet en trapkast met vernieuwde meterkast (3-fasen). De lichte woonkamer van circa 27 m² is voorzien van een massief houten vloer en biedt een open verbinding met de keuken. Vanuit de woonkamer geniet je van een vrij en groen uitzicht, wat bijdraagt aan een ruimtelijk en prettig woongevoel. De keuken is uitgevoerd in een hoekopstelling en voorzien van inbouwapparatuur, waaronder een vaatwasser, 4-pits gaskookplaat, afzuigkap en koelkast.
Eerste verdieping
Overloop met bergruimte. Aan de achterzijde bevinden zich de eerste en tweede slaapkamer van circa 6 m² en 10 m², waarvan één is voorzien van een vaste kast. De badkamer beschikt over een douchecabine en wastafel. Aan de voorzijde bevinden zich de derde kamer met cv-opstelling en wasmachineaansluiting, evenals de vierde slaapkamer van circa 10 m² met vaste kast.
De Bordineweg ligt in de groene wijk Nijlân. Naast veel groen, speelfaciliteiten en een heerlijke wandelroute langs het Van Harinxmakanaal beschikt de wijk over een winkelcentrum, scholen en sportcomplexen. De wijk is uitstekend bereikbaar per openbaar vervoer. Het centraal station en de gezellige binnenstad bevinden zich op 10 minuten fietsen. De wijk Nijlân ligt zeer gunstig ten opzichte van de haak om Leeuwarden. Binnen enkele minuten bereik je diverse uitvalswegen zoals de N31, A31 en A32.
Algemeen
Gebruiksoppervlakte wonen: 86 m²
Perceeloppervlakte: 137 m² eigen grond
Volledig vernieuwd en geïsoleerd dak met nieuw dakleer
Voorzien van 9 zonnepanelen
Warmtepomp aanwezig
Nieuwe cv-ketel
Vernieuwde meterkast (3-fasen)
Nieuwe radiatoren op de begane grond
Massief houten vloer in de woonkamer
Grotendeels voorzien van HR++ beglazing
Lage energielasten (circa €70 per maand)
Je bent van harte welkom om deze leuke en duurzame woning te komen bekijken!
Plan bezichtiging
voor: Bordineweg 97
Stel een vraag
Bel mij terug


































































































