Leeuwarden Beethovenstraat 13
Omschrijving
vraagprijs
€ 330.000 k.k.
Kenmerken
Overdracht
Status | beschikbaar |
---|---|
Prijs | € 330.000 k.k. |
Bouw
Bouwjaar | 1930 |
---|---|
Bouwvorm | bestaande bouw |
Type Object | Woonhuis |
Hoofdfunctie | Woonruimte |
Indeling
Woonoppervlakte | 113 m² |
---|---|
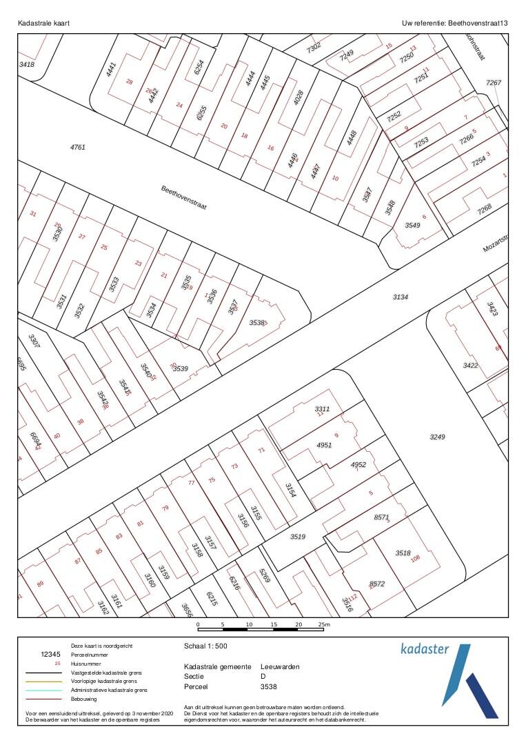
Perceeloppervlakte | 179 m² |
Woning Inhoud | 427 m³ |
Kamers | 4 (3 slaapkamers) |
Energie
Energielabel | F |
---|
Interesse?
In de Componistenbuurt vind je deze royale en karakteristieke jaren ‘30 hoekwoning op een heerlijke plek nabij speeltuin en winkels. Deze sfeervolle jaren ’30 woning combineert het beste van twee werelden: de charme van originele details zoals de erker en de eikenhouten vloer, én het comfort van een goed onderhouden en verzorgd thuis. Met 114 m² woonoppervlakte, drie ruime slaapkamers en een open indeling is er volop ruimte voor een gezin. Echt een plek waar je direct kunt neerstrijken en stap voor stap je eigen toekomst kunt vormgeven.
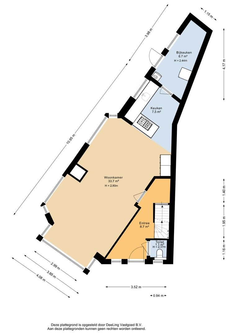
Begane grond
Je komt binnen in de hal met rechts het toilet, de trapopgang en een kelderkast. De lichte woonkamer straalt karakter uit dankzij de prachtige erker en de eikenhouten vloer. De open indeling geeft een fijne verbinding met de keuken, die is uitgerust met onder andere een combioven, inbouw-koffiezetapparaat, 5-pits gasfornuis, vaatwasser, koelkast en vriezer. Aansluitend bevindt zich de bijkeuken met de cv-ketel en plek voor bijvoorbeeld de fiets. Vanuit hier loop je zo naar buiten, waar rondom de woning plek is om te genieten. Aan de voorzijde ligt een vernieuwd terras, perfect voor een kop koffie in de ochtendzon. De tuin rondom is overzichtelijk aangelegd en voorzien van een nieuwe schutting met jasmijnheg !
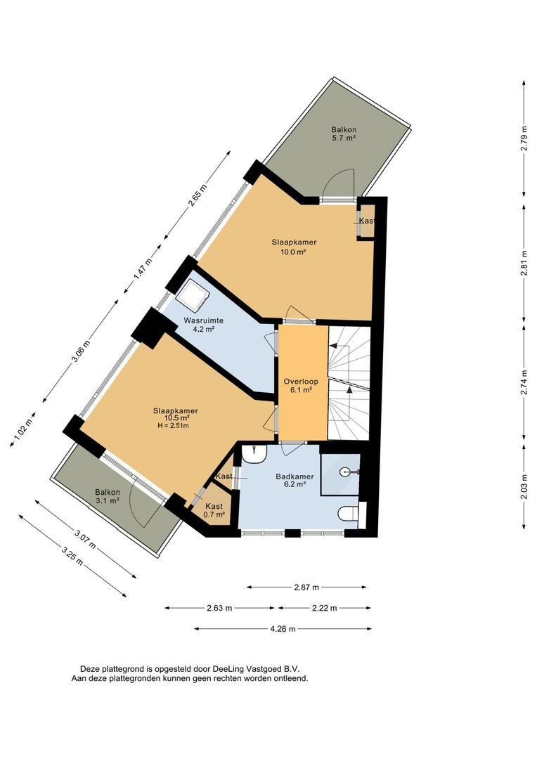
1e verdieping
De ruime overloop geeft toegang tot twee slaapkamers, een praktische wasruimte en de badkamer met inloopdouche, toilet en wastafel. De slaapkamer aan de voorzijde beschikt over een heerlijk balkon dankzij de opgetrokken erker, terwijl de slaapkamer aan de achterzijde toegang biedt tot het dakterras.
2e verdieping
De bovenste verdieping biedt een volwaardige extra slaapkamer, maar is ook een prima thuiswerkplek of speelkamer.
Kenmerken
- Bouwjaar 1930
- Woonoppervlakte 114 m²
- Energielabel F en goede mogelijkheden voor verbetering
- Dakisolatie en dubbele beglazingen
- Verdiepingsvloeren zijn voorzien van isolatie
- Zowel fraaie kunststof (2023) als houten kozijnen
- Eikenhouten vloer op de begane grond
- Vernieuwde badkamer met vloerverwarming (2018)
- Boeidelen kunststof, dakgoten en schilderwerk vernieuwd (2025)
- Mooie tuinaanleg van 2024
- Vernieuwde keuken met moderne afwerking en luxe inbouwapparatuur (2021)
- Kelder aanwezig, handig voor voorraad of wijncollectie
Wijk
De woning ligt in de geliefde Componistenbuurt, ook wel bekend als het Valeriuskwartier. Een buurt met sfeervolle jaren ’30 woningen, brede straten en een gemoedelijke sfeer. Hier woont u rustig, maar wel met alles dichtbij: supermarkt, scholen en sportvoorzieningen op loopafstand en het centrum van Leeuwarden slechts een paar minuten fietsen. Een buurt waar kinderen nog buiten spelen en u de voordelen van de stad combineert met de gezelligheid van een hechte wijk. In deze brede straat is genoeg parkeergelegenheid voor de deur.
Wees er snel bij en kom een kijkje nemen !
Begane grond
Je komt binnen in de hal met rechts het toilet, de trapopgang en een kelderkast. De lichte woonkamer straalt karakter uit dankzij de prachtige erker en de eikenhouten vloer. De open indeling geeft een fijne verbinding met de keuken, die is uitgerust met onder andere een combioven, inbouw-koffiezetapparaat, 5-pits gasfornuis, vaatwasser, koelkast en vriezer. Aansluitend bevindt zich de bijkeuken met de cv-ketel en plek voor bijvoorbeeld de fiets. Vanuit hier loop je zo naar buiten, waar rondom de woning plek is om te genieten. Aan de voorzijde ligt een vernieuwd terras, perfect voor een kop koffie in de ochtendzon. De tuin rondom is overzichtelijk aangelegd en voorzien van een nieuwe schutting met jasmijnheg !
1e verdieping
De ruime overloop geeft toegang tot twee slaapkamers, een praktische wasruimte en de badkamer met inloopdouche, toilet en wastafel. De slaapkamer aan de voorzijde beschikt over een heerlijk balkon dankzij de opgetrokken erker, terwijl de slaapkamer aan de achterzijde toegang biedt tot het dakterras.
2e verdieping
De bovenste verdieping biedt een volwaardige extra slaapkamer, maar is ook een prima thuiswerkplek of speelkamer.
Kenmerken
- Bouwjaar 1930
- Woonoppervlakte 114 m²
- Energielabel F en goede mogelijkheden voor verbetering
- Dakisolatie en dubbele beglazingen
- Verdiepingsvloeren zijn voorzien van isolatie
- Zowel fraaie kunststof (2023) als houten kozijnen
- Eikenhouten vloer op de begane grond
- Vernieuwde badkamer met vloerverwarming (2018)
- Boeidelen kunststof, dakgoten en schilderwerk vernieuwd (2025)
- Mooie tuinaanleg van 2024
- Vernieuwde keuken met moderne afwerking en luxe inbouwapparatuur (2021)
- Kelder aanwezig, handig voor voorraad of wijncollectie
Wijk
De woning ligt in de geliefde Componistenbuurt, ook wel bekend als het Valeriuskwartier. Een buurt met sfeervolle jaren ’30 woningen, brede straten en een gemoedelijke sfeer. Hier woont u rustig, maar wel met alles dichtbij: supermarkt, scholen en sportvoorzieningen op loopafstand en het centrum van Leeuwarden slechts een paar minuten fietsen. Een buurt waar kinderen nog buiten spelen en u de voordelen van de stad combineert met de gezelligheid van een hechte wijk. In deze brede straat is genoeg parkeergelegenheid voor de deur.
Wees er snel bij en kom een kijkje nemen !

Jan Ypeij NVM Makelaar bestaande bouw
Plan bezichtiging
voor: Beethovenstraat 13
Stel een vraag
Bel mij terug












































































































