Hoornsterzwaag 10e Wyk 4
Omschrijving
vraagprijs
€ 935.000 k.k.
Kenmerken
Overdracht
| Status | beschikbaar |
|---|---|
| Prijs | € 935.000 k.k. |
Bouw
| Bouwjaar | 1930 |
|---|---|
| Bouwvorm | bestaande bouw |
| Type Object | Woonhuis |
| Hoofdfunctie | Woonruimte |
Indeling
| Woonoppervlakte | 145 m² |
|---|---|
| Perceeloppervlakte | 1365 m² |
| Woning Inhoud | 535 m³ |
| Kamers | 4 (2 slaapkamers) |
Energie
| Energielabel | A |
|---|
Interesse?
Een stijlvol verbouwde woning met royale tuin, multifunctioneel bijgebouw en modern wooncomfort. Op een prachtige locatie aan de 10e Wyk in Hoornsterzwaag staat deze volledig gerenoveerde vrijstaande woning op een riant perceel van 1.365 m². Hier ervaart u de rust van het Friese buitenleven in combinatie met hedendaags comfort en duurzaamheid. De woning is de afgelopen jaren grondig vernieuwd en beschikt over een energielabel A, 17 zonnepanelen, vloerverwarming op de begane grond en een recente aanbouw die de leefruimte vergroot. Het geheel straalt kwaliteit en eigentijdse luxe uit, met oog voor detail en functionaliteit.
Indeling
Begane grond:
Via de zijentree met overkapping betreedt u de woning. De hal met toilet en bijkeuken geeft toegang tot de moderne badkamer met ligbad en inloopdouche. De royale woonkamer met airconditioning is voorzien van een open trap naar de verdieping, dubbele openslaande deuren naar de tuin en sluit aan op de keuken. Deze keuken is recent vernieuwd en uitgerust met moderne inbouwapparatuur.
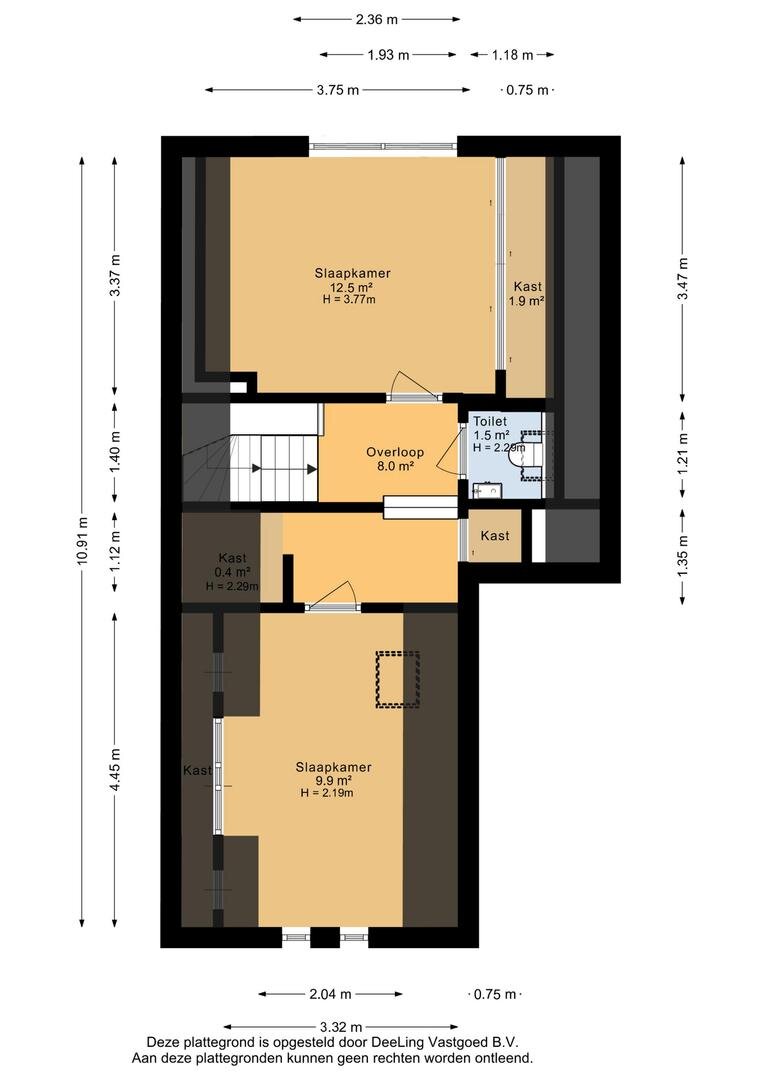
Eerste verdieping:
De verdieping beschikt over twee slaapkamers (waarvan 1 met airconditioning), een overloop met toilet en praktische bergkasten.
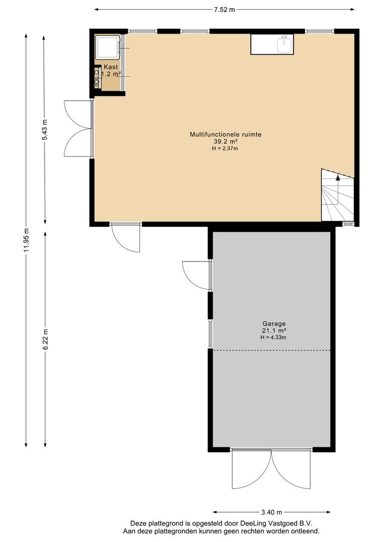
Bijgebouw:
Op het perceel bevindt zich een volledig geïsoleerd bijgebouw met vloerverwarming, ideaal als gastenverblijf, kantoor of atelier. De multifunctionele ruimte is voorzien van een vliering en biedt talloze gebruiksmogelijkheden.
Garage:
Daarnaast is er een ruime garage met openslaande deuren, geschikt voor 1 auto.
Pluspunten op een rij:
- Vrijstaande woning op 1.365 m² eigen grond.
- Recent compleet verbouwd en gemoderniseerd.
- Vloerverwarming op de begane grond en in bijgebouw.
- Airconditioning in woonkamer en 1 slaapkamer.
- Voorzien van 17 zonnepanelen en energielabel A.
- Multifunctioneel bijgebouw, volledig geïsoleerd.
- Royale woonkamer met aanbouw en openslaande tuindeuren.
Omgeving – Hoornsterzwaag
Hoornsterzwaag is een karakteristiek lintdorp in de gemeente Heerenveen, gelegen in een landelijke en groene omgeving. Hier combineert u het plezier van wonen in de luwte met de nabijheid van voorzieningen. Het dorp ligt op korte afstand van Heerenveen, waar u een compleet aanbod aan winkels, scholen, sport en cultuur vindt. De omgeving nodigt uit tot wandelen, fietsen en genieten van de natuur. Dankzij de centrale ligging in Friesland zijn uitvalswegen richting Drachten, Leeuwarden en Zwolle uitstekend bereikbaar.
Indeling
Begane grond:
Via de zijentree met overkapping betreedt u de woning. De hal met toilet en bijkeuken geeft toegang tot de moderne badkamer met ligbad en inloopdouche. De royale woonkamer met airconditioning is voorzien van een open trap naar de verdieping, dubbele openslaande deuren naar de tuin en sluit aan op de keuken. Deze keuken is recent vernieuwd en uitgerust met moderne inbouwapparatuur.
Eerste verdieping:
De verdieping beschikt over twee slaapkamers (waarvan 1 met airconditioning), een overloop met toilet en praktische bergkasten.
Bijgebouw:
Op het perceel bevindt zich een volledig geïsoleerd bijgebouw met vloerverwarming, ideaal als gastenverblijf, kantoor of atelier. De multifunctionele ruimte is voorzien van een vliering en biedt talloze gebruiksmogelijkheden.
Garage:
Daarnaast is er een ruime garage met openslaande deuren, geschikt voor 1 auto.
Pluspunten op een rij:
- Vrijstaande woning op 1.365 m² eigen grond.
- Recent compleet verbouwd en gemoderniseerd.
- Vloerverwarming op de begane grond en in bijgebouw.
- Airconditioning in woonkamer en 1 slaapkamer.
- Voorzien van 17 zonnepanelen en energielabel A.
- Multifunctioneel bijgebouw, volledig geïsoleerd.
- Royale woonkamer met aanbouw en openslaande tuindeuren.
Omgeving – Hoornsterzwaag
Hoornsterzwaag is een karakteristiek lintdorp in de gemeente Heerenveen, gelegen in een landelijke en groene omgeving. Hier combineert u het plezier van wonen in de luwte met de nabijheid van voorzieningen. Het dorp ligt op korte afstand van Heerenveen, waar u een compleet aanbod aan winkels, scholen, sport en cultuur vindt. De omgeving nodigt uit tot wandelen, fietsen en genieten van de natuur. Dankzij de centrale ligging in Friesland zijn uitvalswegen richting Drachten, Leeuwarden en Zwolle uitstekend bereikbaar.

Tycho Reimers NVM Makelaar bestaande bouw
Plan bezichtiging
voor: 10e Wyk 4
Stel een vraag
Bel mij terug



























































































































































