Nieuwbouw Pioniers van Middelsee - Het Gemaal
Peter Noordraven

Interesse in dit project of informatie over dit project?

Neem contact op

Pioniers van Middelsee - Het Gemaal

Meer weten over dit project? Bekijk ook eens de projectwebsite.

Projectwebsite bekijken
Pioniers van Middelsee - Het Gemaal



De woningen van Het gemaal hebben dat herkenbare, stoere karakter dat je verwacht bij een oud stoomgemaal - meer dan nieuw, comfortabel en helemaal van nu. De 10 woningen van Het Gemaal delen dezelfde plattegrond, maar verschillen in breedte. 4 Woningen springen er extra uit door de mooie topgevel.



Binnen veel lichtinval, dankzij de hoge ramen. Vanuit de woonkamer openen twee deuren rechtstreeks naar je terras aan het water, pal op het zuiden. Je zit hier letterlijk aan de kade, met de gracht en het kabbelende water als je vaste uitzicht. Aan de voorkant heb je een eigen voortuin met een fietsen berging én een parkeerplek op eigen terrein.



Duurzaam en toekomstbestendig

Goed om te weten: doordat de woningen extra duurzaam zijn (A++++) profiteer je bij het afsluiten van je hypotheek van een rentevoordeel en kun je iets meer lenen. De woningen zijn extra duurzaam doordat tijdens de bouw gebruik wordt gemaakt van natuurlijke en hernieuwbare grondstoffen.

• Verwarming door aardwarmte

• Topkoeling (brengt zomers de temperatuur in huis enkele graden naar beneden)

• 7–10 Zonnepanelen per woning (afhankelijk van het woningtype)

• A++++ label met groenverklaring



Kenmerken:

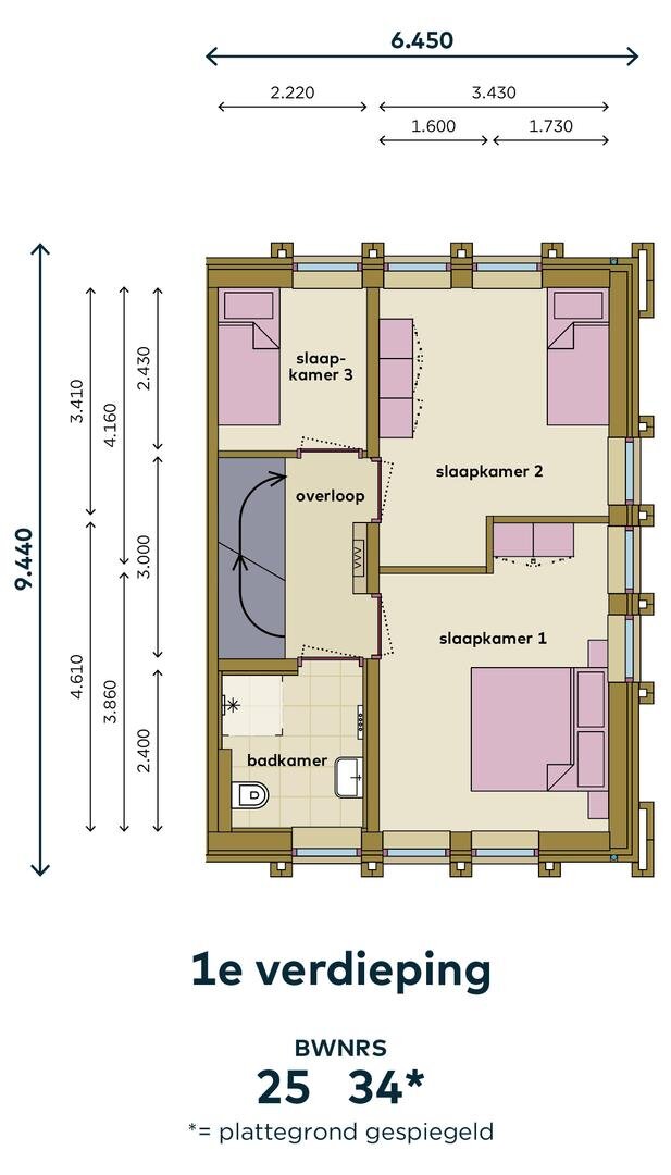
- woonoppervlakte van 157 m² tot 171 m²

- 4 slaapkamers

- beukmaat van 5,7, 6 of 6,3 meter



Heb je vragen? Laat dan je gegevens achter op de projectwebsite, of neem contact met ons op.
Lees meer Toon minder

Woningtypes

Het Gemaal

Prijs€ 455.000 - € 520.000
Kavel. Woonopp.Prijs (v.o.n.)Status
Bouwnummer 26 130 m2€ 455.000beschikbaar
Bouwnummer 25 142 m2€ 500.000verkocht onder voorbehoud
Bouwnummer 29 130 m2€ 455.000verkocht onder voorbehoud
Bouwnummer 28 137 m2€ 475.000beschikbaar
Bouwnummer 30 130 m2€ 455.000onder optie
Bouwnummer 31 137 m2€ 475.000verkocht onder voorbehoud
Bouwnummer 32 130 m2€ 455.000onder optie
Bouwnummer 34 142 m2€ 520.000onder optie
Bouwnummer 27 130 m2€ 455.000beschikbaar
Bouwnummer 33 130 m2€ 455.000verkocht onder voorbehoud

Planning

  1. Conceptfase
  2. Concept woningen
  3. Indeling kavels
  4. In verkoop
  5. Uitverkocht
  6. Start bouw
  7. Oplevering

Kaart

Interesse in nieuwbouwproject:
Pioniers van Middelsee - Het Gemaal?

*
*
*

Lees onze voorwaarden: Cookies, Disclaimer en Privacy