Nieuwbouw Park West: Het Verlaat
Peter Noordraven

Interesse in dit project of informatie over dit project?

Neem contact op

Park West: Het Verlaat

Het Verlaat

58 Appartementen



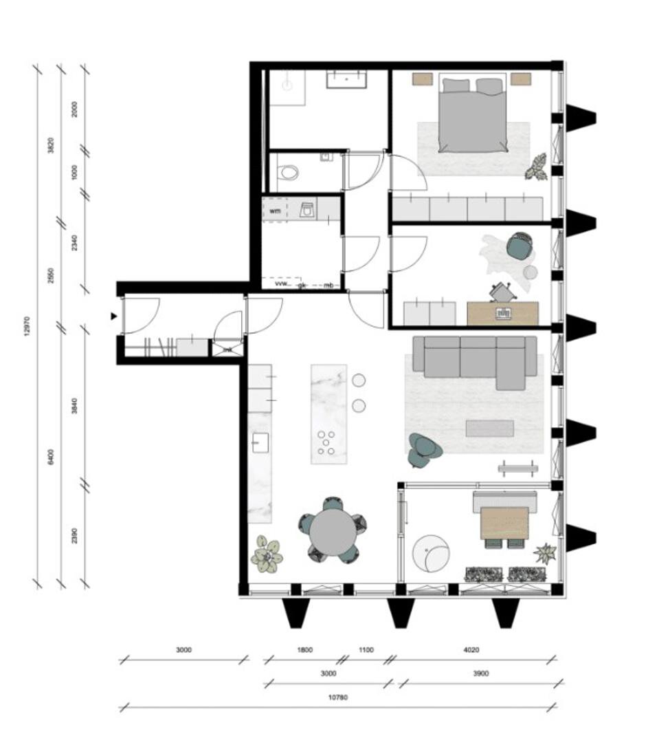
De woningtypes in Het Verlaat bestaan uit royale drie- en vierkamerappartementen met woonoppervlaktes van circa 56 tot 93 m² en Het Penthouse, verdeeld over 11 verdiepingen. De woningen zijn hoogwaardig afgewerkt en zijn al voorzien van een comfortabele badkamer, veelal met eigen buitenruimte in de vorm van een wintertuin en een berging. Parkeergelegenheid bevindt zich in de ondergrondse parkeergarage van het gebouw.



Met het station op vijf minuten loopafstand, het bruisende centrum om de hoek en de Harlingervaart voor de deur is dit niet zomaar een plek om te wonen. Dit is een plek om volop te leven, te genieten en tot rust te komen



Grandeur Bonnema icoon groeit door

Naast de Verlaatsbrug, net buiten de historische binnenstad van Leeuwarden, werd in 1971 door architect Abe Bonnema het Girokantoor gerealiseerd. Het Verlaat, met boven op de gevel het lichtkunstwerk ‘Schrijvende hand’ van kunstenares Marte Röling, deed dienst als kantoorgebouw van de Postcheque- en Girodienst, later Postbank en ING.



Nu, in 2024, is het tijd voor een nieuwe bestemming. En het goede nieuws is dat jij naar verwachting eind 2025 al kunt wonen in Het Verlaat. Wellicht vier jij volgend jaar dus oud en nieuw in jouw nieuwe appartement, met een fantastisch uitzicht op de binnenstad van Leeuwarden!



De herontwikkeling van het kantorencomplex start met de transformatie van Het Verlaat naar 58 royale appartementen en een uniek penthouse. Daarna volgen meer ontwikkelingen in deze nieuwste stadsbuurt van Leeuwarden: Park West, waar hoogwaardig wonen, werken en commerciële functies elkaar zullen ontmoeten en versterken.



Woon jij straks ook in dit icoon van Leeuwarden?

Wil jij ook in dit icoon van Leeuwarden wonen? Meld je dan nu aan om op de hoogte te blijven van de laatste ontwikkelingen.
Lees meer Toon minder

Woningtypes

appartement

Prijs€ 249.500 - € 595.000
Kavel. Woonopp.Prijs (v.o.n.)Status
appartement 01 56 m2€ 249.500verkocht
appartement 02 91 m2€ 420.000verkocht
appartement 03 91 m2€ 420.000beschikbaar
appartement 04 56 m2€ 260.000verkocht
appartement 05 93 m2€ 395.000beschikbaar
appartement 06 93 m2€ 420.000beschikbaar
appartement 07 56 m2€ 249.500onder optie
appartement 08 91 m2€ 420.000verkocht onder voorbehoud
appartement 09 91 m2€ 420.000verkocht
appartement 10 56 m2€ 260.000verkocht
appartement 11 93 m2€ 425.000verkocht
appartement 12 93 m2€ 420.000beschikbaar
appartement 13 56 m2€ 249.500verkocht
appartement 14 91 m2€ 420.000verkocht onder voorbehoud
appartement 15 91 m2€ 420.000verkocht
appartement 17 93 m2€ 395.000verkocht
appartement 18 93 m2€ 420.000beschikbaar
appartement 19 56 m2€ 249.500verkocht
appartement 20 91 m2€ 420.000verkocht
appartement 21 91 m2€ 420.000verkocht
appartement 22 56 m2€ 260.000verkocht
appartement 23 93 m2€ 425.000beschikbaar
appartement 24 93 m2€ 420.000beschikbaar
appartement 25 56 m2€ 265.000onder optie
appartement 26 91 m2€ 430.000verkocht
appartement 27 91 m2€ 430.000verkocht
appartement 28 56 m2€ 270.000verkocht
appartement 29 93 m2€ 435.000beschikbaar
appartement 30 93 m2€ 430.000beschikbaar
appartement 31 56 m2€ 265.000verkocht onder voorbehoud
appartement 32 91 m2€ 430.000verkocht onder voorbehoud
appartement 33 91 m2€ 430.000verkocht
appartement 34 56 m2€ 270.000verkocht
appartement 35 93 m2€ 435.000verkocht
appartement 36 93 m2€ 420.000beschikbaar
appartement 37 56 m2€ 275.000verkocht
appartement 38 91 m2€ 435.000verkocht onder voorbehoud
appartement 39 91 m2€ 435.000verkocht onder voorbehoud
appartement 40 56 m2€ 280.000verkocht
appartement 41 93 m2€ 445.000verkocht
appartement 42 93 m2€ 440.000verkocht onder voorbehoud
appartement 43 56 m2€ 280.000verkocht
appartement 44 91 m2€ 435.000verkocht
appartement 45 91 m2€ 435.000verkocht
appartement 46 56 m2€ 285.000onder optie
appartement 47 93 m2€ 430.000verkocht
appartement 48 93 m2€ 440.000verkocht
appartement 49 56 m2€ 285.000onder optie
appartement 52 118 m2€ 595.000verkocht
appartement 53 93 m2€ 435.000verkocht
appartement 54 56 m2€ 285.000onder optie
appartement 55 91 m2€ 445.000verkocht onder voorbehoud
appartement 56 116 m2€ 575.000beschikbaar
appartement 57 118 m2€ 585.000beschikbaar
appartement 58 93 m2€ 435.000onder optie

Planning

  1. Conceptfase
  2. Concept woningen
  3. Indeling kavels
  4. In verkoop
  5. Uitverkocht
  6. Start bouw
  7. Oplevering

Kaart

Interesse in nieuwbouwproject:
Park West: Het Verlaat?

*
*
*

Lees onze voorwaarden: Cookies, Disclaimer en Privacy