Heerenveen Businesspark Friesland-West 25-A
Omschrijving
huurprijs
€ 80.000,00 p.j
Kenmerken
Overdracht
| Status | beschikbaar |
|---|---|
| Prijs | € 80.000,00 p.j |
Bouw
| Bouwvorm | nieuwbouw |
|---|---|
| Hoofdfunctie | bedrijfsruimte |
Energie
| Energielabel | A++++ |
|---|
Interesse?
Op prachtige zichtlocatie vanaf de snelweg A-7 gelegen recent gebouwd vrijstaande bedrijfspanden met kantoorruimte gelegen op bedrijventerrein Businesspark Friesland-West. Het pand is in 2022 gebouwd en heeft een nette en representatieve uitstraling en inrichting. Op het buitenterrein zijn voldoende parkeervoorzieningen gerealiseerd.
Locatie
Het bedrijventerrein Businesspark Friesland West is gelegen aan de noordwestzijde van Heerenveen. Op het bedrijventerrein is een diversiteit aan bedrijven gevestigd met zowel kantoor, bedrijf alsmede showroom functies.
Bereikbaarheid
Het bedrijventerrein is goed bereikbaar vanaf het “klaverblad Heerenveen” (snelwegen A-7 en A-32). Op circa 850 meter is een bushalte gelegen die in directe verbinding staat met treinstation Heerenveen.
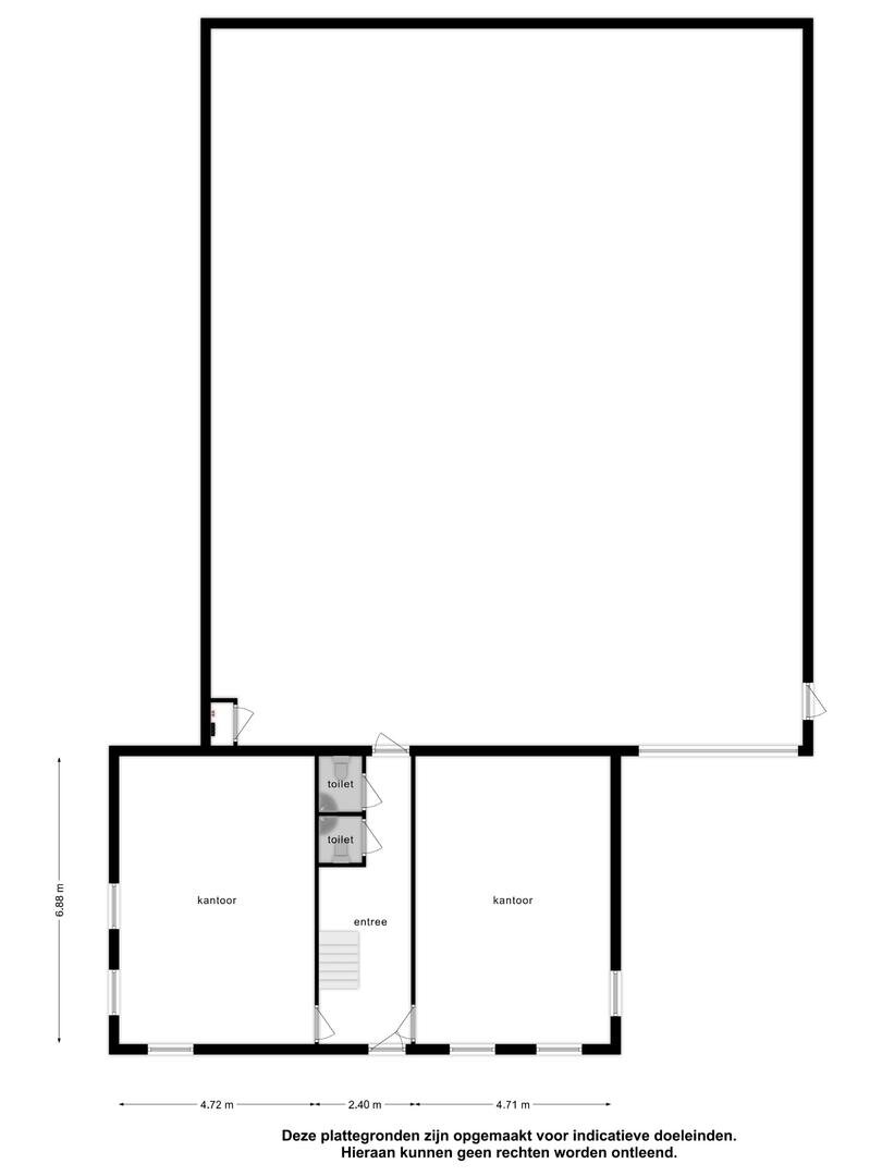
Oppervlakte
Gebouw I
Totale oppervlakte circa 520 m² verdeeld over:
Begane grond:
Kantoorruimte: circa 80 m²
Bedrijfsruimte: circa 270 m²
Eerste verdieping:
Kantoorruimte: circa 80 m²
Magazijnruimte/opslagruimte: circa 90 m²
Gebouw II
Totale oppervlakte circa 365 m² bedrijfsruimte.
Voorzieningen
- pantry met inbouwkoelkast, vaatwasser en warmwatervoorziening
- 2 toiletten
- luchtwarmtepomp
- kamerindeling
- systeemplafond met ledverlichting
- inbouwarmaturen
- vloerverwarming
- kabelgoten t.b.v. data, telefonie en elektra
- luchtbehandeling/mechanische ventilatie
- betonnen vloer
- overheaddeur
- krachtstroominstallatie
- vrije hoogte: 6,0 meter
- buitenterrein t.b.v. o.a. parkeren
Bestemming
Bestemmingsplan: “Businesspark Friesland”.
Bestemming: “bedrijventerrein, o.a. bedrijven t/m categorie 3.1”.
HUURVOORWAARDEN
Vraaghuurprijs
€ 80.000,= per jaar, te vermeerderen met BTW
Huurtermijn
5 + 5 jaar
Aanvaarding
In overleg.
Bankgarantie/waarborgsom
Ter grootte van 3 maanden huur te vermeerderen met BTW
Betalingswijze
De huur dient per maand bij vooruitbetaling te worden voldaan
Indexering
Jaarlijks conform de consumentenprijsindex reeks CPI-alle huishoudens 2015=100
Huurovereenkomst
Standaard R.O.Z. Model met aanvullende bepalingen
Voorbehoud
Verhuur geschiedt onder voorbehoud goedkeuring verhuurder.
Bijzonderheden
Bezichtigingen uitsluitend op afspraak via RBMT bedrijfsmakelaars & taxateurs.
Meer informatie over dit object?
Voor meer informatie en/of het maken van een afspraak kunt u contact opnemen Tjibbe-Jan Boringa, Jeroen van Reenen, Levi Huijser of Linda van Es, telefoon 0513 - 644 355 of 058-20 40 000 of stuur een e-mail naar info @ rbmt. nl.
DISCLAIMER
Deze informatie (inclusief bijlagen) van "RBMT Bedrijfsmakelaars & Taxateurs Noord-Nederland B.V. " is met grote zorgvuldigheid samengesteld. Voor mogelijke onjuistheid en/of onvolledigheid van de verstrekte informatie kan "RBMT Bedrijfsmakelaars & Taxateurs Noord-Nederland B.V. " geen aansprakelijkheid aanvaarden, evenmin kunnen aan de inhoud van deze informatie (inclusief bijlagen) rechten worden ontleend. Deze informatie is geheel vrijblijvend en niet meer dan een uitnodiging tot het doen van een voorstel.
Locatie
Het bedrijventerrein Businesspark Friesland West is gelegen aan de noordwestzijde van Heerenveen. Op het bedrijventerrein is een diversiteit aan bedrijven gevestigd met zowel kantoor, bedrijf alsmede showroom functies.
Bereikbaarheid
Het bedrijventerrein is goed bereikbaar vanaf het “klaverblad Heerenveen” (snelwegen A-7 en A-32). Op circa 850 meter is een bushalte gelegen die in directe verbinding staat met treinstation Heerenveen.
Oppervlakte
Gebouw I
Totale oppervlakte circa 520 m² verdeeld over:
Begane grond:
Kantoorruimte: circa 80 m²
Bedrijfsruimte: circa 270 m²
Eerste verdieping:
Kantoorruimte: circa 80 m²
Magazijnruimte/opslagruimte: circa 90 m²
Gebouw II
Totale oppervlakte circa 365 m² bedrijfsruimte.
Voorzieningen
- pantry met inbouwkoelkast, vaatwasser en warmwatervoorziening
- 2 toiletten
- luchtwarmtepomp
- kamerindeling
- systeemplafond met ledverlichting
- inbouwarmaturen
- vloerverwarming
- kabelgoten t.b.v. data, telefonie en elektra
- luchtbehandeling/mechanische ventilatie
- betonnen vloer
- overheaddeur
- krachtstroominstallatie
- vrije hoogte: 6,0 meter
- buitenterrein t.b.v. o.a. parkeren
Bestemming
Bestemmingsplan: “Businesspark Friesland”.
Bestemming: “bedrijventerrein, o.a. bedrijven t/m categorie 3.1”.
HUURVOORWAARDEN
Vraaghuurprijs
€ 80.000,= per jaar, te vermeerderen met BTW
Huurtermijn
5 + 5 jaar
Aanvaarding
In overleg.
Bankgarantie/waarborgsom
Ter grootte van 3 maanden huur te vermeerderen met BTW
Betalingswijze
De huur dient per maand bij vooruitbetaling te worden voldaan
Indexering
Jaarlijks conform de consumentenprijsindex reeks CPI-alle huishoudens 2015=100
Huurovereenkomst
Standaard R.O.Z. Model met aanvullende bepalingen
Voorbehoud
Verhuur geschiedt onder voorbehoud goedkeuring verhuurder.
Bijzonderheden
Bezichtigingen uitsluitend op afspraak via RBMT bedrijfsmakelaars & taxateurs.
Meer informatie over dit object?
Voor meer informatie en/of het maken van een afspraak kunt u contact opnemen Tjibbe-Jan Boringa, Jeroen van Reenen, Levi Huijser of Linda van Es, telefoon 0513 - 644 355 of 058-20 40 000 of stuur een e-mail naar info @ rbmt. nl.
DISCLAIMER
Deze informatie (inclusief bijlagen) van "RBMT Bedrijfsmakelaars & Taxateurs Noord-Nederland B.V. " is met grote zorgvuldigheid samengesteld. Voor mogelijke onjuistheid en/of onvolledigheid van de verstrekte informatie kan "RBMT Bedrijfsmakelaars & Taxateurs Noord-Nederland B.V. " geen aansprakelijkheid aanvaarden, evenmin kunnen aan de inhoud van deze informatie (inclusief bijlagen) rechten worden ontleend. Deze informatie is geheel vrijblijvend en niet meer dan een uitnodiging tot het doen van een voorstel.
Plan bezichtiging
voor: Businesspark Friesland-West 25-A
Stel een vraag
Bel mij terug







































































