Leeuwarden Schrans 52
Omschrijving
vraagprijs
€ 250.000 k.k.
Kenmerken
Overdracht
| Status | beschikbaar |
|---|---|
| Prijs | € 250.000 k.k. |
Bouw
| Bouwvorm | bestaande bouw |
|---|---|
| Hoofdfunctie | belegging |
BELEGGING
| Beleggingstype | WINKELRUIMTE |
|---|---|
| Tonen Adres | 1 |
| Aantal Huurders | 1 |
| Bruto Aanvangsrendement | 7 |
| Aantal Zelfstandige Verhuurbare Eenheden | 1 |
| Oppervlakte | 89 m² |
Interesse?
Beleggingsobject: Schrans 52 te Leeuwarden
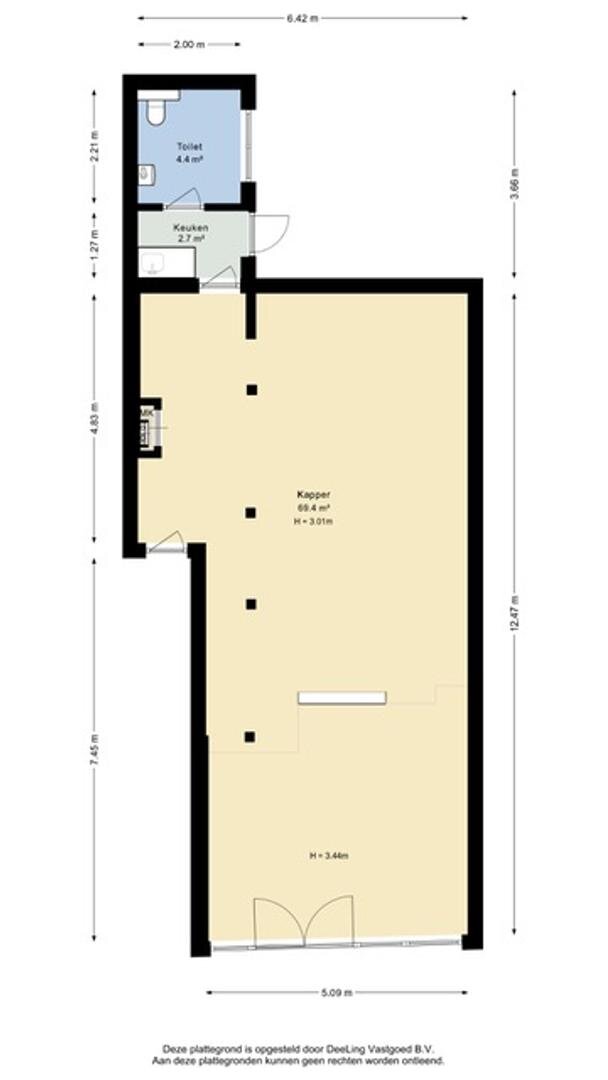
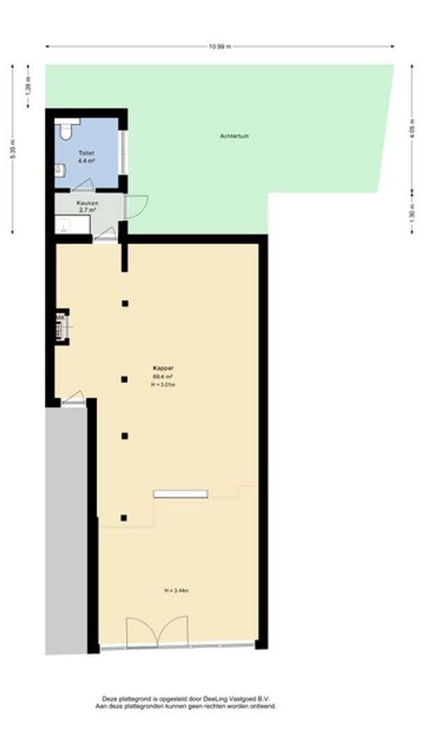
Aan de Schrans 52 te Leeuwarden bieden wij dit courante en volledig verhuurde winkelpand aan als beleggingsobject. Het betreft een representatieve commerciële ruimte van circa 90 m², gelegen aan één van de bekendste en drukstbezochte aanloopstraten van Leeuwarden. Het object is langdurig verhuurd aan een kapsalon en wordt verkocht in verhuurde staat.
Object
Het pand beschikt over een brede en representatieve voorgevel met dubbele toegangsdeur en grote raampartijen, wat zorgt voor uitstekende zichtbaarheid en veel daglichttoetreding. De commerciële ruimte aan de voorzijde is open en overzichtelijk ingedeeld en strekt zich diep uit naar de achterzijde van het pand.
Aan de achterzijde bevindt zich een keukenruimte met aansluitend toegang tot het toilet. Tevens is er toegang tot de achtergelegen tuin. Het geheel betreft een functioneel en courant winkelobject dat uitstekend geschikt is voor detailhandel en dienstverlening.
Locatie
Het object is gelegen aan de Schrans, één van de belangrijkste aanloopstraten van Leeuwarden. Deze straat vormt de verbinding tussen het stadscentrum en omliggende woonwijken en kent een constante stroom van winkelend publiek en passanten.
De Schrans staat bekend om haar gevarieerde aanbod van detailhandel, speciaalzaken, supermarkten en horecagelegenheden, wat zorgt voor een sterke commerciële dynamiek. De bereikbaarheid is uitstekend. Het centrum van Leeuwarden ligt op korte afstand en in de directe omgeving zijn diverse parkeervoorzieningen aanwezig. Daarnaast is de locatie goed bereikbaar per fiets, auto en openbaar vervoer.
De combinatie van zichtbaarheid, passantenstroom en een stabiele huurder maakt dit object aantrekkelijk voor beleggers die op zoek zijn naar een solide investering op een goede locatie in Leeuwarden.
Huurgegevens:
- Huurtermijn tot 01-09-2031
- Huurtermijn: 5 jaar
- Opzegtermijn: 6 maanden
Aan de Schrans 52 te Leeuwarden bieden wij dit courante en volledig verhuurde winkelpand aan als beleggingsobject. Het betreft een representatieve commerciële ruimte van circa 90 m², gelegen aan één van de bekendste en drukstbezochte aanloopstraten van Leeuwarden. Het object is langdurig verhuurd aan een kapsalon en wordt verkocht in verhuurde staat.
Object
Het pand beschikt over een brede en representatieve voorgevel met dubbele toegangsdeur en grote raampartijen, wat zorgt voor uitstekende zichtbaarheid en veel daglichttoetreding. De commerciële ruimte aan de voorzijde is open en overzichtelijk ingedeeld en strekt zich diep uit naar de achterzijde van het pand.
Aan de achterzijde bevindt zich een keukenruimte met aansluitend toegang tot het toilet. Tevens is er toegang tot de achtergelegen tuin. Het geheel betreft een functioneel en courant winkelobject dat uitstekend geschikt is voor detailhandel en dienstverlening.
Locatie
Het object is gelegen aan de Schrans, één van de belangrijkste aanloopstraten van Leeuwarden. Deze straat vormt de verbinding tussen het stadscentrum en omliggende woonwijken en kent een constante stroom van winkelend publiek en passanten.
De Schrans staat bekend om haar gevarieerde aanbod van detailhandel, speciaalzaken, supermarkten en horecagelegenheden, wat zorgt voor een sterke commerciële dynamiek. De bereikbaarheid is uitstekend. Het centrum van Leeuwarden ligt op korte afstand en in de directe omgeving zijn diverse parkeervoorzieningen aanwezig. Daarnaast is de locatie goed bereikbaar per fiets, auto en openbaar vervoer.
De combinatie van zichtbaarheid, passantenstroom en een stabiele huurder maakt dit object aantrekkelijk voor beleggers die op zoek zijn naar een solide investering op een goede locatie in Leeuwarden.
Huurgegevens:
- Huurtermijn tot 01-09-2031
- Huurtermijn: 5 jaar
- Opzegtermijn: 6 maanden
Plan bezichtiging
voor: Schrans 52
Stel een vraag
Bel mij terug







































