Leeuwarden Polluxweg 9-a
Omschrijving
huurprijs
€ 16.000,00 p.j
Kenmerken
Overdracht
| Status | beschikbaar |
|---|---|
| Prijs | € 16.000,00 p.j |
Bouw
| Bouwvorm | bestaande bouw |
|---|---|
| Hoofdfunctie | bedrijfsruimte |
Interesse?
Gelegen aan de Polluxweg op het bedrijvenpark de Hemrik aan de oostkant van Leeuwarden staat deze fraaie bedriijfsunit.
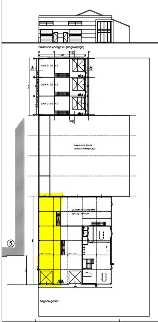
Op de begane grond is thans circa 115 m² b.v.o. en circa 112 m² b.v.o bedrijfsruimte te huur met een overheaddeur.
Locatie
Bedrijventerrein ‘De Hemrik’ in Leeuwarden is midden jaren ’70 ontstaan. Het bedrijventerrein, dat een gebied beslaat van circa 230 hectare, is gelegen aan de oostkant van Leeuwarden. Op het bedrijventerrein zijn veel bekende bedrijven gevestigd, zoals onder andere Bourguignon, Makro, Welkoop, Praxis, Gamma Bouwmarkt en diverse autodealers.
Oppervlakte
De totale bruto vloeroppervlakte bedraagt circa 227 m², verdeeld over;
- 115 m² bedrijfsruimte op de begane grond;
- 112 m² bedrijfsruimte op de entresol.
Bestemming: Enkelbestemming Bedrijventerrein – 2 met functieaanduiding tot categorie 4.2
Bestemmingsplan Leeuwarden - Industrieterrein Leeuwarden Oost en de Hemrik; vastgesteld op 30-09-2013.
HUURVOORWAARDEN
Vraaghuurprijs
€ 16.000,= per jaar, te vermeerderen met BTW en servicekosten.
Servicekosten
Huurder dient zelf zorg te dragen voor aansluitingen van de nutsvoorzieningen.
Huurtermijn
5 + 5 jaar (afwijkende perioden zijn bespreekbaar).
Aanvaarding
Per 15 juni 2026
Bankgarantie/waarborgsom
Ter grootte van 3 maanden huur te vermeerderen met BTW.
Betalingswijze
De huur dient per maand bij vooruitbetaling te worden voldaan.
Indexering
Jaarlijks conform de consumentenprijsindex reeks CPI-alle huishoudens 2015=100.
Huurovereenkomst
Standaard R.O.Z. Model (2015) met aanvullende bepalingen.
Bijzonderheden
Bezichtigingen uitsluitend op afspraak via RBMT bedrijfsmakelaars & taxateurs.
Meer informatie over dit object?
Voor meer informatie en/of het maken van een afspraak kunt u contact opnemen met Tjibbe-Jan Boringa, Jeroen van Reenen, Levi Huijser of Linda van Es, telefoon 0513 - 644 355 of 058-20 40 000 of stuur een e-mail naar info @ rbmt. nl.
DISCLAIMER
Deze informatie (inclusief bijlagen) van "RBMT Bedrijfsmakelaars & Taxateurs Noord-Nederland B.V. " is met grote zorgvuldigheid samengesteld. Voor mogelijke onjuistheid en/of onvolledigheid van de verstrekte informatie kan "RBMT Bedrijfsmakelaars & Taxateurs Noord-Nederland B.V. " geen aansprakelijkheid aanvaarden, evenmin kunnen aan de inhoud van deze informatie (inclusief bijlagen) rechten worden ontleend. Deze informatie is geheel vrijblijvend en niet meer dan een uitnodiging tot het doen van een voorstel.
Op de begane grond is thans circa 115 m² b.v.o. en circa 112 m² b.v.o bedrijfsruimte te huur met een overheaddeur.
Locatie
Bedrijventerrein ‘De Hemrik’ in Leeuwarden is midden jaren ’70 ontstaan. Het bedrijventerrein, dat een gebied beslaat van circa 230 hectare, is gelegen aan de oostkant van Leeuwarden. Op het bedrijventerrein zijn veel bekende bedrijven gevestigd, zoals onder andere Bourguignon, Makro, Welkoop, Praxis, Gamma Bouwmarkt en diverse autodealers.
Oppervlakte
De totale bruto vloeroppervlakte bedraagt circa 227 m², verdeeld over;
- 115 m² bedrijfsruimte op de begane grond;
- 112 m² bedrijfsruimte op de entresol.
Bestemming: Enkelbestemming Bedrijventerrein – 2 met functieaanduiding tot categorie 4.2
Bestemmingsplan Leeuwarden - Industrieterrein Leeuwarden Oost en de Hemrik; vastgesteld op 30-09-2013.
HUURVOORWAARDEN
Vraaghuurprijs
€ 16.000,= per jaar, te vermeerderen met BTW en servicekosten.
Servicekosten
Huurder dient zelf zorg te dragen voor aansluitingen van de nutsvoorzieningen.
Huurtermijn
5 + 5 jaar (afwijkende perioden zijn bespreekbaar).
Aanvaarding
Per 15 juni 2026
Bankgarantie/waarborgsom
Ter grootte van 3 maanden huur te vermeerderen met BTW.
Betalingswijze
De huur dient per maand bij vooruitbetaling te worden voldaan.
Indexering
Jaarlijks conform de consumentenprijsindex reeks CPI-alle huishoudens 2015=100.
Huurovereenkomst
Standaard R.O.Z. Model (2015) met aanvullende bepalingen.
Bijzonderheden
Bezichtigingen uitsluitend op afspraak via RBMT bedrijfsmakelaars & taxateurs.
Meer informatie over dit object?
Voor meer informatie en/of het maken van een afspraak kunt u contact opnemen met Tjibbe-Jan Boringa, Jeroen van Reenen, Levi Huijser of Linda van Es, telefoon 0513 - 644 355 of 058-20 40 000 of stuur een e-mail naar info @ rbmt. nl.
DISCLAIMER
Deze informatie (inclusief bijlagen) van "RBMT Bedrijfsmakelaars & Taxateurs Noord-Nederland B.V. " is met grote zorgvuldigheid samengesteld. Voor mogelijke onjuistheid en/of onvolledigheid van de verstrekte informatie kan "RBMT Bedrijfsmakelaars & Taxateurs Noord-Nederland B.V. " geen aansprakelijkheid aanvaarden, evenmin kunnen aan de inhoud van deze informatie (inclusief bijlagen) rechten worden ontleend. Deze informatie is geheel vrijblijvend en niet meer dan een uitnodiging tot het doen van een voorstel.
Plan bezichtiging
voor: Polluxweg 9-a
Stel een vraag
Bel mij terug







































