Leeuwarden Nieuwestad 34
Omschrijving
huurprijs
€ 22.800,00 p.j
Kenmerken
Overdracht
| Status | beschikbaar |
|---|---|
| Prijs | € 22.800,00 p.j |
Bouw
| Bouwvorm | bestaande bouw |
|---|---|
| Hoofdfunctie | winkelruimte |
Energie
| Energielabel | C |
|---|
WINKELRUIMTE
| Verkoop Vloeroppervlakte | 65 m² |
|---|---|
| Aantal Verdiepingen | 3 |
| Oppervlakte | 229 m² |
| Units Vanaf | 229 |
| Ter Overname | 1 |
| Detailhandel | 1 |
| Frontbreedte | 450 cm |
| Welstandsklasse | A1 |
Interesse?
Gelegen in het centrum van Leeuwarden, op A1-locatie, bevindt zich dit fraaie winkelpand. Het winkelpand is voorzien van een nieuwe voorgevel en beschikt over winkelruimte mét magazijnruimte op de begane grond, eerste én tweede verdieping.
In de directe omgeving zijn o.a. de Intersport, Appel en Ei, Dille & Kamille en diverse kledingzaken zijn gevestigd.
Indeling
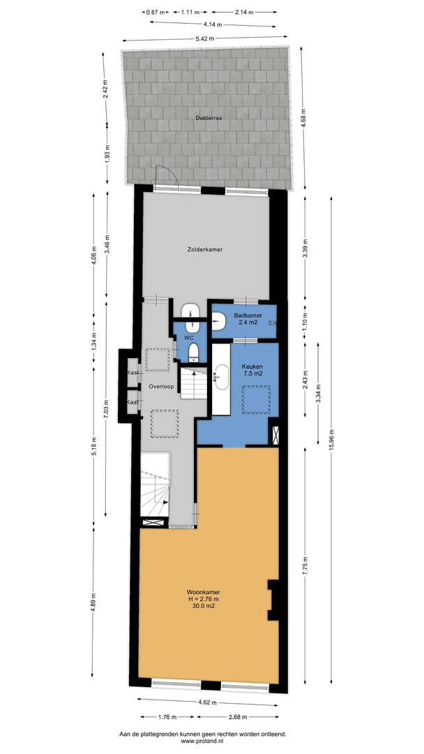
- Winkelruimte: De winkelruimte op de begane grond heeft een totale oppervlakte van circa 87 m², waarvan circa 65 m² winkelruimte. De overige ruimte bestaat uit een klein magazijn, toiletvoorziening en pantry.
- De verdiepingen: De verdiepingen hebben een totale oppervlakte van circa 150 m² en is bereikbaar vanuit de winkelparterre. Deze is beschikbaar voor aanvullende werkzaamheden voor de parterre.
Opleveringsniveau
In de staat waarin het pand zich bij aanvang bevindt en er zal sprake zijn van een casco verhuur.
Parkeergelegenheid
Voldoende openbare (betaalde) parkeerfaciliteiten in de nabije omgeving, o.a. parkeergarage 'Zaailand' en de 'Oldehove'.
HUURVOORWAARDEN
Vraaghuurprijs
€ 22.800,= per jaar, te vermeerderen met BTW en servicekosten.
Huurtermijn
5 + 5 jaar (afwijkende perioden zijn bespreekbaar).
Aanvaarding
In overleg, doch kan spoedig.
Bankgarantie/waarborgsom
Ter grootte van 3 maanden huur te vermeerderen met BTW.
Betalingswijze
De huur dient per maand bij vooruitbetaling te worden voldaan.
Indexering
Jaarlijks conform de consumentenprijsindex reeks CPI-alle huishoudens 2015=100.
Huurovereenkomst
Standaard R.O.Z. Model (2015) met aanvullende bepalingen.
Bijzonderheden
Bezichtigingen uitsluitend op afspraak via RBMT bedrijfsmakelaars & taxateurs.
Meer informatie over dit object?
Voor meer informatie en/of het maken van een afspraak kunt u contact opnemen met Tjibbe-Jan Boringa, Jeroen van Reenen, Levi Huijser of Linda van Es, telefoon 0513 - 644 355 of 058-20 40 000 of stuur een e-mail naar info @ rbmt. nl.
DISCLAIMER
Deze informatie (inclusief bijlagen) van "RBMT Bedrijfsmakelaars & Taxateurs Noord-Nederland B.V. " is met grote zorgvuldigheid samengesteld. Voor mogelijke onjuistheid en/of onvolledigheid van de verstrekte informatie kan "RBMT Bedrijfsmakelaars & Taxateurs Noord-Nederland B.V. " geen aansprakelijkheid aanvaarden, evenmin kunnen aan de inhoud van deze informatie (inclusief bijlagen) rechten worden ontleend. Deze informatie is geheel vrijblijvend en niet meer dan een uitnodiging tot het doen van een voorstel.
In de directe omgeving zijn o.a. de Intersport, Appel en Ei, Dille & Kamille en diverse kledingzaken zijn gevestigd.
Indeling
- Winkelruimte: De winkelruimte op de begane grond heeft een totale oppervlakte van circa 87 m², waarvan circa 65 m² winkelruimte. De overige ruimte bestaat uit een klein magazijn, toiletvoorziening en pantry.
- De verdiepingen: De verdiepingen hebben een totale oppervlakte van circa 150 m² en is bereikbaar vanuit de winkelparterre. Deze is beschikbaar voor aanvullende werkzaamheden voor de parterre.
Opleveringsniveau
In de staat waarin het pand zich bij aanvang bevindt en er zal sprake zijn van een casco verhuur.
Parkeergelegenheid
Voldoende openbare (betaalde) parkeerfaciliteiten in de nabije omgeving, o.a. parkeergarage 'Zaailand' en de 'Oldehove'.
HUURVOORWAARDEN
Vraaghuurprijs
€ 22.800,= per jaar, te vermeerderen met BTW en servicekosten.
Huurtermijn
5 + 5 jaar (afwijkende perioden zijn bespreekbaar).
Aanvaarding
In overleg, doch kan spoedig.
Bankgarantie/waarborgsom
Ter grootte van 3 maanden huur te vermeerderen met BTW.
Betalingswijze
De huur dient per maand bij vooruitbetaling te worden voldaan.
Indexering
Jaarlijks conform de consumentenprijsindex reeks CPI-alle huishoudens 2015=100.
Huurovereenkomst
Standaard R.O.Z. Model (2015) met aanvullende bepalingen.
Bijzonderheden
Bezichtigingen uitsluitend op afspraak via RBMT bedrijfsmakelaars & taxateurs.
Meer informatie over dit object?
Voor meer informatie en/of het maken van een afspraak kunt u contact opnemen met Tjibbe-Jan Boringa, Jeroen van Reenen, Levi Huijser of Linda van Es, telefoon 0513 - 644 355 of 058-20 40 000 of stuur een e-mail naar info @ rbmt. nl.
DISCLAIMER
Deze informatie (inclusief bijlagen) van "RBMT Bedrijfsmakelaars & Taxateurs Noord-Nederland B.V. " is met grote zorgvuldigheid samengesteld. Voor mogelijke onjuistheid en/of onvolledigheid van de verstrekte informatie kan "RBMT Bedrijfsmakelaars & Taxateurs Noord-Nederland B.V. " geen aansprakelijkheid aanvaarden, evenmin kunnen aan de inhoud van deze informatie (inclusief bijlagen) rechten worden ontleend. Deze informatie is geheel vrijblijvend en niet meer dan een uitnodiging tot het doen van een voorstel.
Plan bezichtiging
voor: Nieuwestad 34
Stel een vraag
Bel mij terug























































