Sneek Leidekkersstraat 2
Omschrijving
huurprijs
€ 2.100,00 p.m
Kenmerken
Overdracht
| Status | beschikbaar |
|---|---|
| Prijs | € 2.100,00 p.m |
Bouw
| Bouwvorm | bestaande bouw |
|---|---|
| Hoofdfunctie | kantoorruimte |
KANTOORRUIMTE
| Units Vanaf | 162 |
|---|---|
| Aantal Verdiepingen | 2 |
| Oppervlakte | 162 m² |
Interesse?
Hoogwaardig afgewerkte kantoorruimtes gelegen op de begane grond en de 1e verdieping van een monumentale (in 2019 geheel gerenoveerde) kantoorboerderij op bedrijventerrein De Hemmen te Sneek.
Locatie - Bereikbaarheid
Door de gunstige ligging langs de ringweg Sneek / A7 (Joure - Bolsward) is locatie zeer goed bereikbaar. Op het bijbehorende terrein is voldoende parkeergelegenheid aanwezig. Overige gebruikers in het pand zijn een specialist in het bouwen van veranda's, serres en buitenverblijven en een specialist in verduurzaming en energieprojecten.
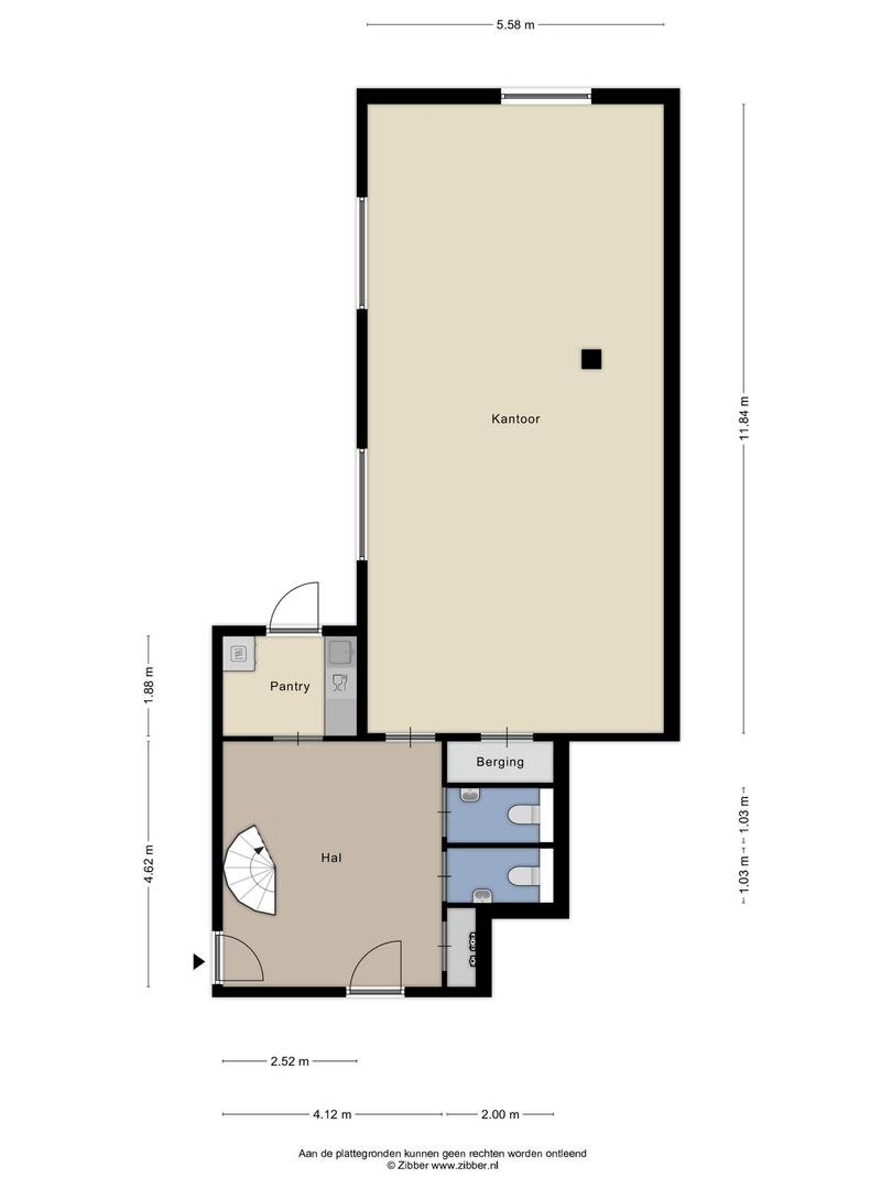
Oppervlakte
De totale verhuurbare vloeroppervlakte bedraagt circa 162 m², verdeel over:
- circa 61 m² en circa 63 m² op de begane grond;
- circa 38 m² op de eerste verdieping.
Voorzieningen:
- algemene entree
- pantry en toiletgroep op begane grond
- pantry en toiletgroep op de verdieping
- klimaatbeheersing
- kabelgoten t.b.v. data en elektra
- verwarming middels warmtepomp
- ledverlichting
- kamerindeling
- vloer- en wandafwerking
Parkeren
Goede gemeenschappelijke parkeervoorzieningen aanwezig.
HUURVOORWAARDEN
Vraaghuurprijs
€ 2.100,= per maand, te vermeerderen met BTW en servicekosten.
Servicekosten
€ 625,= per maand, te vermeerderen met BTW.
Huurtermijn
5 + 5 jaar (afwijkende perioden zijn bespreekbaar).
Aanvaarding
In overleg, doch kan spoedig.
Bankgarantie/waarborgsom
Ter grootte van 3 maanden huur te vermeerderen met BTW.
Betalingswijze
De huur dient per maand bij vooruitbetaling te worden voldaan.
Indexering
Jaarlijks conform de consumentenprijsindex reeks CPI-alle huishoudens 2015=100.
(Onder)huurovereenkomst
De verhuur betreft een onderverhuur -/ indeplaatsstelling.
Standaard R.O.Z. Model (2025) met aanvullende bepalingen.
Bijzonderheden
Bezichtigingen uitsluitend op afspraak via RBMT bedrijfsmakelaars & taxateurs.
Meer informatie over dit object?
Voor meer informatie en/of het maken van een afspraak kunt u contact opnemen met Tjibbe-Jan Boringa, Jeroen van Reenen of Levi Huijser, telefoon 0513 - 644 355 of 058-20 40 000 of stuur een e-mail naar info @ rbmt. nl.
DISCLAIMER
Deze informatie (inclusief bijlagen) van "RBMT Bedrijfsmakelaars & Taxateurs Noord-Nederland B.V. " is met grote zorgvuldigheid samengesteld. Voor mogelijke onjuistheid en/of onvolledigheid van de verstrekte informatie kan "RBMT Bedrijfsmakelaars & Taxateurs Noord-Nederland B.V. " geen aansprakelijkheid aanvaarden, evenmin kunnen aan de inhoud van deze informatie (inclusief bijlagen) rechten worden ontleend. Deze informatie is geheel vrijblijvend en niet meer dan een uitnodiging tot het doen van een voorstel.
het doen van een voorstel.
Locatie - Bereikbaarheid
Door de gunstige ligging langs de ringweg Sneek / A7 (Joure - Bolsward) is locatie zeer goed bereikbaar. Op het bijbehorende terrein is voldoende parkeergelegenheid aanwezig. Overige gebruikers in het pand zijn een specialist in het bouwen van veranda's, serres en buitenverblijven en een specialist in verduurzaming en energieprojecten.
Oppervlakte
De totale verhuurbare vloeroppervlakte bedraagt circa 162 m², verdeel over:
- circa 61 m² en circa 63 m² op de begane grond;
- circa 38 m² op de eerste verdieping.
Voorzieningen:
- algemene entree
- pantry en toiletgroep op begane grond
- pantry en toiletgroep op de verdieping
- klimaatbeheersing
- kabelgoten t.b.v. data en elektra
- verwarming middels warmtepomp
- ledverlichting
- kamerindeling
- vloer- en wandafwerking
Parkeren
Goede gemeenschappelijke parkeervoorzieningen aanwezig.
HUURVOORWAARDEN
Vraaghuurprijs
€ 2.100,= per maand, te vermeerderen met BTW en servicekosten.
Servicekosten
€ 625,= per maand, te vermeerderen met BTW.
Huurtermijn
5 + 5 jaar (afwijkende perioden zijn bespreekbaar).
Aanvaarding
In overleg, doch kan spoedig.
Bankgarantie/waarborgsom
Ter grootte van 3 maanden huur te vermeerderen met BTW.
Betalingswijze
De huur dient per maand bij vooruitbetaling te worden voldaan.
Indexering
Jaarlijks conform de consumentenprijsindex reeks CPI-alle huishoudens 2015=100.
(Onder)huurovereenkomst
De verhuur betreft een onderverhuur -/ indeplaatsstelling.
Standaard R.O.Z. Model (2025) met aanvullende bepalingen.
Bijzonderheden
Bezichtigingen uitsluitend op afspraak via RBMT bedrijfsmakelaars & taxateurs.
Meer informatie over dit object?
Voor meer informatie en/of het maken van een afspraak kunt u contact opnemen met Tjibbe-Jan Boringa, Jeroen van Reenen of Levi Huijser, telefoon 0513 - 644 355 of 058-20 40 000 of stuur een e-mail naar info @ rbmt. nl.
DISCLAIMER
Deze informatie (inclusief bijlagen) van "RBMT Bedrijfsmakelaars & Taxateurs Noord-Nederland B.V. " is met grote zorgvuldigheid samengesteld. Voor mogelijke onjuistheid en/of onvolledigheid van de verstrekte informatie kan "RBMT Bedrijfsmakelaars & Taxateurs Noord-Nederland B.V. " geen aansprakelijkheid aanvaarden, evenmin kunnen aan de inhoud van deze informatie (inclusief bijlagen) rechten worden ontleend. Deze informatie is geheel vrijblijvend en niet meer dan een uitnodiging tot het doen van een voorstel.
het doen van een voorstel.
Plan bezichtiging
voor: Leidekkersstraat 2
Stel een vraag
Bel mij terug



















































