Heerenveen Dracht 121
Omschrijving
vraagprijs
€ 295.000 k.k.
Kenmerken
Overdracht
| Status | beschikbaar |
|---|---|
| Prijs | € 295.000 k.k. |
Bouw
| Bouwvorm | bestaande bouw |
|---|---|
| Hoofdfunctie | winkelruimte |
Energie
| Energielabel | E |
|---|
WINKELRUIMTE
| Verkoop Vloeroppervlakte | 137 m² |
|---|---|
| Units Vanaf | 137 |
| Ter Overname | 1 |
| Oppervlakte | 137 m² |
| Aantal Verdiepingen | 1 |
| Publieksgerichte Dienstverlening | 1 |
| Detailhandel | 1 |
| Frontbreedte | 5625 cm |
| Welstandsklasse | A2 |
Interesse?
In het centrum van Heerenveen gelegen zelfstandig winkelpand met eigen steeg aan de zijkant van het pand die toegang biedt tot de binnenplaats aan de achterzijde van het pand.
Het pand is momenteel vrij van huur en gebruik, waardoor het uitermate geschikt is voor zowel een vastgoedbelegger als een eigenaar-/gebruiker. Het pand kan aangekocht worden in combinatie met Dracht 119.
Locatie
Heerenveen staat bekend als het sportcentrum van het Noorden en combineert dit met een centrale ligging en uitstekende bereikbaarheid. De gemeente telt circa 50.000 inwoners en de Dracht is dé hoofdwinkelstraat van Heerenveen. Hier bevinden zich onder andere Hema, Kruidvat, Etos, Specsavers, Hans Anders, Open32, Holland & Barrett, Zuivelhoeve, MS Mode, WE, Jensen Mode en H&M. Het pand is gesitueerd in één van de aanlooproutes naar het centrum.
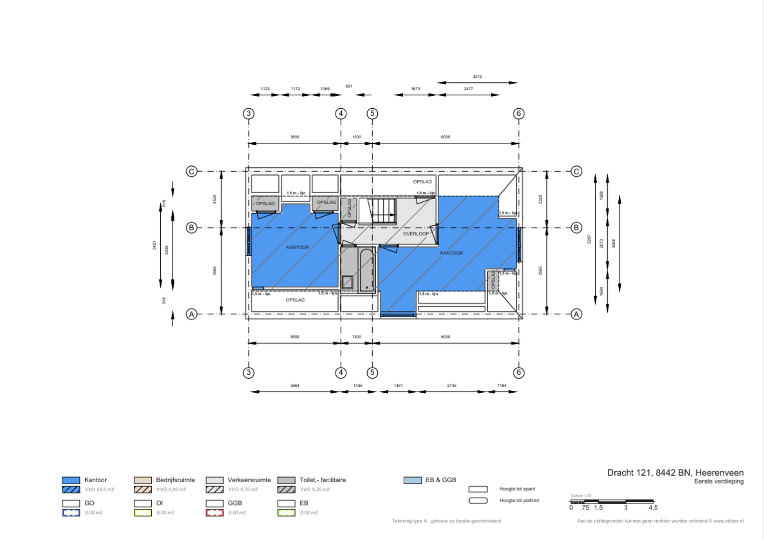
Oppervlakte
De totale oppervlakte bedraagt circa 137 m², verdeeld over:
Begane grond: circa 97 m²
Eerste verdieping: circa 40 m²
Frontbreedte
Circa 5,6 meter.
Voorzieningen o.a.
- meterkast met aansluitingen nutsvoorzieningen
- verwarming via radiatoren met c.v.-ketel (Nefit)
- toilet
- badkamer
- pantry
- magazijn-/opslag
- buitenruimte / binnenplaats te bereiken via eigen steeg aan de zijkant van het pand
Kadastrale gegevens
Kadastrale gemeente Heerenveen, sectie B, nummer 2972, groot circa 235 m².
Energielabel
E, geldig tot 1 maart 2027.
Bestemming
Er is een beheersverordening voor het gebied van toepassing “Beheersverordening Heerenveen Centrum”, de bestemming is o.a. detailhandel, dienstverlening en wonen op de verdieping(en).
VERKOOPVOORWAARDEN
Vraagprijs
€ 295.000,- kosten koper.
Aanvaarding
In overleg.
Bijzonderheden
Levering onder de conditie "as is, where is".
Waarborgsom/bankgarantie
Bij het tot stand komen van een koopovereenkomst dient koper 10% borgsom te storten c.q. een bankgarantie ter grootte van 10% van de koopsom af te geven bij de notaris.
Meer informatie over dit object?
Voor meer informatie en/of het maken van een afspraak kunt u contact opnemen met Tjibbe-Jan Boringa, Jeroen van Reenen, Levi Huijser of Linda van Es, telefoon 0513 - 644 355 of 058 - 204 0000 of stuur een e-mail naar info @ rbmt .nl
DISCLAIMER
Deze informatie (inclusief bijlagen) van "RBMT Bedrijfsmakelaars & Taxateurs Noord-Nederland B.V. " is met grote zorgvuldigheid samengesteld. Voor mogelijke onjuistheid en/of onvolledigheid van de verstrekte informatie kan "RBMT Bedrijfsmakelaars & Taxateurs Noord-Nederland B.V. " geen aansprakelijkheid aanvaarden, evenmin kunnen aan de inhoud van deze informatie (inclusief bijlagen) rechten worden ontleend. Deze informatie is geheel vrijblijvend en niet meer dan een uitnodiging tot het doen van een voorstel.
Het pand is momenteel vrij van huur en gebruik, waardoor het uitermate geschikt is voor zowel een vastgoedbelegger als een eigenaar-/gebruiker. Het pand kan aangekocht worden in combinatie met Dracht 119.
Locatie
Heerenveen staat bekend als het sportcentrum van het Noorden en combineert dit met een centrale ligging en uitstekende bereikbaarheid. De gemeente telt circa 50.000 inwoners en de Dracht is dé hoofdwinkelstraat van Heerenveen. Hier bevinden zich onder andere Hema, Kruidvat, Etos, Specsavers, Hans Anders, Open32, Holland & Barrett, Zuivelhoeve, MS Mode, WE, Jensen Mode en H&M. Het pand is gesitueerd in één van de aanlooproutes naar het centrum.
Oppervlakte
De totale oppervlakte bedraagt circa 137 m², verdeeld over:
Begane grond: circa 97 m²
Eerste verdieping: circa 40 m²
Frontbreedte
Circa 5,6 meter.
Voorzieningen o.a.
- meterkast met aansluitingen nutsvoorzieningen
- verwarming via radiatoren met c.v.-ketel (Nefit)
- toilet
- badkamer
- pantry
- magazijn-/opslag
- buitenruimte / binnenplaats te bereiken via eigen steeg aan de zijkant van het pand
Kadastrale gegevens
Kadastrale gemeente Heerenveen, sectie B, nummer 2972, groot circa 235 m².
Energielabel
E, geldig tot 1 maart 2027.
Bestemming
Er is een beheersverordening voor het gebied van toepassing “Beheersverordening Heerenveen Centrum”, de bestemming is o.a. detailhandel, dienstverlening en wonen op de verdieping(en).
VERKOOPVOORWAARDEN
Vraagprijs
€ 295.000,- kosten koper.
Aanvaarding
In overleg.
Bijzonderheden
Levering onder de conditie "as is, where is".
Waarborgsom/bankgarantie
Bij het tot stand komen van een koopovereenkomst dient koper 10% borgsom te storten c.q. een bankgarantie ter grootte van 10% van de koopsom af te geven bij de notaris.
Meer informatie over dit object?
Voor meer informatie en/of het maken van een afspraak kunt u contact opnemen met Tjibbe-Jan Boringa, Jeroen van Reenen, Levi Huijser of Linda van Es, telefoon 0513 - 644 355 of 058 - 204 0000 of stuur een e-mail naar info @ rbmt .nl
DISCLAIMER
Deze informatie (inclusief bijlagen) van "RBMT Bedrijfsmakelaars & Taxateurs Noord-Nederland B.V. " is met grote zorgvuldigheid samengesteld. Voor mogelijke onjuistheid en/of onvolledigheid van de verstrekte informatie kan "RBMT Bedrijfsmakelaars & Taxateurs Noord-Nederland B.V. " geen aansprakelijkheid aanvaarden, evenmin kunnen aan de inhoud van deze informatie (inclusief bijlagen) rechten worden ontleend. Deze informatie is geheel vrijblijvend en niet meer dan een uitnodiging tot het doen van een voorstel.
Plan bezichtiging
voor: Dracht 121
Stel een vraag
Bel mij terug













































