Leeuwarden Romkeslaan 24
Omschrijving
vraagprijs
€ 649.500 k.k.
Kenmerken
Overdracht
| Status | verkocht |
|---|---|
| Prijs | € 649.500 k.k. |
Bouw
| Bouwjaar | 2001 |
|---|---|
| Bouwvorm | bestaande bouw |
| Type Object | Woonhuis |
| Hoofdfunctie | Woonruimte |
Indeling
| Woonoppervlakte | 193 m² |
|---|---|
| Perceeloppervlakte | 200 m² |
| Woning Inhoud | 785 m³ |
| Kamers | 5 (4 slaapkamers) |
Energie
| Energielabel | A |
|---|
Interesse?
Perfecte stadsvilla op de perfecte plek!
Het gemak van nieuwbouw in bestaande, historische omgeving.
Deze mooie stadsvilla met eigen ruime garage in het centrum van Leeuwarden is bijzonder ruim. Dit heerlijke leefhuis, biedt mogelijkheden voor zowel kleine als grote gezinnen. Bovendien biedt de woning veel comfort en woongenot, zowel binnen als buiten. De woonomgeving maar ook de woning zelf bieden rust en zijn in perfecte balans met wonen in de binnenstad en alle gezelligheid die daarbij hoort.
Een werkelijk fantastisch mooi huis.
Aan de Potmarge, een eeuwenoud riviertje dat door het centrum van Leeuwarden stroomt, staat deze verrassende stadsvilla, gelegen aan de rand van de gezellige binnenstad. Vanuit hier loop je naar de schouwburg, pak je een gezellig terrasje of eet je heerlijk bij één van die leuke restaurantjes die Leeuwarden rijk is.
Dit is wat wonen in het centrum van de stad zo leuk maakt!
Indeling:
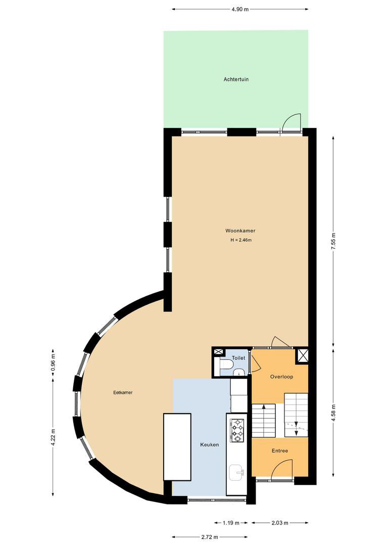
Entree, hal, toilet met fontein, fijne woonkamer met parketvloer en tuindeur, moderne open leefkeuken met fantastische ronding is voorzien van diverse nieuwe inbouwapparatuur.
In de kelder is een eigen, zeer ruime garage / berging waar mogelijk 2 auto's kunnen staan.
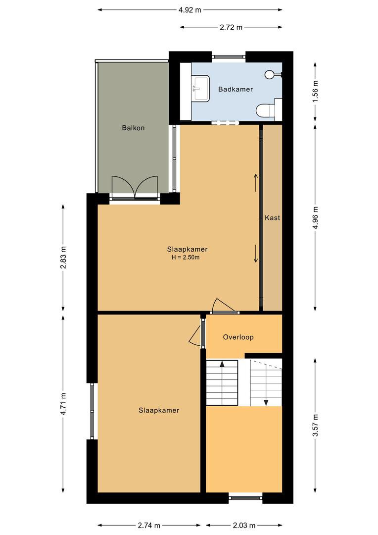
Op de eerste verdieping:
Overloop, ouderslaapkamer en logeerkamer beide met balkon.
Nieuwe badkamer met dubbele wastafel en moderne inloopdouche.
Witgoed en stookruimte met Intergas CV-ketel (2019).
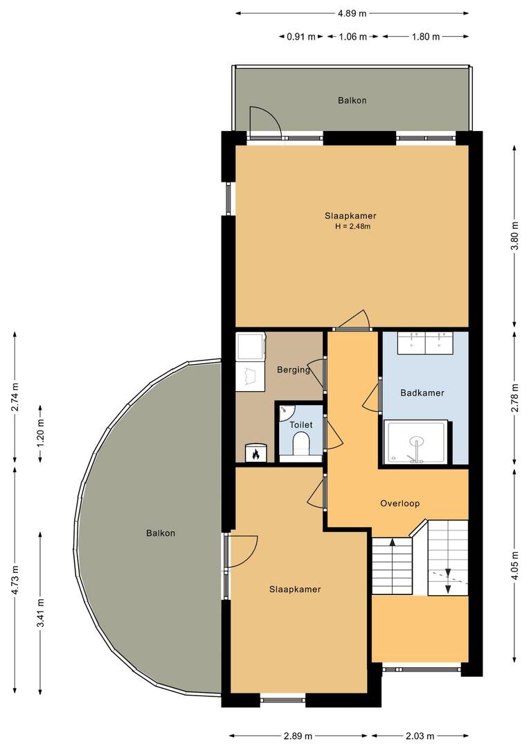
Op de tweede verdieping:
Ruime overloop, master bedroom met balkon en 4e slaapkamer met vaste kasten en eveneens een eigen balkon.
Nieuw sanitair met douche, wastafel en toilet.
Buiten is een overkapping met buitenkeuken en tuin.
Bijzonderheden:
Gezamenlijk 20 zonnepanelen
Overal zijn heerlijke buitenruimtes waar je tot in de late uurtjes buiten kunt zitten
VVE bijdrage 247,41 per maand
Mogelijkheid tot het huren van extra parkeerplaats(en) in ondergelegen parkeerkelder
Het gemak van nieuwbouw in bestaande, historische omgeving.
Deze mooie stadsvilla met eigen ruime garage in het centrum van Leeuwarden is bijzonder ruim. Dit heerlijke leefhuis, biedt mogelijkheden voor zowel kleine als grote gezinnen. Bovendien biedt de woning veel comfort en woongenot, zowel binnen als buiten. De woonomgeving maar ook de woning zelf bieden rust en zijn in perfecte balans met wonen in de binnenstad en alle gezelligheid die daarbij hoort.
Een werkelijk fantastisch mooi huis.
Aan de Potmarge, een eeuwenoud riviertje dat door het centrum van Leeuwarden stroomt, staat deze verrassende stadsvilla, gelegen aan de rand van de gezellige binnenstad. Vanuit hier loop je naar de schouwburg, pak je een gezellig terrasje of eet je heerlijk bij één van die leuke restaurantjes die Leeuwarden rijk is.
Dit is wat wonen in het centrum van de stad zo leuk maakt!
Indeling:
Entree, hal, toilet met fontein, fijne woonkamer met parketvloer en tuindeur, moderne open leefkeuken met fantastische ronding is voorzien van diverse nieuwe inbouwapparatuur.
In de kelder is een eigen, zeer ruime garage / berging waar mogelijk 2 auto's kunnen staan.
Op de eerste verdieping:
Overloop, ouderslaapkamer en logeerkamer beide met balkon.
Nieuwe badkamer met dubbele wastafel en moderne inloopdouche.
Witgoed en stookruimte met Intergas CV-ketel (2019).
Op de tweede verdieping:
Ruime overloop, master bedroom met balkon en 4e slaapkamer met vaste kasten en eveneens een eigen balkon.
Nieuw sanitair met douche, wastafel en toilet.
Buiten is een overkapping met buitenkeuken en tuin.
Bijzonderheden:
Gezamenlijk 20 zonnepanelen
Overal zijn heerlijke buitenruimtes waar je tot in de late uurtjes buiten kunt zitten
VVE bijdrage 247,41 per maand
Mogelijkheid tot het huren van extra parkeerplaats(en) in ondergelegen parkeerkelder

Jan Ypeij NVM Makelaar bestaande bouw
Stel een vraag
Bel mij terug












































































































































