Witmarsum De Muonts 75
Omschrijving
vraagprijs
€ 241.000 k.k.
Kenmerken
Overdracht
| Status | verkocht |
|---|---|
| Prijs | € 241.000 k.k. |
Bouw
| Bouwjaar | 1981 |
|---|---|
| Bouwvorm | bestaande bouw |
| Type Object | Woonhuis |
| Hoofdfunctie | Woonruimte |
Indeling
| Woonoppervlakte | 103 m² |
|---|---|
| Perceeloppervlakte | 165 m² |
| Woning Inhoud | 454 m³ |
| Kamers | 4 (3 slaapkamers) |
Energie
| Energielabel | B |
|---|
Interesse?
In het gezellige Witmarsum staat deze keurige tussenwoning te koop. De woning biedt drie comfortabele slaapkamers en een lichte, open woon-/eetkamer met volop indelingsmogelijkheden. Zowel de voor- als achtertuin zijn netjes aangelegd en grotendeels bestraat, waardoor je direct kunt genieten van een onderhoudsarme buitenruimte. Met wat persoonlijke accenten verander je dit huis moeiteloos in een warm en prettig thuis.
Indeling:
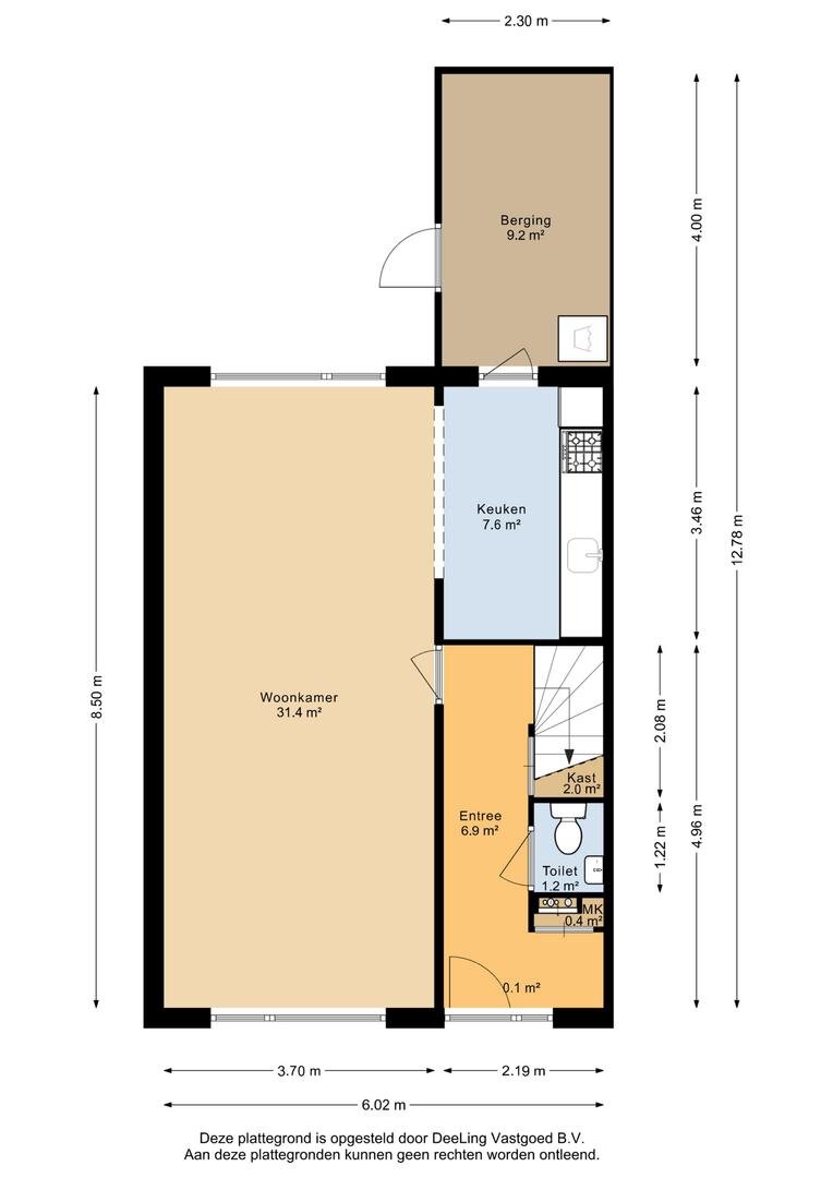
Begane grond:
Stap de woning binnen via de hal, waar je direct de trap naar boven en het toilet vindt. De woonkamer biedt volop mogelijkheden om naar eigen smaak in te richten en een fijne leefruimte te creëren. Aansluitend vind je de keuken, voorzien van een standaard keukenblok gasfornuis is hier aanwezig. Vanuit de keuken heb je toegang tot de handige berging, ideaal voor extra opslagruimte en om de witgoedapparatuur aan te sluiten.
Eerste verdieping:
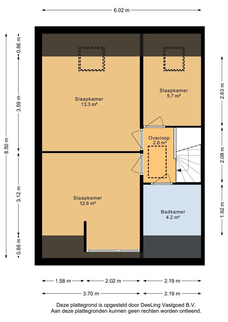
Op de eerste verdieping zijn drie slaapkamers aanwezig. Allen van verschillend formaat, maar zeker met genoeg ruimte. Tevens is op deze verdieping een badkamer voorzien van douche en wastafel.
Tweede verdieping:
Bereikbaar met de vlizotrap. Ideaal voor het opbergen van kerst/vakantie spullen.
Goed om te weten:
- Woonoppervlakte: 103 m²;
- Perceeloppervlakte: 165 m²;
- Energielabel: B;
- Ouderdomsclausule / uitsluitingsclausule: de bouwkwaliteit ligt lager dan bij nieuwe woningen en is voor risico van koper - de eisen die aan de fundering, constructie en overige bouwkwaliteit gesteld mogen worden liggen aanzienlijk lager dan bij nieuwe woningen en zijn voor rekening en risico van koper.
- Elkien voorwaarden zijn van toepassing;
Ben jij enthousiast over deze woning? Maak dan snel een afspraak voor een bezichtiging!
Alle bezichtigingen (ook niet-huurders) dienen tijdens de bezichtigingsmiddag op maandag 8 september tussen 12:00 uur en 14:00 uur plaats te vinden. Voor een afspraak tijdens de bezichtigingsmiddag kan je bellen met ons kantoor in Sneek. We verwelkomen je graag! De sluiting van de inschrijving eindigt op donderdag 11 september om 12:00 uur.
HUUR JE OP DIT MOMENT EEN WONING VAN ELKIEN? DAN HEB JE VOORRANG OM IN TE SCHRIJVEN VOOR DEZE WONING EN TE KOPEN VOOR DE VRAAGPRIJS (zie voorwaarden Elkien in de tekst hieronder**).
Wordt de woning niet verkocht aan een huurder, dan wordt deze gegund aan de hoogste bieder met de koopsom als minimale inschrijfprijs.
Voorwaarden Elkien:
* De woning wordt verkocht in de huidige staat;
* Antispeculatiebeding: de woning mag niet binnen drie jaar worden door verkocht;
* Verbod van verhuur uitgezonderd verhuur aan eerste graad bloedverwanten: de woning mag drie jaar niet worden verhuurd.
* Ouderdomsclausule / uitsluitingsclausule: de bouwkwaliteit ligt lager dan bij nieuwe woningen en is het risico van koper;
* Voorbehoud financiering: maximaal 6 weken na mondeling akkoord koper/verkoper;
* Sleuteloverdracht: maximaal 8 weken na mondeling akkoord koper/verkoper;
* Indien de woning later passeert dan 8 weken, betaalt koper € 20,- boete per dag aan verkoper;
* Koper dient een natuurlijk persoon te zijn;
* De leveringsakte wordt betaald door Elkien (huisnotaris Breuker Netwerk Notarissen te Drachten);
** Jij huurt op dit moment een woning van Elkien (ingeschreven staan als woningzoekende telt niet);
** Indien meerdere huurders zich hebben ingeschreven, wordt de woning toegewezen op basis van loting;
** Indien jij huurder bent en met een medehuurder wilt kopen, dient deze tenminste 2 jaar ingeschreven te staan op hetzelfde huuradres (medehuurderschap) of van rechtswege door huwelijk/geregistreerd partnerschap of jullie huren ieder een woning van Elkien en willen deze woning samen kopen
Indeling:
Begane grond:
Stap de woning binnen via de hal, waar je direct de trap naar boven en het toilet vindt. De woonkamer biedt volop mogelijkheden om naar eigen smaak in te richten en een fijne leefruimte te creëren. Aansluitend vind je de keuken, voorzien van een standaard keukenblok gasfornuis is hier aanwezig. Vanuit de keuken heb je toegang tot de handige berging, ideaal voor extra opslagruimte en om de witgoedapparatuur aan te sluiten.
Eerste verdieping:
Op de eerste verdieping zijn drie slaapkamers aanwezig. Allen van verschillend formaat, maar zeker met genoeg ruimte. Tevens is op deze verdieping een badkamer voorzien van douche en wastafel.
Tweede verdieping:
Bereikbaar met de vlizotrap. Ideaal voor het opbergen van kerst/vakantie spullen.
Goed om te weten:
- Woonoppervlakte: 103 m²;
- Perceeloppervlakte: 165 m²;
- Energielabel: B;
- Ouderdomsclausule / uitsluitingsclausule: de bouwkwaliteit ligt lager dan bij nieuwe woningen en is voor risico van koper - de eisen die aan de fundering, constructie en overige bouwkwaliteit gesteld mogen worden liggen aanzienlijk lager dan bij nieuwe woningen en zijn voor rekening en risico van koper.
- Elkien voorwaarden zijn van toepassing;
Ben jij enthousiast over deze woning? Maak dan snel een afspraak voor een bezichtiging!
Alle bezichtigingen (ook niet-huurders) dienen tijdens de bezichtigingsmiddag op maandag 8 september tussen 12:00 uur en 14:00 uur plaats te vinden. Voor een afspraak tijdens de bezichtigingsmiddag kan je bellen met ons kantoor in Sneek. We verwelkomen je graag! De sluiting van de inschrijving eindigt op donderdag 11 september om 12:00 uur.
HUUR JE OP DIT MOMENT EEN WONING VAN ELKIEN? DAN HEB JE VOORRANG OM IN TE SCHRIJVEN VOOR DEZE WONING EN TE KOPEN VOOR DE VRAAGPRIJS (zie voorwaarden Elkien in de tekst hieronder**).
Wordt de woning niet verkocht aan een huurder, dan wordt deze gegund aan de hoogste bieder met de koopsom als minimale inschrijfprijs.
Voorwaarden Elkien:
* De woning wordt verkocht in de huidige staat;
* Antispeculatiebeding: de woning mag niet binnen drie jaar worden door verkocht;
* Verbod van verhuur uitgezonderd verhuur aan eerste graad bloedverwanten: de woning mag drie jaar niet worden verhuurd.
* Ouderdomsclausule / uitsluitingsclausule: de bouwkwaliteit ligt lager dan bij nieuwe woningen en is het risico van koper;
* Voorbehoud financiering: maximaal 6 weken na mondeling akkoord koper/verkoper;
* Sleuteloverdracht: maximaal 8 weken na mondeling akkoord koper/verkoper;
* Indien de woning later passeert dan 8 weken, betaalt koper € 20,- boete per dag aan verkoper;
* Koper dient een natuurlijk persoon te zijn;
* De leveringsakte wordt betaald door Elkien (huisnotaris Breuker Netwerk Notarissen te Drachten);
** Jij huurt op dit moment een woning van Elkien (ingeschreven staan als woningzoekende telt niet);
** Indien meerdere huurders zich hebben ingeschreven, wordt de woning toegewezen op basis van loting;
** Indien jij huurder bent en met een medehuurder wilt kopen, dient deze tenminste 2 jaar ingeschreven te staan op hetzelfde huuradres (medehuurderschap) of van rechtswege door huwelijk/geregistreerd partnerschap of jullie huren ieder een woning van Elkien en willen deze woning samen kopen

Anniek Siebring NVM Makelaar bestaande bouw
Stel een vraag
Bel mij terug











































































